
Fertighaus 1,5-geschossig bauen

Ein klassischer Bungalow kommt für Sie nicht in Frage, weil aufgrund der Grundstücksmaße dann nicht genügend Wohnfläche zur Verfügung stehen würde? Oder Ihr Haus darf laut örtlichem Bebauungsplan keine zwei Vollgeschosse aufweisen? Die Lösung könnte ein Massiv- oder Fertighaus, das 1,5-geschossig errichtet wird, sein – lichtdurchfluteter Wohnraum bis unter den First spricht hier für sich!
Was es genau mit dem Hausbau in 1,5-geschossiger Ausführung auf sich hat, welche Vorteile diese Bauform mit sich bringt und welche Preise bei einem Fertighaus mit 1,5 Geschossen – oder auch in anderen Bauweisen – üblich sind, erfahren Sie im Folgenden.

1,5-geschossiges Haus: Alle Angebote

Seien Sie bestens informiert bei Ihrer Fertighauswahl! Fordern Sie Informationen von Baupartnern in Ihrer Nähe an, um bei der Entscheidung gut vorbereitet zu sein.
Kataloge anfordernHausbau 1,5-geschossig: Definition
Doch welche Immobilien werden überhaupt als 1,5-geschossige Häuser bezeichnet? Zunächst handelt es sich bei dem Ausdruck ‘1,5-geschossiges Haus’ um keinen rechtlichen Begriff. In der Umgangssprache hat er sich dennoch verbreitet, wenn man von Bauobjekten spricht, die anstelle zweier Vollgeschosse nur über ein Vollgeschoss – das Erdgeschoss – und ein halbes Geschoss – das Dachgeschoss – verfügen. Gerade mit einem Satteldach gilt ein Massiv- oder Fertighaus als 1,5-geschossig, da hier die Dachschrägen die Wohnfläche reduzieren.
Überraschenderweise wirkt ein Haus, das 1,5-geschossig gebaut wurde, von außen oft als hätte es zwei volle Geschosse, da sich nicht nur Fenster und Wohnraum im Erdgeschoss sondern auch im Dachgeschoss befinden. Definitionsbezogen und juristisch entscheidend sind aber hierbei die Neigung der Dachflächen sowie der daraus resultierende Kniestock oder Drempel. Letzterer beschreibt die Wandhöhe bevor die Dachschräge beginnt – und je höher der Kniestock, desto mehr Wohnraum unter dem Dach.
Massiv- & Fertighaus 1,5-geschossig: Variationen
Auch wenn die bewährte Grundform dies auf den ersten Blick nicht erahnen lassen mag: Ein 1,5-geschossiges Haus erlaubt zahllose Variationen von Baustilen vom ländlichen Schwedenhaus bis zum modernen kubischen, 1,5-geschossigen Bauhausstil, über Dachformen von Satteldach bis Pultdach, und Hausformen, vom 1,5-geschossigen Einfamilienhaus bis zur Doppelhaushälfte, sowie Grundrisserweiterungen wie Wintergarten oder Dachgauben.
Haus 1,5-geschossig modern
Haus 1,5-geschossig mit Satteldach
Haus 1,5-geschossig im Bauhausstil
Massiv- & Fertighaus 1,5-geschossig: Preise & Kosten
Auch beim Fertighaus mit 1,5-geschossigem Grundriss richten sich Preise und Kosten vor allem nach Gesichtspunkten wie Ausbaustufe, Ausstattungsqualität, Energieeffizienz und Wohnfläche. Im mittelpreisigen Segment fallen beispielsweise bei schlüsselfertiger Übergabe für ein Fertighaus mit 1,5-geschossigem Bau Preise von 2.500 bis 3.000 Euro pro Quadratmeter an. Die Bauweise spielt hierbei übrigens keine Rolle, es ergeben sich preislich also keine Vor- oder Nachteile daraus, Ihr zukünftiges Eigenheim in Massiv-, Block-, Modul- oder anderen Holzbauweisen zu errichten
Folglich können Sie, wenn Sie Ihren 1,5-Geschosser mit 120 Quadratmeter Wohnraum planen, mit einem Hauspreis ab Oberkante Bodenplatte von im Mittel 300.000 bis 360.000 Euro rechnen. Hinzu kommen noch weitere Budgetpunkte wie die Baunebenkosten.
Was kostet ein Fertighaus 1,5-geschossig? Beispielrechnung
Um Ihnen für ein Fertighaus mit 1,5 Geschossen Preise und Baukosten umfassend zu veranschaulichen, wollen wir nun eine exemplarische Budgetrechnung ausführen. Hierbei gehen wir von einem schlüsselfertigen Einfamilienhaus mit 1,5-geschossiger Aufteilung des Wohnraums von insgesamt 135 Quadratmetern zu 2.900 Euro pro Quadratmeter aus. Dazu rechnen wir die Kosten für einen Fertigkeller, die Grundstückskosten für Baugrund mit 510 qm (Durchschnittswert pro qm baureifes Bauland: 218 Euro gemäß Statistischem Bundesamt) zuzüglich 10 % Erwerbsnebenkosten, etwa für Notarin und Grunderwerbsteuer. Weitere Posten umfassen die Baunebenkosten, die Außenanlage (z.B. Garage, Garten) sowie sonstige Ausgaben, wie für Umzug und Richtfest.
| KOSTENFAKTOR | PREIS |
|---|---|
| Fertighaus 1,5-geschossig: Preis | 391.500 Euro |
| Grundstück | 111.180 Euro |
| Grundstücksnebenkosten | 11.118 Euro |
| Keller | 90.000 Euro |
| Außenanlage | 39.150 Euro |
| Baunebenkosten | 78.300 Euro |
| Sonstige Kosten | 10.000 Euro |
| = 1,5-Geschosser Kosten Gesamt | 731.248 Euro |
Fertighaus 1,5-geschossig: Preise
Massives 1,5-geschossiges Haus: Preise
Fertighaus mit 1,5-geschossigem Bau: Vor- & Nachteile

Egal ob als Doppel- oder Einfamilienhaus, oftmals wird ein Massiv- oder Fertighaus 1,5-geschossig gebaut, wenn in der Bauordnung beziehungsweise im Bebauungsplan keine zwei Vollgeschosse erlaubt sind. Meistens dürfen die Räume im Dachgeschoss eines Hauses, das 1,5-geschossig mit einem Giebeldach oder anderen Dachtyp geplant wurde, nicht mehr als 75 % der Gesamtfläche eines Vollgeschosses ausmachen. Dieser Haustyp ist dafür aber in den meisten Wohnsiedlungen zugelassen, Bauantrag und Baugenehmigung sind somit unproblematisch.
Weitere Vorteile beim Hausbau mit 1,5-geschossiger Planung sind, dass Sie im Vergleich zu einem gleichgroßen Bungalow mit wesentlich weniger Baugrund auskommen. Zudem lässt sich ein Haus mit 1,5 Geschossen und Satteldach bei einem einfachen Baukörper besonders kostengünstig umsetzen. Als nachteilig kann die – beispielsweise im Vergleich zu einer typischen Stadtvilla – verringerte Wohnfläche im Dachgeschoss gesehen werden, genau wie die Notwendigkeit von mehr Verkehrsflächen und Treppen gegenüber einem ebenerdigen Objekt.
1,5-geschossiges Haus: Vorteile
Klassischer Baustil, der in den meisten Bebauungsplänen erlaubt ist
Kosteneffiziente Realisierbarkeit bei einfacher Gestaltung
Geeignet für kleinere Grundstücke
Mehr Wohnraum bei kleinerer Grundfläche
1,5-geschossiges Haus: Nachteile
Dachschrägen verringern Wohnraum im Dachgeschoss
Treppen und Flure reduzieren Wohnfläche
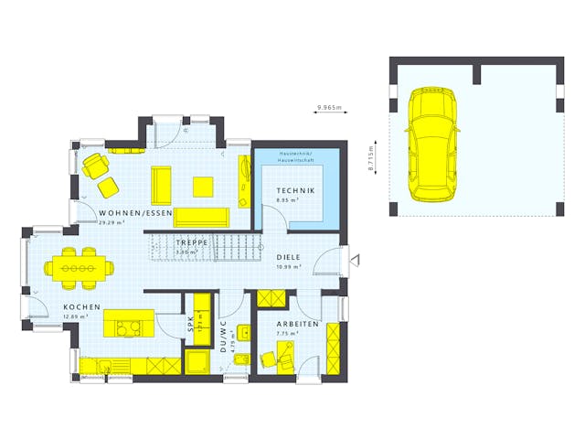
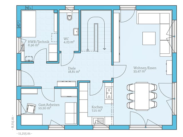
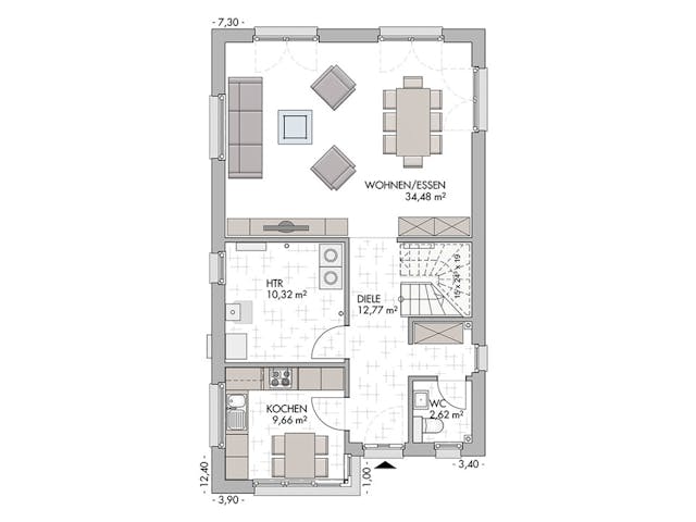
1,5-geschossiges Haus: Grundriss
Bei der Planung des Grundrisses für Ihr Massiv- oder Fertighaus mit 1,5 Geschossen sollten Sie insbesondere auf eine geradlinige und offene Raumplanung achten. Denn, wie weiter oben erwähnt, sind ohnehin gewisse Verkehrsflächen unausweichlich. Je weniger Zwischenwände eingezogen werden, desto besser gleichen Sie dann die reduzierte Wohnfläche im Dachgeschoss Ihres 1,5-Geschossers aus. Abhilfe kann, insbesondere bei Hanglage, zudem ein Wohnkeller oder auch nur eine Teilunterkellerung schaffen, welche für ein Plus bei der Wohnfläche sorgt.
Unser Tipp: Damit Sie auch in einem 1,5-geschossigen Haus mehr Wohnfläche erhalten, können Sie einen Erker, Dachgauben oder gar einen dritten Giebel beziehungsweise ein Zwerchhaus integrieren und somit gleichzeitig mehr Tageslicht ins Dachgeschoss bringen. Lassen Sie sich hierzu von den bewährten Grundrissen unserer Haushersteller inspirieren und vergleichen Sie für Ihr Fertighaus in 1,5-geschossiger Ausführung Preise und Leistungen.
Grundrisse 1,5-geschossig
- Kleines Fertighaus bauen: Preise und Anbieter vergleichen
- Fertighaus mit 100 qm bauen: Preise und Beispiele
- Fertighaus mit 150 qm bauen
- Großes Fertighaus bauen
- Die besten Fertighäuser im Vergleich
- Holzhaus Fertighaus bauen
- Haus-Konfigurator für die Hausplanung
- Die 10 beliebtesten Fertighäuser 2025
- Fertighaus-Wiederverkaufswert: 6 Tipps zur Steigerung
Massiv- & Fertighaus 1,5-geschossig: Häufige Fragen






















































































































































































































































