
Großes Fertighaus bauen

Weitläufiger Raum zum Zusammenleben bei gleichzeitiger Möglichkeit zum individuellen Rückzug – ein großes Fertighaus bietet diverse Vorteile. Unter anderem lassen sich umfangreiche Bauprojekte in Form großer Fertighäuser vergleichsweise unkompliziert umsetzen und sind dank der Vorfertigung im Werk innerhalb klar kalkulierbarer Zeit errichtet.
Doch was sind weitere Vorteile eines großen Fertighauses? Mit welchen Ausgaben müssen Sie beim Bau eines großen Fertighauses rechnen? Und für wen kommen große Fertighäuser in Frage? Diese und weitere Fragen beantworten wir im Fogenden.

Große Fertighäuser vergleichen

Seien Sie bestens informiert bei Ihrer Fertighauswahl! Fordern Sie Informationen von Baupartnern in Ihrer Nähe an, um bei der Entscheidung gut vorbereitet zu sein.
Kataloge anfordernGroßes Fertighaus: Definition
Als großes Fertighaus gilt jede vorgefertigte Immobilie, die den bei einem Einfamilienhaus üblichen Durchschnittswert von 150 Quadratmetern überschreitet.
Große Fertighäuser aber auch Massivbauten existieren dabei in unterschiedlichsten Haustypen, vom ausgedehnten Zweifamilien-Bungalow über die imposante Stadtvilla bis hin zum exklusiven Luxusobjekt.
Bei unseren Anbietern wählen Sie innerhalb des gesamten Spektrums großer Fertighäuser, vom modernen Mehrparteienhaus mit weit über 450 qm bis zum familienfreundlichen Schwedenhaus mit knapp 155 qm.
Für wen eignen sich große Fertighäuser?
Ein Massiv- oder Fertighaus groß zu dimensionieren bietet sich primär bei Haushalten mit einer entsprechend umfangreichen Personenzahl an, wie etwa bei einer Großfamilie mit mehr als zwei Kindern oder einem auf Gemeinschaftlichkeit ausgelegten Mehrgenerationenhaus mit separaten Wohneinheiten.
Aber auch wenn Sie relativ umstandslos ein Mehrfamilienhaus planen wollen oder ein luxuriöseres, großräumiges und zugleich praktikables Wohndesign bevorzugen, liegen große Fertighäuser mit einem einzigen Baupartner nahe.
Die Vorteile eines großen Fertighauses
Tatsächlich ist es neben der verhältnismäßig leichten Plan- und Durchführbarkeit genau die ansehnliche Fläche und damit einhergehende Versatilität, die den überzeugendsten Vorteil beim Bau eines großen Fertighauses durch einen Hersteller darstellt. Denn die stattliche Wohnfläche eines großen Fertighauses erlaubt auch bei zahlreichen Hausbewohnern eine variable Raum- und Wohnaufteilung, und ermöglicht Gemeinschaftsbereiche wie auch die Abgrenzung privater Erholungsorte.
Hierbei sollten Sie unbedingt den lokalen Bebauungsplan und die Grundstücksgröße im Blick behalten. So raten wir Ihnen beispielsweise, bei einem großen Fertighaus-Bungalow von 200 qm mit Stellplätzen und Gartenanlage mit einer Grundstücksfläche von mindestens 840 qm zu rechnen.
Nicht zuletzt bedeutet der Wohnraum von beachtlichem Umfang einen hohen Wiederverkaufswert eines großen Fertighauses.
Fertighaus groß: Vorteile
Optimale Planbarkeit trotz umfangreichen Bauprojekt
Großzügiger Wohnraum mit viel Gestaltungsfreiheit
Fertighaus groß: Nachteile
Vermehrte Baukosten dank mehr umbauten Quadratmetern
Größeres Baugrundstück nötig
Welches Budget erfordern große Fertighäuser?
Selbstverständlich hat Fläche ihren Preis – derzeit zahlen Sie im Durchschnitt 2.700 Euro pro qm für einen Neubau.
Das heißt, dass Sie bei einem großen Fertighaus mit einer Wohnfläche von 180 qm einen mittleren Hauspreis von 486.000 Euro und mehr ansetzen können.
Zum Hauspreis addieren sich bei großen Fertighäusern entsprechend höhere Kosten für Keller oder Bodenplatte, Grundstück, Baunebenkosten, genau wie bestimmte Materialkosten und Ähnliches.
Übrigens: Auch bei großen Fertighäusern hängt der letztendliche Preis stark von konkreter Ausstattung, individueller Gestaltung und der jeweiligen Ausbaustufe ab. So können Sie etwa mit handwerklichem Geschick und persönlichem Zeiteinsatz durch Eigenleistung Lohnkosten bei einem Bausatz- oder Ausbauhaus einsparen. Oder Sie minimieren die Kosten generell für Ihr großes Fertighaus, indem Sie die Standardvariante Ihrer Baufirma wählen.
Großes Fertighaus: Schlüsselfertige Preise
Fertighaus mit großer Wohnfläche: Preise bei Selbstausbau
Große Fertighäuser: Preise für Bausätze

Kostenloser Budgetrechner
Wie viel Budget steht Ihnen für Ihr Bauvorhaben zur Verfügung? Hier erfahren!
Zum BudgetrechnerWas kostet ein großes Fertighaus? Beispielrechnung
Um Ihnen einige greifbare Orientierungswerte zu den Baukosten eines großen Fertighauses an die Hand zu geben, kalkulieren wir diese beispielhaft für ein schlüsselfertiges, mittelpreisiges Objekt mit 195 qm Wohnfläche (Quadratmeterpreis 2.750 Euro). Hier hinzu rechnen wir ein Baugrundstück von 630 qm zu einem aktuellen Durchschnittspreis laut Destatis von 218 Euro pro qm. Außerdem gehen wir von einer Teilunterkellerung in Form eines Nutzkellers auf 65 qm aus.
| KOSTENPUNKT | PREIS |
|---|---|
| Großes Fertighaus: Preis | 536.250 Euro |
| Grundstück | 137.340 Euro |
| Grundstücksnebenkosten (Makler, Notarin, Grunderwerbsteuer) | 13.734 Euro |
| Teilbodenplatte | 16.250 Euro |
| Teilunterkellerung | 65.000 Euro |
| Außenanlage | 53.625 Euro |
| Baunebenkosten | 107.250 Euro |
| Sonstige Kosten (Umzug, Richtfest etc.) | 15.000 Euro |
| = Fertighaus groß: Gesamte Kosten | 944.449 Euro |
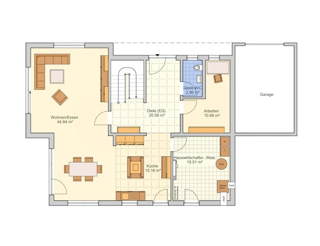
Grundriss-Ideen für ein großes Fertighaus
Auch bei der Grundrissplanung für Ihr großes Fertighaus gilt trotz der hohen Quadratmeterzahl der Grundsatz: weniger ist mehr. Offene, je nach Bedarf unterschiedlich verwendbare Räume, klare Linienführung und minimalistische Abstell-, Treppen- und Dielenbereiche schaffen noch mehr Platz für Ihren Wohnraum – egal ob Sie vorhaben, in einem Mehrfamilienhaus das ausladende Dachgeschossloft zu beziehen und die übrigen Wohnungen zu vermieten, oder ein Heim für Ihre fünfköpfige Familie zu schaffen.
Große Fertighäuser: Grundrissbeispiel
Beispielhaft könnten Sie Ihr zweistöckiges großes Fertighaus mit 200 qm Wohnfläche für zwei Erwachsene und drei Sprösslinge wie folgt konzipieren:
Erdgeschoss:
- Offene Küche mit fließendem Übergang in Wohn- und Essbereich: 54 qm
- Hauswirtschafts- und Technikraum: 8 qm
- Duschbad: 8 qm
- Jugendzimmer: 15 qm
- Eingangsbereich mit Staufläche, Flur und Treppe: 15 qm
Obergeschoss:
- Elternschlafzimmer: 19 qm
- 2 Kinderzimmer: je 15 qm
- Büro: 14 qm
- Badezimmer: 16 qm
- WC: 6 qm
- Galerie und Treppe: 15 qm
Fertighaus mit großem Grundriss: Unser Tipp
Lassen Sie sich von den sorgfältig durchdachten Grundrissen für große Fertighäuser auf unserer Seite inspirieren. Selbstverständlich können Sie jeden Bauplan individuell an Ihre Vorstellungen anpassen, wobei Ihnen unsere Anbieter mit Rat und Tat zur Seite stehen, damit Ihr Traum vom großen Fertighaus in Erfüllung geht.
- Fertighaus mit 100 qm bauen: Preise und Beispiele
- Fertighaus mit 150 qm
- Kleines Fertighaus bauen: Kosten, Grundrisse & Anbieter 2025
- Fertighaus 1,5-geschossig bauen
- Die besten Fertighäuser im Vergleich
- Die besten Fertighausanbieter: Der Weg zum perfekten Baupartner
- Haus-Konfigurator für die Hausplanung
- Die 10 beliebtesten Fertighäuser 2025
- Tag des deutschen Fertigbaus: Termine, Inhalte & teilnehmende Anbieter
Große Fertighäuser: Häufige Fragen



























































































































