
Villa bauen

Sicherlich einen der exklusiveren Haustypen stellt die Villa dar – ein elegantes, zum Teil extravagantes Erscheinungsbild, Komplexität und hochpreisiger Materialeinsatz beim Design und ein großzügiger Aufbau machen den Hausbau einer Villa zu keinem Allerweltsprojekt. Eine Villa zu bauen gehört damit zwar nicht ausschließlich in die absolute Luxussparte beim Bau, ist aber eng mit dieser verknüpft. So rekurrieren Sie, wenn Sie eine moderne Villa bauen, auf die Herrenhäuser und Landsitze der vornehmen Gesellschaft vergangener Zeiten, interpretieren diese aber zeitgenössisch um.
Somit bedeutet der Bau einer Villa die bewusste Entscheidung für einen anspruchsvollen Neubau, welcher im Sinne eines Architekten-Einzelstücks Ihrer Persönlichkeit und Ihrem individuellen Wohnstil eine repräsentative Gestalt gibt.
Im Folgenden haben wir detaillierte Informationen rund um den Bau einer Villa zusammengestellt, gehen eingehend auf die Besonderheiten von Villa-Grundrissen und deren Umsetzung ein und stellen Ihnen imposante Beispiele unserer Baupartner einschließlich der jeweiligen Villa-Baupläne vor.

Villa bauen: Ideen & Angebote

Kostenlos Kataloge & Informationen anfordern!
Seien Sie bestens informiert bei Ihrer Traumhauswahl! Fordern Sie Informationen von Baupartnern in Ihrer Nähe an, um bei der Entscheidung gut vorbereitet zu sein.
Kataloge anfordernWas ist eine Villa?
Baurechtlich gesehen existiert beim Hausbau für die Villa tatsächlich keine bindende Definition, was viel Spielraum für eine kreative persönliche Ausgestaltung eröffnet. Doch wann ist ein Haus eine Villa? Zieht man für eine grundsätzliche Begriffsbestimmung Nachschlagewerke wie den Duden zu Rate, so wird die Villa als weitläufiges, grundsätzlich nobles, in einem Garten oder sogar einer Parkanlage befindliches, freistehendes Einfamilienhaus oder auch großflächiges, vornehmes Landhaus umschrieben. Demzufolge ist aufgrund der ausgedehnten Wohnfläche und hochqualitativen Ausführung auch ein gewisser Immobilienwert ein Kernattribut einer Villa.
Weitere kennzeichnende architektonische Charakteristika der Villa sind:
- zwei oder mehr vollwertige Etagen
- eine ausgeklügelte, auf multidimensionale Wohnebenen ausgelegte, zum Teil abstrakt-geometrische, oft auch asymmetrische Grundrissgestaltung
- vielschichtige Dachformen mit auffälligen Kombinationen von Neigungswinkeln, Steil- und Flachdachelementen, Zwerchhäusern, Gauben oder Dachterrassen
- eine eindrucksvolle Fassadengestaltung, häufig mit apartem Materialmix
- Bodentiefe Fenster und großflächige Glasfronten
- harmonisch in den Gebäudekomplex eingefügte Doppelgaragen
- wirkungsvoller Eingangsbereich, zum Teil über eine freistehende Designertreppe in eine luftige Galerie übergehend
- eine offene Raumgestaltung im Parterre, Privaträume wie Schlafzimmer in den oberen Etagen
Hausbau & Villa: Ursprung

Der Begriff der Villa beim Hausbau hat sowohl seinen semantischen als auch seinen architektonischen Ursprung im Römischen Reich: Das lateinische Wort Villa hat die Bedeutung Landhaus oder auch Landgut. Die anfänglich noch rustikal geprägte Villa als Zweitwohnsitz des römischen Patriziats wandelte sich ab der Renaissance immer mehr zur hochherrschaftlichen Wohnstätte. Wahrhaft königlich zeigte sich die Villa, zumindest sprachhistorisch gesehen, bereits zuvor im Mittelalter. Denn als villae regiae wurden zu dieser Zeit die Rittergüter bezeichnet, auf denen die karolingischen Herrscher im Rahmen des damals üblichen Reisekönigtums Zwischenstation einlegten. Mit der auf Außenwirkung ausgelegten Gründerzeit- und Jugendstil-Villa verfestigte sich dann das hochklassige Image der Villa, was seit dem Ende des 20. Jahrhunderts dann wieder verstärkt in der gegenwärtigen Baukunst aufgegriffen wird.
Diese vornehme Vergangenheit der Villa bedingt ihre heutige Exklusivität und besonders viel Raum bietenden Grundrisse und wird mit einer gehörigen Prise aktuellen Zeitgeists architektonisch zitiert und beständig fortentwickelt.
Weitere Villa-Themen
Villa bauen mit höchsten Energiestandards
Zu den ausgesuchten Qualitäten der Villa beim Bau gehört auch ein Energiestandard, der die Vorgaben des GEG signifikant übertrifft und damit die höchsten Effizienzstufen erreicht. Hierbei wird innovative Haustechnik oft auf aufsehenerregende Weise mit ins Design integriert und sorgt damit nicht nur für erstklassige Wärmedämmung sowie nachhaltigen Energieeinsatz beispielsweise mit Wärmepumpe und PV-Anlage, sondern auch für eine hochmoderne Optik.
Übrigens: Auch wenn Sie eine Villa bauen, sind ab KfW-Standard 40 Förderprogramme vorgesehen, mit denen Sie nicht nur ein Energiesparhaus realisieren, sondern auch die Kosten für Ihre Villa reduzieren können.
Villa bauen: Beliebte Beispiele unserer Anbieter
Villa bauen: Vorteile und Nachteile
Vorteile
Repräsentativ & hochindividuell
Große Wohnfläche
Viel Rückzugsraum
Parkähnlicher Garten
Nachteile
Weitläufiger Baugrund notwendig
Kostenintensiv aufgrund individueller Planung, edler Ausstattung & luxuriöser Ausführung
Anbieter, die eine Designer-Villa bauen
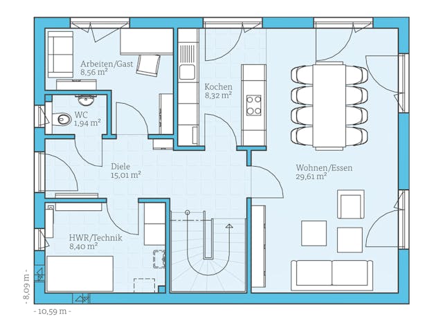
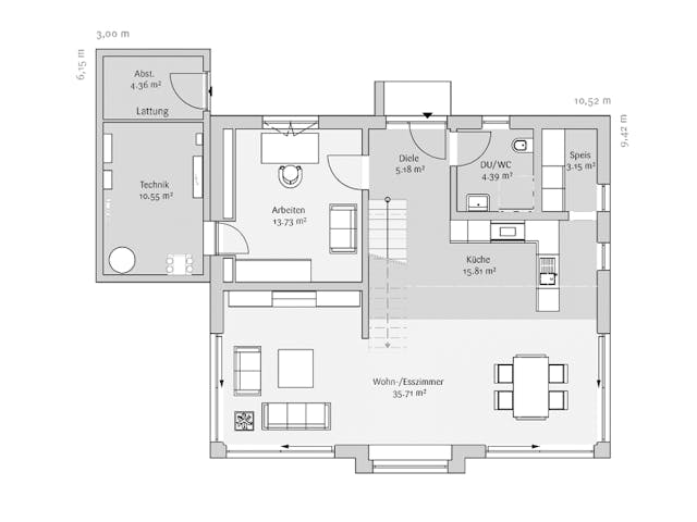
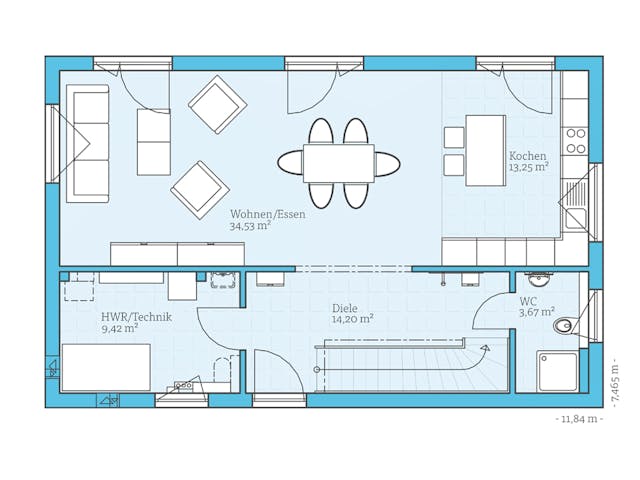
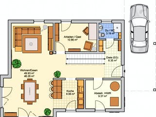
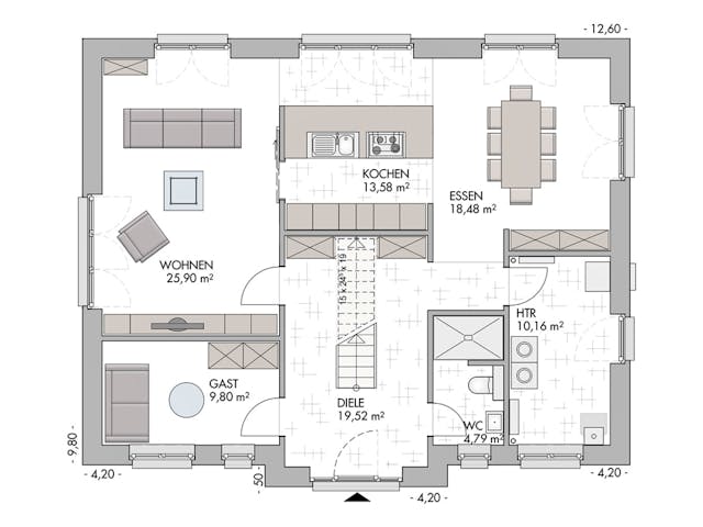
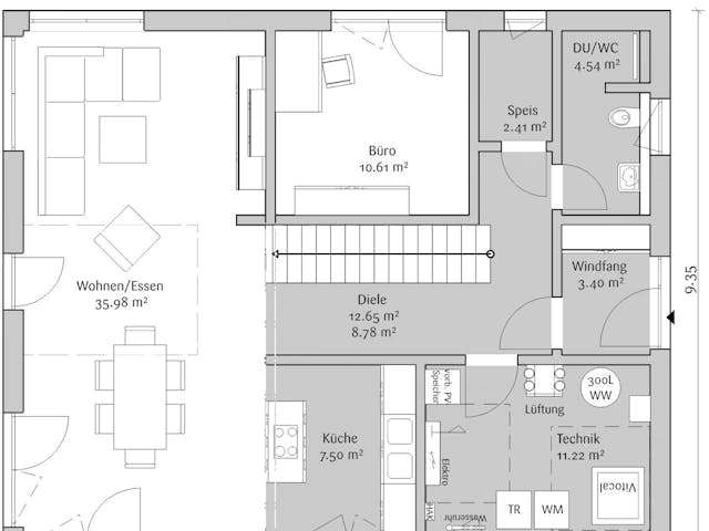
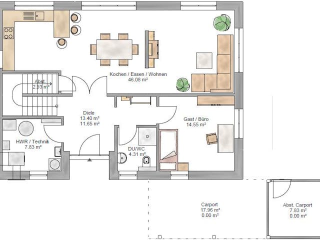
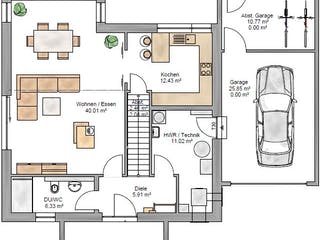
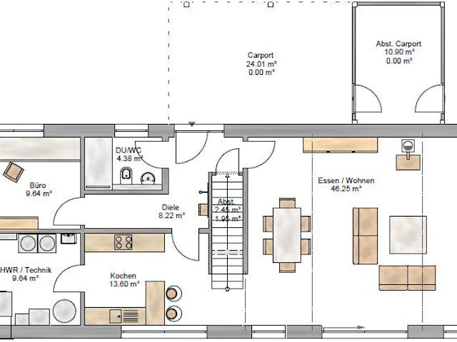
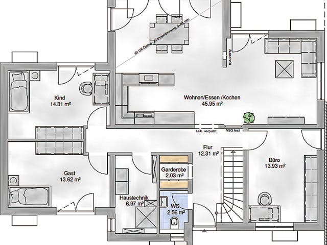
Villa-Grundriss: Ideen & Gestaltung

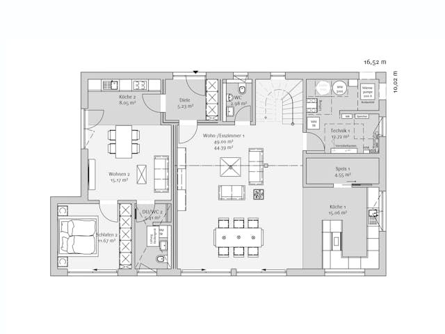
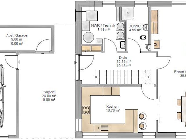
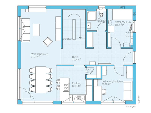
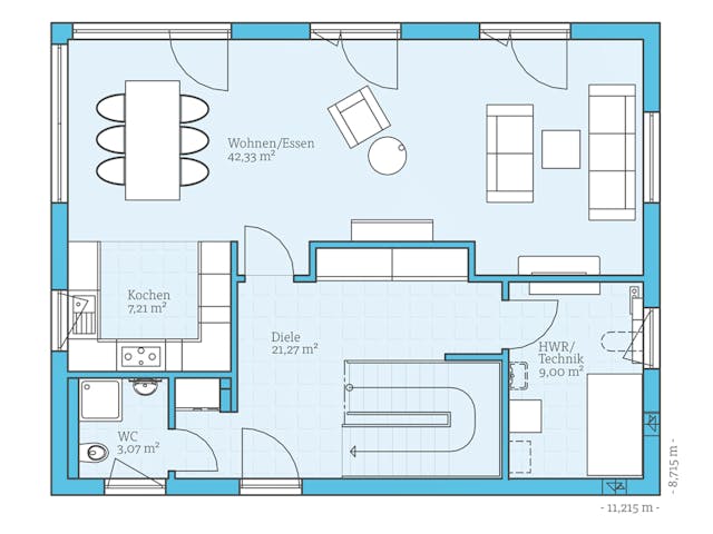
Wie schon erwähnt zeigen sich Villa-Grundrisse aufgrund der umfangreichen Wohnfläche extrem wandlungsfähig und zumeist sehr komplex. Gemeinsam ist aber allen Grundrissen einer Villa die offene Gestaltung mit fließenden Raumübergängen im Erdgeschoss bei zugleich im Überfluss vorhandenem Rückzugsraum.
Prinzipiell können Baupläne für eine Villa hierbei zwei unterschiedliche Hauptansätze verfolgen:
Auf der einen Seite steht der klassische, symmetrische Villa-Grundriss wie beim hier gezeigten Beispiel von Danwood, dessen ebenmäßiges Außenbild besondere Harmonie und schlichte Eleganz ausdrückt. Der von Säulen gestützte Quergiebel, der gleichzeitig einen Balkon und den Eingangsbereich überdacht, erinnert trotz der geradlinigen modernen Formensprache an die malerischen Villen des Historismus.
Auf der anderen Seite wiederum finden sich die stark individualisierten, sich durch Komplexität und einfallsreiche Stilelemente hervorhebenden Villa-Grundrisse der Gegenwart, die auf gekonnte Brüche in Erscheinungsbild, Material und Baukörpern setzten, welche dann dennoch ein stimmiges Ganzes ergeben.
Wollen Sie eine Villa bauen und Ideen sammeln, dann nutzen Sie doch einfach die bereits umgesetzten Villa-Grundrisse unserer Anbieter als Inspiration. Diese lassen sich selbstverständlich an Ihre Wünsche anpassen und von Grund auf neu planen.
Villa bauen: Häufige Fragen


















































































