Modulhaus bauen

Geradlinige Gestaltung, nachhaltige Herstellung mit höchsten Energiestandards, unkomplizierte Planung und schnelle Umsetzung gehören aktuell zu den meistpräferierten Aspekten beim Hausbau – und bestimmen gleichzeitig den Fokus beim Bau eines Modulhauses. Was viele Bauinteressierte nicht wissen: Auch ein Modulhaus lässt sich hochgradig individuell anpassen und gehört somit wohlverdient zu den wichtigsten Trends beim modernen Wohnen.
Welche weiteren Vorteile ein Modulhaus zu bauen hat, welche Modulhaus-Preise üblich sind und welche Anbieter sich auf diese Bauweise spezialisiert haben wie auch weitere Details rund um das Modulhaus erfahren Sie auf dieser Seite.

Empfohlene Modulhäuser

Kostenlos Kataloge & Informationen anfordern!
Seien Sie bestens informiert bei Ihrer Traumhauswahl! Fordern Sie Informationen von Baupartnern in Ihrer Nähe an, um bei der Entscheidung gut vorbereitet zu sein.
Kataloge anfordernWas ist ein Modulhaus?
Ein Modulhaus besteht aus individuellen Wohneinheiten, die in einer Fabrik vorgefertigt und anschließend zu einem Haus zusammengesetzt werden, weshalb es sich also um eine Form der Fertighäuser mit einem besonders hohen Maß der Vorproduktion und Vorkonstruktion handelt. Die einzelnen Raumeinheiten werden hierbei zum Teil bereits werkseitig nahezu schlüsselfertig, das heißt mit Innenausbau im vertraglich vereinbartem Umfang, ausgeführt und dann nach Anlieferung mithilfe eines Sattelschleppers auf der Baustelle innerhalb weniger Tage zum kompletten Modulhaus zusammengefügt.
Diese Wohnmodule können als Sonderfall des Containerhauses aus Seefrachtcontainern bestehen, sind im Regelfall aber aus Holz gefertigt. Auch in Deutschland und Österreich wächst die Begeisterung für die Modulbauweise, nachdem sich dieser praktische Haustyp in den Vereinigten Staaten und Großbritannien bereits seit längerem etabliert hat. Ein entscheidender Grund für die Beliebtheit ist ein Höchstmaß an Flexibilität. Denn die einzelnen Module lassen sich je nach Wohnsituation den persönlichen Gegebenheiten und unterschiedlichen Lebensabschnitten anpassen und in unterschiedlichsten Ausführungen und Kombinationen zusammenstellen und erweitern. Darüber hinaus verfügen Modulhäuser über vielseitige Einsatzmöglichkeiten:
- als (kleines) Einfamilienhaus
- als Anbau an ein bestehendes Haus
- als Ferienhaus
- als Home Office oder Gästewohnung
- als Gemeinde- oder Gewerbebau (z.B. Ausstellungsraum, Kindergarten, Büromodul)
Modulhaus-Preise & Kosten
Generell ist modulares Wohnen in der Standardausführung eine besonders günstige Variante des Eigenheims – wie auch bei anderen Bauweisen. Je nach Ausstattung, Materialien und anderen Faktoren wie der Größe schwanken aber auch beim Modulhaus die Preise und Kosten. So liegen im mittleren Qualitätssegment beim Modulhaus schlüsselfertige Preise im Schnitt bei 2.500 bis 3.000 Euro pro Quadratmeter, in gehobener Ausführung sollten Sie hierbei aber mit einem Quadratmeterpreis von bis zu 4.000 Euro rechnen. Im Bereich von über 4.000 Euro pro Quadratmeter befinden sich schlüsselfertige Modulhaus-Preise bei Luxusausführung des Objekts.
Unser Tipp: Beim Modulhaus, wie auch bei anderen Bauformen, muss ausreichend Platz für die Haustechnik mit eingeplant werden, sofern ohne Keller gebaut wird – und jeder umbaute Quadratmeter schlägt sich in den Kosten nieder. Modulhaus-Preise hängen damit immer auch von einer platzsparenden Planung des Grundrisses ab.
Was kostet ein Modulhaus?
Um umfassend zu verstehen, was ein Modulhaus insgesamt kosten kann, wollen wir Ihnen eine Beispielrechnung zur Verfügung stellen. Dieser zugrunde liegt ein schlüsselfertiges Modulhaus mit 120 qm Wohnfläche auf zwei Vollgeschossen in gehobener Ausführung zu 3.800 Euro pro Quadratmeter. Obendrauf kommen Grundstückskosten für 420 qm Baugrund bei einem deutschlandweiten Durchschnittspreis von aktuell 218 Euro pro qm, die Bodenplatte, Baunebenkosten und Außenanlage.
| KOSTENPUNKT | PREIS |
|---|---|
| Modulhaus-Preis | 456.000 Euro |
| Grundstück | 91.560 Euro |
| Grundstücksnebenkosten (Grunderwerbsteuer, Notarin, Makler) | 9.156 Euro |
| Bodenplatte | 15.000 Euro |
| Außenanlage | 45.600 Euro |
| Baunebenkosten | 91.200 Euro |
| Sonstige Kosten (Umzug, Richtfest u.Ä.) | 15.000 Euro |
| = Modulhaus – Kosten gesamt: | 723.516 Euro |
Für wen eignen sich Modulhäuser?
Modulhäuser eignen sich im Grunde aufgrund ihrer vielfältigen Gestaltbarkeit für jede Wohnkonstellation. Da die reine Bauzeit für Modulhäuser kürzer ist als bei herkömmlichen Haustypen, sind sie vor allem bei jungen Familien besonders beliebt. Hierbei gilt es allerdings zu beachten, dass Modulhäuser fast immer auf Fundamenten errichtet werden und eine Unterkellerung somit gesondert eingeplant werden muss. Wer also mit Keller bauen möchte, kann dies auch bei dieser Bauweise realisieren, sollte aber entsprechend mehr Zeit einrechnen. Alles in allem lässt sich durch die persönliche Vorplanung mit dem Anbieter mit einem flexiblen Modulhaus so gut wie jeder Wohntraum erfüllen. Egal ob altersgerechter Bungalow oder geräumiger Cubusbau – ein Modulhaus passt in jede Lebenslage.
NEXT by Danwood: Ihr kompetenter Baupartner für Modulhäuser
Dank mehr als 25 Jahren Erfahrung steht Danwood für hochwertigen Modulbau in schlicht-elegantem Design. Und nicht nur das attraktive Preis-Leistungsverhältnis der schlüsselfertigen Modulhäuser aus Holz des mehrfach zertifizierten Anbieters spricht für sich. Denn Danwood fokussiert Nachhaltigkeit, Energieeffizienz und erstklassige Qualität nicht nur bei der Produktion, sondern auch bei Design und Ausstattung seiner modernen Modulhäuser.
Mit der neuen Modulhaus-Serie NEXT by Danwood vereint der europaweit etablierte Hausanbieter aktuellste Smart-Home-Lösungen mit den Energiestandards eines KfW-Effizienzhauses 40 plus. Geradliniger, cleaner Baustil mit ausladenden Fensterflächen, modernste Technik und Premium-Innenausstattung runden die ebenerdigen High-End-Modulhäuser ab. Nicht zuletzt garantiert Danwood dank durchoptimierter Produktionsprozesse eine besonders schnelle Fertigung und Montage Ihres schlüsselfertigen Modul-Bungalows oder Mehrgeschossers, sodass Sie schnell und komfortabel Ihr neues Zuhause beziehen können.
- Modernes klares Design mit deckenhohen Fensterfronten
- Exklusive Ausstattung und Ausführung
- Umfassendes Smart-Home-System
- Energie-Effizienzstandard 40 Plus
- Schlüsselfertige Ausbaustufe, Küche optional
- Besonders zeitnahe Lieferung und kurze Bauzeit
Die Vorteile von Modulhäusern

Wird mehr Fläche benötigt oder besteht der Wunsch nach einer räumlichen Neuaufteilung, dann ist ein Modulanbau eine praktische Lösung, denn es ist kein vollständiger Umbau des Hauses vonnöten. Besonders bei Familienzuwachs sind modulare Anbauten eine optimale Lösung. Neben der Aufteilung und Größe der Räume sind auch im äußeren Erscheinungsbild und der Fassadengestaltung keine Grenzen gesetzt.
Die Vielseitigkeit modularer Häuser
Der Modulbau ist sehr flexibel und individuell einsetzbar. Neben der Nutzung als gemütliches Eigenheim, kann ein Hausmodul perfekt als Gäste- oder Ferienwohnung verwendet werden. Des Weiteren bietet es eine praktische Lösung, um beispielsweise ein Büro an einen passenden Ort aufzustellen oder aber andere günstige Gewerberäume zu schaffen.
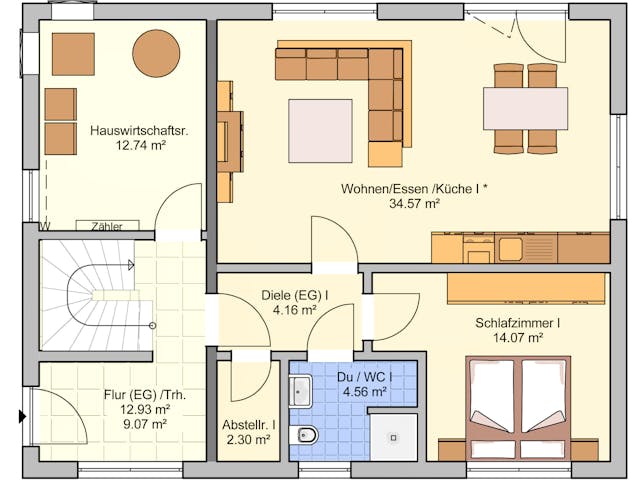
Modulhaus 120 qm
Modulhaus 100 qm
Modulhaus 80 qm
Modulhaus 50 qm
Weiterer Pluspunkt: Modulhäuser können als barrierefreier Wohnsitz verwirklicht werden, wodurch sie sich hervorragend für körperlich eingeschränkte Personen als auch Senioren anbieten. Zudem ist das Modulhaus bei folgenden Häuslebauern beliebt:
- Singles
- Junge Familien
- Studierende
- Reisefans
Beim Thema Kosten ist die Anschaffung eines Modulhauses in einigen Fällen günstiger als bei den meisten anderen Hausarten. Voraussetzung dafür ist, dass das Ausmaß des Hauses keine Villen-ähnlichen Formen annimmt, denn dann kann selbst diese Hausform sehr kostspielig werden. Daher sollte beachtet werden, dass sich der Preis immer noch nach der Ausbaustufe, der Größe und den verwendeten Materialien sowie der Ausstattung richtet.
Modulhaus-Bungalow
Ein Nachteil des modularen Hausbaus ist die meist fehlende Unterkellerung und somit der Verzicht auf mehr Stauraum. Grund hierfür ist, dass einige Modulhäuser lediglich auf Fundamentplatten gesetzt werden, wodurch wiederum die Mobilität gewährleistet werden kann. Dies ist jedoch nicht obligatorisch.
Anbieter für Modulhäuser
Anbieter für Modulhäuser gibt es mittlerweile mit den verschiedensten Spezialisierungen. Darüber hinaus haben diverse Fertighausanbieter sogar eigene Linien von Modulhäusern in Ihrem Sortiment. Auch hier auf Fertighaus.de finden Sie eine große Auswahl an Anbietern für Modulhäuser. Lassen Sie sich von deren Beispielhäusern inspirieren und treten Sie mit Ihrem Wunschanbieter in Kontakt, um Ihr Traumhaus zu planen.

Finden Sie heraus, welches Haus am besten zu Ihnen passt!
In unserem Quiz können Sie wichtige Eckdaten festlegen, verstehen, welches Haus zu Ihnen passt und herausfinden, welche Baupartner es am besten bauen können.
Hausbau-Assistenten startenModulhaus bauen: Häufige Fragen

























































































































































































