Passender Grundriss fürs Haus

Ein Eigenheim zu bauen kann viele Gründe haben. Eines der wichtigsten Motive ist der Wunsch nach mehr Platz, individueller Raumaufteilung im Haus und ausreichend Zimmern für jedes Mitglied des Hausstandes.
Bei der Wahl des neuen Zuhauses spielt der jeweilige Grundriss des Hauses eine essentielle Rolle. Denn ein Haus-Grundriss zeigt, ob in den zur Auswahl stehenden Objekten letztendlich genügend Raum für die Bedürfnisse aller Bewohner vorhanden ist. Daher finden Sie in dem Exposé der meisten Häuser unserer Baufirmen neben den Fakten auch Grundriss-Beispiele, die auf die Wohnfläche und den Haustyp abgestimmt sind. Im Folgenden erfahren Sie alles Wissenswerte rund um die Planung und Interpretation von Grundrissen und können kostenlos ein breites Spektrum an Grundrissen für Ihr Haus mit Maßen vergleichen.

Hausgrundrisse optimal ausrichten
Das Ausrichten der Zimmer ist eine der zentralen Aufgaben während der Grundrissplanung. Denn die Lichteinstrahlung beeinflusst die Atmosphäre in Ihrem Haus beträchtlich. Zudem kann die Sonne als kostenfreier Energie- und Wärmelieferant genutzt werden. Da sich Sonnenlicht zudem positiv auf das Wohlbefinden auswirkt, sollten Wohn- und Schlafzimmer im Grundriss nach Süden oder Westen ausgerichtet werden. Hausbereiche, in denen kein direktes Sonnenlicht vonnöten ist, wie beispielsweise der Hauswirtschaftsraum oder der Treppenaufgang, können im Grundriss in Richtung Norden oder Osten liegen. Hierunter fällt beim Grundriss fürs Haus auch die Garage oder der Carport. Generell gilt in Bezug auf die Lichtverhältnisse:
- Norden: wenig sonne
- Osten: morgens Sonne, nachmittags Schatten
- Süden: den ganzen Tag Sonne, wenig Schatten
- Westen: morgens Schatten, nachmittags Sonne

Grundrisse nach Hauskategorien
Haus-Grundriss: Variabilität als Voraussetzung
Bei der Entscheidung für ein Eigenheim repräsentiert der Raumplan ein grundlegendes Auswahlkriterium, genau wie Variabilität standardisierter Grundrisse für das jeweilige Modell. Die meisten unserer Anbieter geben Ihnen beispielhaft bewährte Grundrisse ihrer Häuser vor. Baufamilien stehen dabei darüber hinaus eine Vielzahl an Varianten offen, wie man den Schnitt des Haus-Grundrisses mit seinen Vorstellungen abstimmen kann – oder den Grundriss sogar komplett von Grund auf neu plant.
Diese Adaptierbarkeit des Haus-Grundrisses ist unverzichtbar, denn die konkrete Raumplanung hängt nicht nur davon ab, wie viele Personen die Immobilie letztendlich bewohnen werden. Eine Familie mit kleinen Kindern stellt andere Anforderungen an eine Haus-Blaupause als Menschen mit älteren Sprösslingen, ein Paar ohne Kinder oder gar Singles. In den ersten Jahren braucht der Nachwuchs genügend Platz, und sicherlich hätte jedes Kind gern ein eigenes Zimmer. Das muss bei der Aufteilung der Räume im Grundriss berücksichtigt werden. Ideal ist es, wenn Grundrisse bereits so angelegt sind, dass die Raumnutzung später geändert und damit veränderten Bedürfnissen angepasst werden kann.
Ideal ist es, wenn man bei der Planung des persönlichen Traumhauses Grundrisse variieren und den eigenen Wünschen anpassen kann. Hierbei nicht zu vernachlässigen ist die zweckmäßige Gestaltung der Räume. Die Raumaufteilung im Grundriss hängt davon ab, wie groß eine Familie ist und wie sich ihre Lebenssituation in absehbarer Zukunft verändern wird. Mit dem richtigen Grundriss lassen sich Häuser im Lauf der Jahre relativ einfach an neue Entwicklungen im Haushalt und vollkommen andere Gegebenheiten anpassen.
Welche Informationen enthält ein Grundriss?
Bevor man die gewünschte Raumaufteilung im Haus skizzieren oder überhaupt darüber entscheiden kann, ob ein Grundriss zu den eigenen Voraussetzungen passt oder nicht, gilt es, wichtige Aspekte zu klären und an alle notwendigen Elemente zu denken. Am besten geht das per Checkliste:
- Zahl der Ebenen und Raumanzahl
- Offener oder geschlossener Grundriss
- Zahl der Bäder inkl. Gäste-WC
- Größe der Verkehrsflächen
- Fenster- und Türplatzierung
- Zusätzliche Räume wie Hobbyraum oder Sauna
- Flur und Galerie
- Technikraum
- Treppenpositionierung
- Lichtquellen
- Steckdosenverteilung
- Wasser- und TV-Anschlüsse
- Position von Balkon und Terrasse nach Himmelsrichtung
Beim Erstellen des Grundrisses sollte wenigstens mit der Mindestgrößefür die entsprechenden Räume gerechnet werden. Somit fallen später die Zimmer nicht zu klein aus. Zudem bietet es sich an, bereits beim Zeichnen des Grundrisses auch Hauptmöbel zu platzieren. So können Fenster- und Türpositionierungen besser mit der Einrichtung abgestimmt werden. Das hat auch zum Vorteil, dass Sie sich direkt vorstellen können, wie es in Ihrem zukünftigen Haus aussieht.
Im Grundriss auch Verkehrsflächen planen
Viele Hausentwürfe sind so angelegt, dass sie die so genannten Verkehrsflächen, wie Flur, Diele und Treppen, möglichst klein halten und dafür die Wohnräume und Schlafzimmer großzügig gestalten. Das ist jedoch keine zwingende Voraussetzung für einen ästhetisch-funktionalen Grundriss. So kann zum Beispiel bei einer Stadtvilla der Grundriss für das Erdgeschoss so angelegt werden, dass eine großzügige Diele entsteht. Gerade sie ist ein wichtiger Raum im Haus, weil eine ansprechend gestaltete Diele einladend wirkt und Ablagefläche für Garderobe und Schuhe sowie andere Dinge des Alltags bietet. Selbst eine Sitzbank kann hier untergebracht sein.
Wählen Sie jetzt ein passendes Haus mit Grundriss aus
Der richtige Grundriss für jedes Bedürfnis
Sein Haus kann man ganz nach dem Schnitt des präferierten Grundrisses bauen lassen. Vorher kommt es darauf an, gute Ideen zu entwickeln, die das Wohnen abwechslungsreich, aber zugleich praktikabel machen. Eine der wichtigsten Entscheidungen ist dabei die Frage, ob die Räume im Grundriss offen oder geschlossen gestaltet werden sollen.
Grundriss Bungalow
Bei einem Bungalow Grundriss bieten sich zum Beispiel offene Flächen nahezu an. Dabei gehen Wohnbereich, Essplatz und Küche im zentralen Bereich des Hauses fließend ineinander über. Der Vorteil eines Bungalows mit offenem Bauplan liegt im großzügigen Raumgefühl, den lichtdurchfluteten Bereichen und in einer freien und unverstellten Sicht. Perfekt sind solche offenen Grundrisse nicht nur für kinderlose Paare. Im Gegenteil: Ein weitläufiger, unverstellter Grundriss im Haus ist auch zumindest zu Teil perfekt für Familien. Beispielsweise hat man beim Kochen Sicht auf den Nachwuchs oder kann sich bereichsübergreifend unterhalten.

Grundriss Stadtvilla
Auch ein geschlossener Grundriss bietet jede Menge Vorteile. Möglich ist es zum Beispiel, in einer Stadtvilla den Grundriss so zu vorzusehen, dass verschiedene Wandelemente den Wohnraum im unteren Geschoss optisch teilen, ohne die Räume vollständig voneinander abzutrennen. Damit erreicht man eine Kombination aus einem offenen und einem geschlossenen Entwurf vom Haus, der das Erdgeschoss zum zentralen Raum für alle Bewohner macht. In der oberen Etage befinden sich dann separate Räume. So findet jedes Familienmitglied sein eigenes Rückzugsgebiet, in dem man bei Bedarf Privatsphäre genießt.
Grundriss kleines Haus
Möchten Sie lieber ein kleines Eigenheim bauen, so ist ein smarter Grundriss auch hier von herausragender Bedeutung. Auf wenigen Quadratmetern zu leben, verlangt ein gutes Maß an Organisation und die Verwendung von Multifunktionsmöbeln. Diese können bereits beim Grundriss berücksichtigt werden, um die geringen Zimmergrößen optimal ausnutzen zu können.
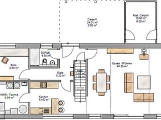
In dem Bungalow Grundrissentwurf rechts wurden ein Schlafzimmer, zwei Bäder, ein Arbeitsraum, ein HW-Raum, eine Ankleide, ein Flur und ein geräumiger Wohn-Ess-Bereich auf gerade mal 77 qm eingerichtet.

Grundriss Haus mit Einliegerwohnung
Sie interessieren sich für ein Haus mit einer Einliegerwohnung? Die separate Wohneinheit stellt besondere Ansprüche an den Grundriss des Hauses, bietet jedoch trotzdem die Möglichkeit, verschiedenste Wünsche und Vorstellungen mit einfließen zu lassen. Auch die geplante Verwendung spielt eine Rolle, denn je nachdem, ob die Einliegerwohnung von einem Familienmitglied oder einem Mieter genutzt werden soll, ergeben sich veränderte Anforderungen an den Grundriss. Ob Sie die zweite Wohnung im Erdgeschoss oder im Obergeschoss unterbringen, liegt ganz bei Ihnen. Auch können Sie sich mit dem Anbieter über die Größe der zweiten Einheit abstimmen.
Grundrisse für Häuser selbst anfertigen
Bevor man sich für den endgültigen Grundriss eines Hauses entscheidet, empfiehlt es sich, Ideen und Inspirationen zu sammeln. Übersichtliche Kataloge, in die Praxis umgesetzte Grundrisse anderer Baufamilien und Modelle von Häusern mit originellem Schnitt bieten Orientierung. So können Sie zunächst mit Stift und Papier Grundrissideen zeichnen oder auf eine geeignete Raumplaner-Software zurückgreifen. Dadurch lassen sich bei der Konzeptionalisierung des Eigenheims die eigenen Ideen ohne Aufwand umsetzen und der Grundriss für das Haus selbst planen.
Was bei der Hausplanung möglich ist, gilt es in einem kostenlosen Beratungsgespräch herauszufinden. Nicht jeder originelle Einfall lässt sich am Ende realisieren. Ihr Traum-Grundriss kann in der Realität auch auf Einschränkungen, Vorgaben oder andere Grenzen stoßen: So braucht jedes Haus Stauraum und einen Ort für die Haustechnik. In Häusern mit mehreren Etagen muss beim Grundriss auch die Treppe eingeplant werden. Darüber hinaus kann die im Bebauungsplan vorgegebene Ausrichtung des Hauses Einfluss auf die Wohnraumplanung haben.
Während Sie selbst Ihren Grundriss gewöhnlicherweise zunächst nur in 2D visualisieren, wird mithilfe eines Spezialisten der gesamte Grundriss des Hauses in einem 3D Modell veranschaulicht. Dabei wird nicht nur der Wohnraum von innen dargestellt, sondern auch der vollständige Aufbau des Hauses von außen, inklusive aller Maße und bei einigen Modellen auch unter Einbeziehung von Farben und Materialien.
Praktischerweise können Sie sich im Rahmen eines Beratungsgespräches Grundrisse, Entwürfe und Vorschläge für Häuser zeigen und erklären lassen. Das ist kostenlos möglich. Die Hilfe von Profis bei der Grundrisserstellung hat durchaus Vorteile. Denn den Plan muss man auch lesen und interpretieren können. Während der Beratung kann man sich dann den gewünschten Grundriss erstellen lassen. Dabei fließen von der Raumaufteilung im Haus über die Raumgröße bis hin zur Zahl der Steckdosen die eigenen Vorstellungen ein und finden Berücksichtigung. Um Zeit zu sparen, empfiehlt es sich jedoch, bereits mit eigens erstellten Grundriss-Entwürfen zum Beratungsgespräch zu erscheinen. Wichtige Einzelheiten, wie Dachschrägen oder einen Kniestock kann man auf dem Papier nicht sehen. Für einen Laien ist das oft verwirrend. Ein Profi dagegen plant perfekt.
Von Grundriss bis Einzug: Empfohlene Baufirmen
Fazit: Der Grundriss muss zu Ihrem Leben passen
Den Grundriss auszuwählen und festzulegen ist einer der wichtigsten Abschnitte im Hausbauprozess, schließlich sollte sich der Grundriss nach Ihren Vorstellungen und Bedürfnissen richten. Nehmen Sie sich bei der Planung Ihres Grundrisses Zeit und teilen Sie Ihrem Anbieter Ihre Wünsche mit. Die meisten Hausbaufirmen sind diesbezüglich flexibel und sorgen dafür, dass der finale Grundriss optimal zur Baufamilie passt.
Überblick
Grundriss variiert je nach Lebensweise
Kann selbst gezeichnet werden
Viele Anbieter nehmen Grundrissanpassungen auf Wunsch vor

Finden Sie heraus, welches Haus am besten zu Ihnen passt!
In unserem Quiz können Sie wichtige Eckdaten festlegen, verstehen, welches Haus zu Ihnen passt und herausfinden, welche Baupartner es am besten bauen können.
Hausbau-Assistenten startenHausgrundriss: Häufige Fragen

































































