




Haus Kernekamp von Splietker Bau
Preis auf Anfrage
Bewertungen von Splietker Bau
0
(0)
Wohnfläche
177 m²
Zimmer
6
Ausbaustufe
Schlüsselfertig
Bauweise
Massivhaus
Etagen
2,5
Energiestandard
Effizienzhaus 55
Dachform
Satteldach
Hausart
Einfamilienhaus
Beschreibung
Als klassisch-modernes Einfamilienhaus, bietet dieses Haus eine perfekte Mischung aus Komfort und modernem Wohnen. Zwei Vollgeschosse bieten viel Platz, die helle Putzfassade mit dunklen Akzenten und klaren Linien strahlt Modernität aus, hohe Fenster verbinden den Wohnbereich mit dem Außenbereich.
Sie haben Interesse?
Laden Sie sich jetzt Ihr kostenloses Exposé zu diesem Haus herunter:
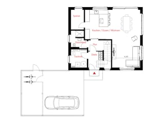
Grundrissfür Haus Kernekamp
Außenmaße
Länge: 10,64 m
Breite: 9,15 m
Grundrisse
Der Grundriss entspricht nicht Ihren Vorstellungen?
Passen Sie den Grundriss an Ihre persönlichen Bedürfnisse an und besprechen Sie Ihren individuellen Plan mit einem Bauberater des Anbieters.
Merkmale
Energiestandard und Förderung
Energiestandard
Effizienzhaus 40
Effizienzhaus 40 EE
Effizienzhaus 40 NH
Effizienzhaus 40 Plus
Effizienzhaus 55
Effizienzhaus 55 EE
Effizienzhaus 55 NH
Dach
Dachform
Satteldach
Dachneigung
30°
Preisdetails für Haus Kernekamp
Schlüsselfertig ab
Preis auf Anfrage
Dieser Preis ist ein Beispiel für den Anfang, ein Berater kann Ihnen ein detailliertes Angebot erstellen, das Ihren Bedürfnissen entspricht.
Möchten Sie bei Ihrem Projekt Geld sparen?
Durch einen Angebotsvergleich mit Fertighaus.de können Sie bis zu 20 % Ihrer Baukosten sparen.
Haus Kernekamp - Hilfreiche Fragen & Antworten
Da Splietker Bau jedes Projekt individuell plant, wird der Preis auf Anfrage ermittelt. Bei einem massiv gebauten Einfamilienhaus dieser Größe und dem hohen energetischen Standard können Sie meist mit Kosten im gehobenen Segment rechnen. Gerne unterstützen wir Sie dabei, ein konkretes Angebot für Ihre Wünsche einzuholen, damit Sie Planungssicherheit für Ihr Budget erhalten.
Dieses Modell besticht durch sein klassisches Satteldach mit einer Neigung von 30 Grad. Die Kombination aus einer hellen Putzfassade und dunklen Akzenten verleiht dem Gebäude eine moderne Optik. Dank der 2,5 Geschosse und der bodentiefen Fenster entstehen lichtdurchflutete Räume, die den Wohnbereich harmonisch mit dem Außenbereich verbinden und ein großzügiges Wohngefühl schaffen.
Für das Haus Kernekamp empfehlen wir eine Grundstücksfläche von mindestens 450 m². Bei einer Grundfläche von knapp 97 m² bleibt so genügend Raum für einen schönen Garten und notwendige Stellplätze. Wir haben hierbei etwa 50 m² für Parkmöglichkeiten und rund 295 m² für die Gartenfläche eingeplant, um alle erforderlichen Abstandsflächen sicher einzuhalten.
Splietker Bau setzt konsequent auf die Massivbauweise und bietet verschiedene Energiestandards wie das Effizienzhaus 40 NH an. Durch den Einsatz ökologischer Materialien und die Begleitung durch eine DGNB-Auditorin ist Ihr Neubau besonders zukunftssicher. Auf Wunsch lässt sich eine offizielle Zertifizierung realisieren, mit der Sie von attraktiven KfW-Förderungen für klimafreundliches Bauen profitieren können.
Über den Anbieter Splietker Bau
Zum Anbieterprofil
Bewertungen
0
(0)

Bewertungen
0
0 BewertungenKeine
Splietker Bau in Zahlen
Gründungsjahr
2019
Häuser im Angebot
11
Häuser pro Jahr
20
Mitarbeiter
17
Leistungsspektrum
Finanzierungsberatung
Preisgarantie
Bauzeit Garantie
Individuelle Planung
Blower Door Test
Persönliche Beratung für Ihre individuellen Wünsche
Finden Sie jetzt Ihren Ansprechpartner
Splietker Bau
Ähnliche Häuser Für Haus Kernekamp