
Bungalow Grundriss: Beispiele & Angebote
Wie sieht ein geeigneter Bungalow Grundriss aus? Worauf ist bei der Raumaufteilung zu achten? Eine durchdachte Grundrissplanung ist das A und O in der Vorbereitung Ihres Bauprojekts. Um den Grundrisse beim Bungalow optimal aufzuteilen, gibt es einige gute Beispiele und hilfreiche Empfehlungen, die wir Ihnen auf dieser Seite vorstellen. Flexibel und funktional heißt die Devise, der Sie bei der Bungalow Grundrissplanung folgen sollten.
Bungalow Grundrisse vergleichen

Seien Sie bestens informiert bei Ihrer Bungalowwahl! Fordern Sie Informationen von Baupartnern in Ihrer Nähe an, um bei der Entscheidung gut vorbereitet zu sein.
Kataloge anfordernBeliebte Bungalow Grundriss Kategorien
Ob kleiner oder großer Bungalow, in Quader- oder Winkelform, mit Flachdach, Walmdach oder Pultdach, mit integrierter Garage oder mit Keller - Bungalow Grundrisse folgen oft gleichen Prinzipien und doch werden sie immer individuell an die Ansprüche und Wünsche der Bauherren angepasst. In unserer Haussuche können Sie mittels Filtern Ihre Anforderungen eingeben und sich passende Grundrisse von Bungalows verschiedenster Formen anzeigen lassen.
Moderne Bungalow Grundrisse
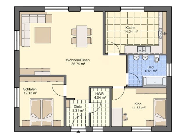
Grundriss Bungalow 60 qm bis 100 qm
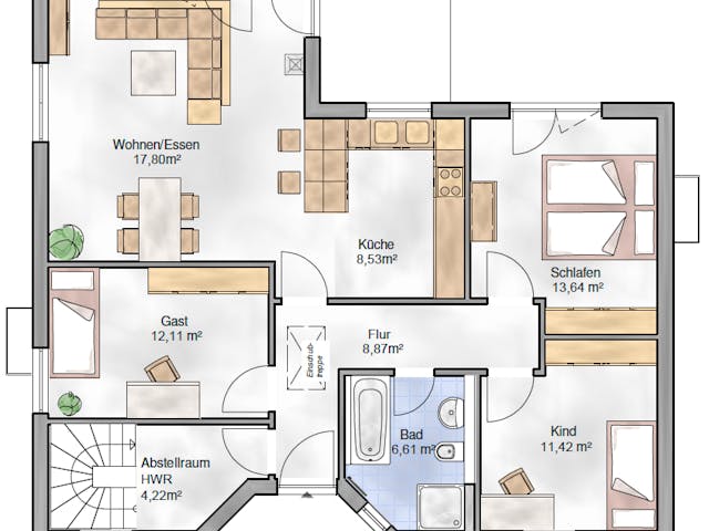
Grundriss Bungalow 180 qm bis 220 qm
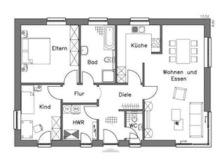
Wie plant man einen Bungalow Grundriss 100 qm?
Wie bei jedem anderen ebenerdigen Grundriss liegt der Fokus auf einer effizienten Planung, damit keine Quadratmeter verschenkt werden. Nischen, Restflächen und Schrägen sowie Räume ohne wirkliche Nutzbarkeit sollten Sie bereits in der Planungsphase ausschließen.
Ein Bungalow mit 100 qm bietet sich vorwiegend zur Unterbringung von 3 oder 4 Zimmern an. Familien mit einem oder zwei Kindern können sich somit auf 100 qm komfortabel einrichten. Das Herzstück bildet dabei immer ein offener Wohnbereich mit Esstisch und integrierter Küche. Durch die Verbindung sparen Sie Fläche, die Sie beispielsweise zur Ergänzung eines zusätzlichen WCs nutzen können. Ebenfalls platzsparend wirkt sich ein kleiner Flur aus, der fließend in den Wohnbereich übergeht. Nutzen Sie die Deckenhöhen aus und installieren Sie hohe Einbauschränke. So erhalten Sie wertvollen Stauraum und können einige weitere Quadratmeter einsparen.
Bauen Sie einen Bungalow ohne Keller, müssen Sie auch einen Hauswirtschaftsraum ebenerdig im Bungalow integrieren. 3 bis 6 Quadratmeter reichen hierbei aus. Beachten Sie, dass darin auch die Haustechnik verstaut werden sollte.
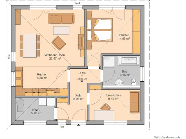
Grundriss Bungalow 100 qm & 3 Zimmer
Grundriss Bungalow 100 qm & 4 Zimmer
Wie sorgt man für ausreichend Helligkeit im Bungalow Grundriss?
Da sich alle Räume auf einer Ebene befinden, spielt die optimale Tageslichtplanung bei Bungalows eine sehr wichtige Rolle. Die Anordnung und Größe der Fenster sowie der Terrassentüren werden auf die gewünschte Lichtausbeute abgestimmt und taktisch klug geplant. Moderne Bungalow Grundrisse zeichnen sich vor allem durch ein offenes Konzept aus, das mit wenig Türen auskommt. Eine Verbindung der Küche, des Wohnzimmers und des Essbereichs lässt auch kleinere Bungalows größer und luftiger wirken.
Empfohlene Anbieter für Bungalows
Weitere Informationen zu Grundrissen















































































