
Bungalow mit Garage

Dank ihrer großen Bandbreite an Gestaltungsoptionen und praktischen Bauweise eignen sich moderne Bungalows mit Garage für zahlreiche Zielgruppen, von jungen Familien über berufstätige Paare und Alleinstehende bis hin zu älteren Personen. Doch welche Vorteile bietet ein Bungalow mit Garage? Mit welchen Kosten sollte man beispielsweise bei einem Bungalow mit Doppelgarage rechnen? Und wo positioniert man bei einem Bungalow-Haus die Garage am besten?
Gerade beim funktionalen Bungalow mit integrierter Garage gibt es verschiedene Möglichkeiten beziehungsweise Anordnungen, die unterschiedlichen Ansprüchen gerecht werden. Auf dieser Seite zeigen wir Ihnen, wie Sie eine Garage am besten in oder an Ihrem Bungalow platzieren. Wir stellen Ihnen dazu vielfältige Grundrisse als Inspiration vor und erläutern die Vorzüge dieses Haustyps. Darüber hinaus machen wir es Ihnen mithilfe unserer übersichtlichen Preislisten leicht, einen geeigneten Baupartner für Ihren Bungalow mit Garage zu finden.

Was kostet ein Bungalow mit Garage?
Damit Sie grob überschlagen können, wie viel Ihr Bungalow mit Garage kostet, wollen wir Ihnen einige Richtwerte an die Hand geben. Zunächst ist der Preis von vielen Faktoren abhängig. Maßgeblichen Einfluss haben dabei vor allem die Größe Ihres Bungalows mit Garage, die Ausbaustufe, die Ausstattung einschließlich der Energieeffizienzstufe, die Dachform wie auch die Materialwahl für die Garage.
Als ersten Anhaltspunkt können Sie die Kosten für eine durchschnittliche Garage zwischen 5.000 und 20.000 Euro ansetzen, die auf den Bungalowpreis oben drauf kommen.
Für einen Bungalow allein rechnen Sie im Schnitt mit 2.500 bis 3.000 Euro pro Quadratmeter bei schlüsselfertiger Errichtung und mittlerem Fertigungsniveau. Zusätzlich sind die Kosten für das Grundstück und die Baunebenkosten zu berücksichtigen, genau wie das Fundament und gegebenenfalls der Keller sowie die Außenanlage.
Oftmals ist es günstiger, einen Bungalow mit integrierter Garage anstatt eines freistehenden Unterstellplatzes zu errichten. Grund dafür ist, dass in ersterem Fall weniger Baumaterialien verwendet werden müssen, beispielsweise aufgrund des Wegfalls mindestens einer Außenwand. Zudem benötigt Ihr Bungalow an der Schnittstelle zur Garage keine teure Außenwanddämmung. Ein Bungalow mit Doppelgarage ist dabei naturgemäß kostspieliger als ein gleichwertiges ebenerdiges Eigenheim mit Einzelgarage, hier kann die Unterbringung Ihrer Fahrzeuge je nach Ausführung sogar bis zu 30.000 Euro kosten.

Seien Sie bestens informiert bei der Auswahl Ihres Bungalows mit Garage! Fordern Sie Informationen von Baupartnern in Ihrer Nähe an, um bei der Entscheidung gut vorbereitet zu sein.
Kataloge anfordernBungalow mit Doppelgarage: Beispielrechnung
Beispielhaft wollen wir nun mit Ihnen für einen Bungalow mit Doppelgarage das Budget durchgehen. Als Grundlage dient uns ein Bungalow mit Garage für zwei Fahrzeuge und Bodenplatte mit einer Wohnfläche von 100 qm und schlüsselfertiger Übergabe.
Wir gehen von gehobener Ausstattung und deshalb von einem Quadratmeterpreis von 3.500 Euro aus, ebenso wie von einem Baugrundstück mit 600 Quadratmetern (aktueller deutschlandweiter Durchschnittspreis pro qm Baugrund laut Destatis: 218 Euro).
| KOSTENPUNKT | PREIS |
|---|---|
| Hauspreis | 350.000 Euro |
| Doppelgarage | 12.000 Euro |
| Grundstück | 130.800 Euro |
| Bodenplatte | 25.000 Euro |
| Außenanlage | 30.000 Euro |
| Baunebenkosten | 70.000 Euro |
| Sonstige Kosten (Umzug, Richtfest etc.) | 15.000 Euro |
| = Gesamtkosten Bungalow mit Garage | 632.800 Euro |
Welche Vorteile bieten moderne Bungalows mit Garage?
Moderne Bungalows mit Garage bieten ein hohes Maß an Komfort. Der abgeschlossene Stellplatz ist meist im Bungalow integriert und Sie können ihn direkt vom Haus aus betreten. Üblicherweise ist der Zugang über einen Wirtschaftsraum oder einen kleinen Flur gewährleistet. So können Sie jederzeit bequem und bei jedem Wetter trockenen Fußes in Ihrem Bungalow die Garage aufsuchen. Das Verstauen von Einkäufen geschieht auf kurzen Wegen.
Nicht zuletzt gewährt ein Bungalow mit Garage Ihrem Fahrzeug Schutz vor Witterung und Beschädigungen, und insbesondere bei einem Bungalow mit Keller und Garage profitieren Sie von viel zusätzlichen Stauraum – ein echter Luxus bei einem ebenerdigen Zuhause.
Obendrein wirkt eine an den Bungalow angebaute und in das Gesamtensemble integrierte Garage als Wärmepuffer. Bei der Außendämmung des Wohngebäudes muss hier bloß darauf geachtet werden, das keine Wärmebrücken entstehen.
Moderne Bungalows mit Garage lassen zudem alle nur denkbaren Formen der Gestaltung zu, die wir Ihnen im nächsten Abschnitt genauer erklären.
Bungalow mit Garage: Grundriss & Gestaltungsmöglichkeiten
Unabhängig davon, welchen Stil, welche Bungalowform und welche Garagengröße Sie wählen, gibt es einige allgemeine Aspekte, die Sie bei der Planung für Ihren Bungalow-Grundriss mit Garage berücksichtigen sollten.
- Platzieren Sie die Garage wenn möglich an der Nordseite des Bungalows. Dort wo sich die Garage im oder am Haus befindet, sind keine Fenster möglich. Auf der Nordseite sind diese aus Wärmeschutzaspekten ohnehin verzichtbar, da kaum direktes Sonnenlicht hinkommt.
- Richten Sie auf der Seite des Bungalows, wo sich die Garage befindet, zur logistischen Optimierung den Hauswirtschafts- oder Technikraum ein. Schlafzimmer und Wohnräume sollten Sie vorzugsweise abseits der Garage anordnen.
- Beachten Sie, von welcher Seite die Zufahrt in die Garage möglich ist. Auch danach entscheidet sich die Ausrichtung des Bungalows. Eine kurze Verbindung zur Straße ist von Vorteil. Je näher die Garage an der Grundstückszufahrt liegt, desto geringer fallen die Kosten für die Zufahrt aus und desto mehr Gartenfläche steht Ihnen zur Verfügung.
- Statten Sie Bungalow und Garage für eine harmonische Ästhetik mit der gleichen Dachform aus, beziehungsweise vereinen Sie beides ebenerdig unter einem Dach. Dazu bieten sich sowohl Walmdächer, Satteldächer als auch Pultdächer und Flachdächer an.
- Wählen Sie beim Bungalow mit Keller und Garage die Zufahrt auf der Ebene, die für die Gegebenheiten Ihres Grundstücks am praktischsten sind; so erlaubt ein Hanggrundstück beispielsweise sowohl eine Tiefgarage als auch einen Bungalow am Hang mit Garage auf der oberen Ebene und einem zur Hangseite mit großen Fensterflächen ausgerichteten Wohnkeller.
Bungalow mit Doppelgarage
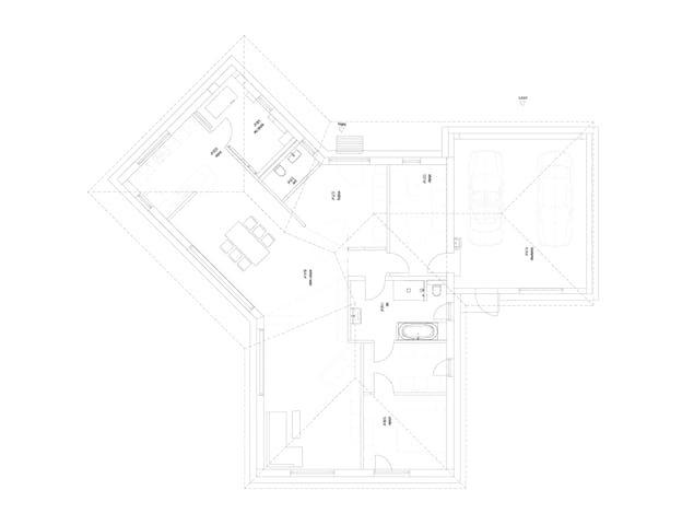
Bungalows mit Doppelgarage benötigen vor allem Eins: ein großes Baugrundstück. Die bereits weitläufige Grundfläche des Bungalows verlangt nach viel Bauland. Wenn Sie dann noch eine Doppelgarage daneben einrichten möchten, sollte Ihr Grundstück eine angemessene Größe vorweisen. So ist daher im Bild nebenan beim Bungalow mit Doppelgarage ein Grundriss auch in der ungewöhnlichen und dennoch großzügigen Winkelform realisierbar. Bedenken Sie, dass für eine Doppelgarage auch eine große Zufahrt angelegt werden sollte. Mit insgesamt ca. 80 Quadratmetern Fläche zusätzlich zu der des Bungalows sollten Sie hier rechnen.
Bungalow mit integrierter Garage
Heutzutage sind moderne Bungalows mit integrierter Garage besonders beliebt. Die Garage verschmilzt optisch mit Ihrem Bungalow, was besonders ansprechend aussieht. Der Zugang zum Haus ist bei Wind und Wetter komfortabel gewährleistet. Einkäufe oder Urlaubsgepäck können auf kürzestem Weg verstaut werden. Weiterer Pluspunkt: Sie sparen wertvollen Platz auf Ihrem Grundstück, wenn die Garage in den Grundriss integriert wird. Für größere Haushalte besonders beliebt ist ein geräumiger 5-Zimmer-Grundriss für den Bungalow mit integrierter Garage.
Eine weitere Variante ist die Integrierung der Garage unter dem Bungalow. Hier sollten Sie den größeren baulichen als auch finanziellen Aufwand beachten. Zudem ist nicht jeder Baugrund für eine Tiefgarage geeignet.
Bungalow mit Garage in Winkelform
Die ebenerdige L- oder U-Form bietet sich bestens an, um beim Bungalow die Garage am oder direkt im Haus unterzubringen. Durch die Winkelform ist es Ihnen möglich, Wohn- und Schlafbereiche ideal voneinander zu trennen. Ebenso kann die Garage besser fernab der Schlafzimmer platziert und ein praktischer Übergang zum Hauswirtschaftsraum problemlos umgesetzt werden. Der hier gezeigte Winkelbungalow-Grundriss mit Garage hat eine großflächige U-Form, die sich perfekt für die räumliche Trennung der Wohn- und Nutzbereiche eignet.
Bungalow mit Garage und Carport
Für diese Variante ist ein großes Grundstück unerlässlich. Als praktisch hat sich hierbei erwiesen, die Garage mit Abstand zum Bungalow zu bauen und die Fläche zwischen Bungalow und Garage zu überdachen. Automatisch erhalten Sie auf diese Weise besonders platzsparend einen Carport. Eine weitere Idee ist, den Carport direkt vor dem Garagentor zu errichten. Allerdings ist hierbei nachteilig, dass das Auto unter dem Carport den Weg für das Auto in der Garage versperrt.
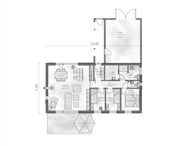
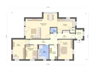
4-Zimmer-Grundriss beim Bungalow mit Garage
Ähnlich wie bei obigen Beispiel erfordert auch ein 4-Zimmer-Grundriss bei einem Bungalow mit Garage ein recht großes Baugrundstück. Denn neben Küche, Eingangsbereich, Badezimmer und optimalerweise zusätzlichem separaten WC müssen die Raumflächen für vier weitere Zimmer in die Grundfläche mit einbezogen werden. Der Bungalow-Grundriss mit Doppelgarage im Bild nebenan begegnet diesen Herausforderungen mit einfachen aber wirkungsmächtigen Gestaltungsprinzipien: Wohn- und Esszimmer bilden gemeinsam mit der Küche einen einzigen offenen und damit platzsparenden Teilbereich. Gleichzeitig verfügt die andere, ebenfalls schlicht strukturierte Hälfte des Hauses dank eines schmalen Flurs und Windfangs mit Stauraum über genügend Raum für Kinder- und Schafzimmer auf der einen Seite sowie Bad und Wellnessbereich auf der anderen Seite.
Grundriss Bungalow mit Einliegerwohnung und Garage
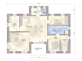
Beim Grundriss des Bungalows mit Einliegerwohnung und Garage wie auch Carport rechts im Bild hat sich die Baufamilie das Gefälle des Hanggrundstücks zunutze gemacht. So öffnet sich zur Hangseite hin nicht nur ein zusätzliches Souterrain zum Wohnen, sondern auch eine große Doppelgarage, auf deren Dach obendrauf noch eine sonnige Terrasse Platz findet. Gekonnt getrennte Zugänge zur Haupt- und Einliegerwohnung genau wie eine gemeinsame Einfahrt zum Fahrzeug-Unterstellplatz bilden hier ein weiteres Herzstück der Grundrissgestaltung. Die letzteren beiden Aspekte sollten generell immer bei einem Grundriss eines Bungalows mit Einliegerwohnung und Garage zum Tragen kommen.
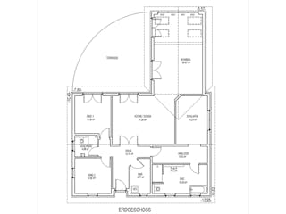
Bungalow mit Keller und Garage
Auch beim hier dargestellten Grundriss des Bungalows mit Keller und Garage hat der Hausanbieter die Raumaufteilung ideal an die Hanglage des Baugrunds angepasst. Straßenseitig wirkt das massive Eigenheim wie ein ganz gewöhnlicher Bungalow mit Garage, zur Rückseite überrascht das weitläufige Wohnkellergeschoss. Im Untergeschoss ist neben Keller und Geräteraum auch noch eine Einliegerwohnung mit eigenem Hauseingang und Terrasse untergebracht.
Allgemein gesprochen ermöglicht es ein Bungalow mit Keller und Garage, die Unterstellmöglichkeit für Ihr Fahrzeug auch als Tiefgarage zu planen, und erweitert den Wohnraum Ihres Hauses beträchtlich. Denn auch wenn Sie das Souterrain ausschließlich als Staufläche und zur Unterbringung der Haustechnik nutzen, schafft dies ein Plus an Wohnraum im Erdgeschoss Ihres Bungalows mit Garage. Gegebenenfalls genügt in diesem Fall auch eine Teilunterkellerung.
Günstige Alternative: Bungalow mit Carport
Ist Ihr Baubudget begrenzt oder mangelt es Ihnen an freier Fläche auf Ihrem Grundstück, kann ein Carport eine kostengünstige und platzsparende Option sein. Bei einem Bungalow mit Carport kann dieser beliebig um das Haus herum platziert werden. Gerne wird das Dach direkt an der Außenfassade des Bungalows montiert, da so zwei Stützen eingespart werden können. Befindet sich der Carport dann noch am Bungalow-Hauseingang, sind Sie bei jeder Wetterlage geschützt.
Beliebte Bungalows mit Garage
Empfohlene Baufirmen für Bungalows mit Garage
Grundrisse Bungalows mit Garage nach Wohnfläche
Grundriss Bungalow 100 qm mit Garage
Grundriss Bungalow 120 qm mit Garage
Grundriss Bungalow 130 qm mit Garage
Grundriss Bungalow 140 qm mit Garage
Grundriss Bungalow 150 qm mit Garage
Grundriss Bungalow 160 qm mit Garage
Grundriss Bungalow 200 qm mit Garage




























































































































































































































