
Fertighaus mit 100 qm bauen: Preise und Beispiele

Auch wenn es Sie erstaunen mag: selbst ein Fertighaus von 100 qm kann äußerst variabel gestaltet werden. Das beginnt bei der Gebäudeform, der Außenfassade und dem Dach und reicht bis zur Ausstattung. Zwar zählt ein Fertighaus bis 100 qm zu den kleineren Fertighäusern, aber sogar die hier recht überschaubare Wohnfläche können Sie durch einen cleveren Grundriss nach Belieben an Ihre Lebenssituation und persönlichen Anforderungen anpassen und planen.
Aber für wen kommt ein Fertighaus bis 100 qm in Betracht? Wie gestaltet man den Grundriss optimal? Was kostet ein Haus von 100 qm aktuell? Und welche Vorteile hat es, ein kleines Haus zu bauen und auf 100 qm Kosten zu sparen? Hier erfahren Sie es.

Zielgruppe: Singles, Paare, Familien mit 1 - 2 Kindern
Preisspanne: 220.000 - 400.000 € (nur Haus, schlüsselfertig)
Mindest-Grundstück: 300 - 400 qm
Vorteil: Günstigere Grund- & Betriebskosten
Nachteil: Eingeschränkter Platz bei Familienwachstum
Für wen kommen kleine Fertighäuser bis 100 qm in Frage?
Ob Massiv-, Fertig- oder Modulhaus mit 100 qm Raum, ein Objekt dieser Größe bietet großzügigen Platz für Singles, angemessene Wohnfläche für Paare und ist auch für eine kleine Familie ausreichend.
Mit einem etwas minimalistischeren Wohnkonzept werden außerdem diejenigen glücklich, die ein kleines Haus bauen, aber nur bis 100 qm den Preis für das Eigenheim tragen möchten oder können. Gleiches gilt, wenn Sie bereits ein Baugrundstück besitzen, das sich aufgrund von Fläche oder Schnitt mit einem kompakteren Haus von 100 qm optimal ausnutzen lässt.
Auch der gewünschte Haustyp geht mit der Eignung eines Fertighauses von 100 qm Fläche als Ihr zukünftiges Zuhause einher: Interessieren Sie sich etwa für einen Bungalow oder ein Kubushaus, so können Sie sich die besonders flexible Raumaufteilung beziehungsweise das Plus an Platz durch ein Flachdach zunutze machen. Wie immer ist eine geschickte Grundrissplanung der Schlüssel zum Erfolg, auf die wir weiter unten genauer eingehen.

Seien Sie bestens informiert bei Ihrer Fertighauswahl! Fordern Sie Informationen von Baupartnern in Ihrer Nähe an, um bei der Entscheidung gut vorbereitet zu sein.
Kataloge anfordernWie viel kostet ein Fertighaus mit 100 qm?
Sie wollen ein kleines Haus bauen – Wie hoch sind bei 100 qm die Kosten? Individuelle Ausstattung und die gewählte Ausbaustufe spielen hierbei eine entscheidende Rolle, statistisch gesehen sollten Sie jedoch mit ungefähr 2.700 Euro pro Quadratmeter rechnen. Demnach ist für ein Fertighaus mit 100 qm Wohnfläche ein Preis von durchschnittlich rund 270.000 Euro anzusetzen, nach oben ist die Grenze selbstverständlich offen. Bauen Sie mit Eigenleistung, fällt der Quadratmeterpreis geringer aus. Ausbauhäuser beginnen bei ca. 1.800 Euro pro Quadratmeter und Bausatz-Fertighäuser in dieser Größe gibt es bereits ab ca. 1.100 Euro pro Quadratmeter.
Beachten Sie hierbei, dass diese Preisangaben sich nur auf den Gebäudeteil oberhalb der Bodenplatte beziehen. Bedenken Sie für Ihre Budgetkalkulation demnach auch zusätzliche Kosten für Grundstück, Bodenplatte oder Keller, Baunebenkosten, gegebenenfalls Materialkosten für Rohbau, Innenausstattung und Technik sowie weitere relevante preisliche Aspekte. Alle Kosten erläutern wir Ihnen genau in unserem Artikel zu den Preisen von Fertighäusern.
Ein Bungalow mit 100 qm kostet in der Regel genauso viel wie ein vergleichbares Haus mit zwei Etagen. Vorteil der ebenerdigen Bauweise ist der Raumgewinn – inklusive Kostensenkung –, der durch das Wegfallen einer Treppe hervorgerufen wird, sowie die Minimierung tragender Wände, was eine besonders offene Bauweise ermöglicht. Andererseits fallen bei einem Bungalow mit 100 qm im Gegenzug höhere Kosten für das Grundstück, die Bodenplatte und das Dach an. Denn die Grundfläche entspricht hier der gesamten Wohnfläche.
Fertighaus bis 100 qm: schlüsselfertige Angebote
Was kostet ein Fertighaus schlüsselfertig mit 100 qm? Beispielrechnung
Bei unserer exemplarischen Budgetplanung gehen wir von einem durchschnittlichen 100 qm Fertighaus als schlüsselfertiges Einfamilienhaus zu 2.800 Euro pro qm mit Bodenplatte aus. Außerdem nehmen wir an, dass bei diesem Fertighaus die 100 qm auf 2 Etagen als Vollgeschosse verteilt sind. Dazu addieren wir die Kosten für ein kleines Grundstück mit 400 qm (aktueller Durchschnittskaufwert pro qm Bauland: 262 Euro laut Destatis 2024).
| KOSTENFAKTOR | PREIS |
|---|---|
| Fertighaus 100 qm: Preis | 280.000 Euro |
| Grundstück | 104.800 Euro |
| Bodenplatte | 12.500 Euro |
| Außenanlage | 28.000 Euro |
| Baunebenkosten | 56.000 Euro |
| Sonstige Kosten | 10.000 Euro |
| = Gesamtkosten | 491.300 Euro |
Fertighaus mit 100 qm schlüsselfertig oder in Eigenleistung bauen?
Dass sich in Abhängigkeit zur Ausbaustufe bei einem Massiv- oder Fertighaus bis 100 qm Kosten reduzieren lassen, haben wir ja bereits erwähnt. Je umfangreicher die von Ihnen erbrachte Eigenleistung, desto günstiger gestaltet sich auch bei einem Massiv- oder Fertighaus bis 100 qm der Preis, und desto geringer ist die Summe, die finanziert werden muss. Allerdings kommen natürlich noch vom jeweiligen Bauvertrag abhängige Kosten für Materialien und Technik hinzu, die Sie selbst übernehmen müssen. Das größte Sparpotential stellen die durch Ihren Einsatz und damit Ihre Zeit wegfallenden Lohnkosten dar.
Gerade Häuser mit einer eher kleinen Wohnfläche bis 100 qm bieten sich aufgrund der noch recht überschaubaren Projektgröße bei entsprechenden Praxiskenntnissen zum Mit- oder Selbstbau an.
Die schlüsselfertige Ausbaustufe repräsentiert die bequemste aber auch meist kostenintensivste Alternative für den Bau eines Hauses von 100 qm Größe. Hier nehmen Sie jedoch auch je nach vertraglicher Vereinbarung ein fast vollendetes oder sogar bezugsfertiges Haus vom Fertighausanbieter entgegen.
Was sind Vorteile und Nachteile eines Fertighauses mit 100 qm?
Vorteile 100 qm Haus
Grundstück: Mit einem Haus bis 100 qm können Sie den Grundstückspreis beträchtlich drücken, da eine entsprechend geringere Fläche benötigt wird. Dazu fallen eine niedrigere Grundsteuer und Grunderwerbsteuer an.
Hauspreis: Beim Bau von Wohnraum fällt jeder zusätzliche Quadratmeter ins Gewicht. Reduzieren Sie also die Wohnfläche Ihres Fertighauses auf 100 qm, schont das Ihr Budget im Vergleich zu einem nur wenige Quadratmeter größeren Neubau spürbar.
Wohnnebenkosten: Sind Sie erst einmal in Ihr neues Zuhause eingezogen, können Sie bei einem 100 qm Haus von wesentlich niedrigere Heizkosten ausgehen als bei einem großzügigeren Objekt.
Nachteile 100 qm Haus
Platz & Flexibilität: Bei sich ändernden Lebensumständen, beispielsweise durch Nachwuchs oder neue Hobbys, ist ein Haus dieser Größe limitiert.
Wiederverkaufswert: Allgemein bauen die Deutschen lieber größere Häuser von mindestens 120 Quadratmetern. Ein 100 Quadratmeter Haus könnte aufgrund der limitierten Zielgruppe einen geringeren Wiederverkaufswert haben.
Planungsaufwand: Die geringe Quadratmeterzahl muss besonders sorgfältig aufgeteilt und eingerichtet werden. Gerade Stauraumlösungen sollten von Beginn an bedacht werden.
Grundrissplanung beim Fertighaus mit 100 qm
Nicht nur für kleine Fertighäuser bis 100 qm Grundfläche ist ein cleverer Grundriss das A und O. Einerseits sollten Sie den Grundriss an Ihren aktuellen Bedürfnissen ausrichten, andererseits aber auch etwaige spätere Veränderungen im Hinterkopf behalten. So bietet es sich bei einer Familie mit Kindern an, mehrere separate Zimmer zu ermöglichen und dabei am besten Rigipswände zu verwenden, die sich relativ leicht wieder versetzen lassen. Dagegen ist bei Singles oder Paaren ein offenes Raumkonzept vorzuziehen oder ein zusätzliches Zimmer wird bewusst eingeplant, ob als Arbeitszimmer, als späteres Kinderzimmer oder als Gästezimmer.
Immer im Blick behalten sollten Sie die Leitungsführung, egal ob für Elektrik, Heizung oder Wasser. Denn wenn beispielsweise Küche, WC und Badezimmer sich in räumlicher Nähe befinden, ist das Verlegen von entsprechenden Leitungen mit weniger Aufwand verbunden und damit kostengünstiger.
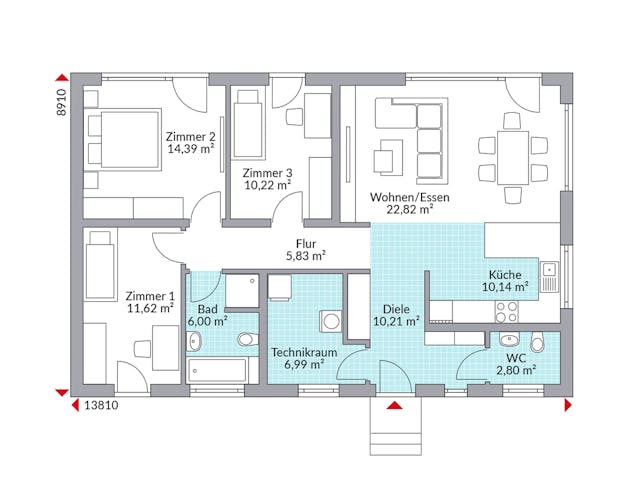
Beispielhafte Raumgliederung im Haus bis 100 qm
Als Beispielrechnung für eine Familie mit zwei Kindern können Sie bei 100 qm Wohnfläche von folgenden Richtwerten für Raumgrößen ausgehen:
- Wohn-Ess-Kochbereich: 42 m²
- Modernes Bad: 9 m²
- Separates WC: 3 m²
- Flur: 5 m²
- Elternschlafzimmer: 16 m²
- Zwei Kinderzimmer: je 11 m²
- Hauswirtschaftsraum: 3 m²
Unser Tipp: Suchen Sie nach Anregungen für Ihre Grundrissplanung mit 100 m² Wohnfläche bei erprobten Modellen unserer Haushersteller.
Grundriss-Ideen für Fertighäuser mit 100 qm
Checkliste für mehr Raum bei einem Haus mit 100 qm
- Verzichten Sie größtmöglich auf Flure und Treppen und präferieren Sie eine funktionale und offene Gestaltung ohne Nischen wie bei einer Wohnküche, sowie deckenhohe Einbauschränke statt einer abgeschlossenen Kammer.
- Ein Flachdach ermöglicht die volle Ausnutzung der Deckenhöhe, während die Schrägen bei einem Satteldach den nutzbaren Wohnraum einschränken.
- Bodentiefe Fenster schlagen zwar mit einem höheren Preis zu Buche, lassen Ihr Zuhause aber weitläufiger wirken.
- Nicht zuletzt empfiehlt es sich, den Hauswirtschafts- und Technikraum in den Keller zu verlegen, wenn dieser vorhanden ist.
Fertighaus 100 qm: Hausbeispiele und Anbieter vergleichen
Günstiges Fertighaus mit 100 qm
1,5 Etagen, 4 Zimmer, klassisches Satteldach
ab 231.100 € schlüsselfertig (~2.200 €/qm)
Bungalow Fertighaus mit 100 qm
1 Etage, 3 Zimmer, versetztes Pultdach
ab 265.900 Euro schlüsselfertig (~2.600 €/qm)
Mittelpreisiges Fertighaus mit 100 qm
2 Etagen, 3 Zimmer, modernes Satteldach
ab 313.086 € schlüsselfertig (~3.100 €/qm)
Modernes Bungalow Fertighaus mit 100 qm
1 Etage, 3 Zimmer, Walmdach
ab 313.737 € schlüsselfertig (~3.100 €/qm)
Modernes Fertighaus mit 100 qm
1,5 Etagen, 4 Zimmer, Flachdach und Dachterrrasse
ab 353.179 € schlüsselfertig (~3.500 €/qm)
Gehobenes Fertighaus mit 100 qm für 4 Personen
1,5 Etage + Keller, 4 Zimmer, Satteldach
ab 390.969 € schlüsselfertig (~3.800 €/qm)
Einfamilienhaus E 15-150.2 - Schmales Hauskonzept von SchwörerHaus
Häufige Fragen zu Häusern mit 100 qm




















































