
3-stöckiges Haus bauen

Das Projekt Hausbau repräsentiert eine der oft umfangreichsten Investitionen im Leben; zudem ist Bauland zuweilen nur eingeschränkt verfügbar und je nach Region und Lage schmälern teilweise hohe Grundstückspreise das Baubudget. Als praktische Lösung zur Reduzierung der Grundstückskosten oder zur Ausnutzung einer schmaleren Baulücke bietet sich bei Zulässigkeit laut entsprechendem Bebauungsplan ein 3-stöckiges Haus an.
Denn ein 3-Etagen-Haus zeichnet sich durch eine vergleichsweise geringe Grundfläche aus und kommt aufgrund des Baus in die Höhe dennoch auf eine beachtliche Zahl von Quadratmetern. In einem entsprechenden Einfamilien-, Zweifamilien- oder Doppelhaus finden damit leicht mehrere Kinder oder sogar zwei Haushalte Platz. Auch im Hinblick auf die Gestaltung eines dreigeschossigen Hauses bleiben keine Wünsche offen.
Was man genau unter einem Haus mit 3 Etagen versteht, welche Baukosten Sie ansetzen sollten, wie Sie am besten den Grundriss gestalten und weitere Informationen erhalten Sie auf dieser Seite.

Haus mit 3 Etagen: Empfohlene Angebote

Kostenlos Kataloge & Informationen anfordern!
Seien Sie bestens informiert bei Ihrer Traumhauswahl! Fordern Sie Informationen von Baupartnern in Ihrer Nähe an, um bei der Entscheidung gut vorbereitet zu sein.
Kataloge anfordernWas ist ein dreigeschossiges Haus?
Bei einem dreistöckigen Haus verteilt sich die Wohnfläche, wie der Name schon sagt, auf drei Ebenen. Anders als bei dem üblichen 1,5-Geschosser benötigen Sie bei gleicher Wohnfläche also wesentlich weniger Grundfläche und kommen somit auch mit einem kleineren Baugrundstück aus.
Wie die Grundrissgestaltung hierbei genau aussieht, bleibt Ihnen überlassen. Deshalb lässt sich ein Haus mit drei Geschossen auch für verschiedenste Wohnkonstellationen planen, ob als klassisches Einfamilienhaus, mit praktischer Einliegerwohnung, als Zweifamilienhaus mit übereinander liegenden Wohneinheiten oder Doppelhaus, selbstverständlich auch als Reihenhaus oder Mehrfamilienhaus. Auch wo exakt die 3 Etagen beim Haus liegen, ist grundsätzlich frei entscheidbar: Beim Bauen am Hang bietet sich etwa dank der Möglichkeit für zum Teil bodentiefe Fenster im Untergeschoss ein Wohnkeller als eines der Geschosse an.
Prinzipiell sind bei einem dreigeschossigen Haus drei Vollgeschosse zu erwarten – typischerweise bei einem Flach- oder Pultdach –, da man ansonsten präziser von einem 2,5-Geschosser – häufig mit Satteldach – sprechen müsste. In der Praxis werden aber meist alle Häuser mit 3 Etagen als dreigeschossig bezeichnet, egal wie groß das Dachgeschoss im Verhältnis zu den anderen Stockwerken ausfällt.
3 Etagen beim Haus: Bebauungsplan beachten
Bevor Sie sich auf ein 3-stöckiges Haus festlegen, sollten Sie unbedingt den zum jeweiligen Grundstück gehörigen Bebauungsplan studieren. Dieser gibt vor, in welcher Art und Weise das betreffende Areal bebaut werden darf. Nicht immer ist die Realisierung eines dreigeschossigen Hauses überhaupt möglich – eine Bauvoranfrage bietet im Zweifel Sicherheit. Eine gangbare Alternative ist in diesen Fällen die Errichtung eines klassischen Hauses mit ausgebautem Dach und Wohnkeller. Trotz der kleinen Grundfläche bietet auch diese Variante ausreichend Platz für kinderreiche Familien und fügt sich mit mehreren Ebenen hervorragend auf beschränktem Baugrund ein.
Wie hoch ist ein Haus mit 3 Stockwerken?
Im Schnitt beträgt die Höhe eines Vollgeschosses ca. 3 m. Welche Höhe beim 3-stöckigen Haus letztendlich legitim ist, legt wiederum der Bebauungsplan fest, sowie die Bauordnungen der einzelnen Bundesländer.
Zudem kann ein dreistöckiges Haus mit drei Vollgeschossen noch über ein zusätzliches Kellergeschoss verfügen, das etwa 1,40 m aus dem Boden herausragt. Die tatsächliche Höhe hängt dann außerdem von der Dachform ab. Theoretisch könnte auch bei einem solchen dreigeschossigen Haus noch ein gesonderter, ausgebauter Dachboden vorhanden sein. Je nach Kniestockhöhe und Dachneigung sollten Sie also mit 10 bis 14 Metern Firsthöhe beim dreistöckigen Haus rechnen.
Was kostet ein 3-stöckiges Haus?
Am meisten beeinflussen den Preis eines 3-stöckigen Hauses dessen Ausbaustufe, Größe, Ausführungsqualität und Energiestandard. Prinzipiell unterscheidet man in Bezug auf die Ausbaustufe zwischen schlüsselfertigen dreigeschossigen Häusern, Ausbau- und Bausatzhäusern und somit dem erbrachten Maß an Eigenleistung. Folglich sind bei schlüsselfertigen dreistöckigen Häusern die Preise auf den ersten Blick höher. Im Umkehrschluss bedeutet dies aber, dass Sie die Arbeitsleistungen für den Innenausbau bei Ausbauhaus und gegebenenfalls sogar den Rohbau beim Bausatzhaus selbst erbringen oder bei einer Drittfirma beauftragen müssen – inklusive des zeitlichen und finanziellen Aufwands sowie der Kosten für Zusatzmaterialien.
Bei mittlerer Ausführungsqualität kostet ein Massiv- oder Fertighaus mit 3 Etagen schlüsselfertig zwischen 2.500 und 3.000 Euro pro Quadratmeter, weitere Ausgaben für Bodenplatte oder Keller, Grundstück, 20 % der Bausumme an Baunebenkosten und 10 % für die Außenanlage müssen Sie darüber hinaus berücksichtigen.

Haus mit 3 Etagen: Relative Baukosten
Insgesamt sparen Sie beim Bau in die Höhe aber durchaus bei einigen Posten: Nicht nur kommen Sie mit weniger Grundstücksfläche aus, auch die Grundfläche ist kleiner, weshalb Bodenplatte und, falls vorhanden, Keller ebenfalls relativ gesehen günstiger ausfallen. Das gleiche gilt für das Dach. Ausgeglichen wird dies allerdings durch die Baukosten für ein zusätzliches Geschoss. Alles in allem entsprechen somit die gesamten Baukosten denen einer vergleichbaren Immobilie mit weniger Geschossen.
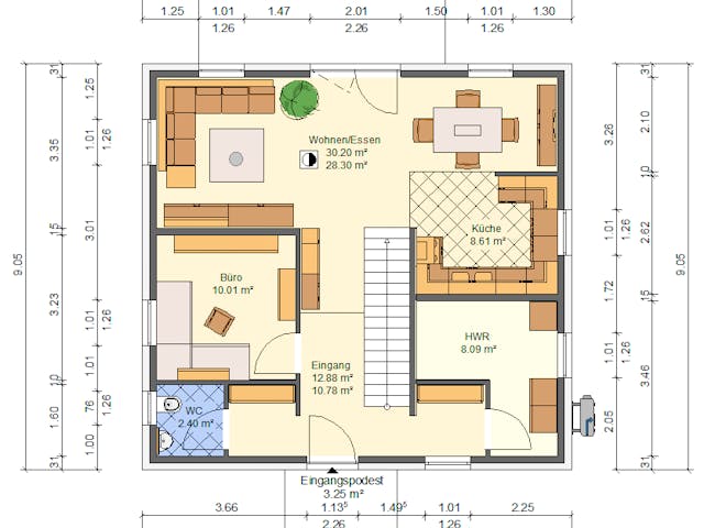
Dreistöckiges Haus: Grundriss & Raumaufteilung
Die kleine Grundfläche macht es möglich: Mit einem dreigeschossigen Haus kann ein begrenztes Grundstück optimal genutzt werden. Das in die Höhe gestreckte 3-stöckige Haus bietet genügend Platz für die auch in breiteren Gebäuden bewährte Raumaufteilung, die allerdings vertikal versetzt wird.
Einfamilienhaus mit 3 Etagen: Grundriss
So kann beispielsweise in einem Einfamilienhaus mit drei Etagen das Erdgeschoss als geräumiger Koch-, Ess- und Wohnbereich genutzt werden – auch ein kleines WC, der Technik- & Hauswirtschaftsraum sollten nicht vergessen werden –, während in den oberen Ebenen ein getrennter Eltern- und Kindertrakt mit jeweils einem Badezimmer untergebracht wird. Diese Aufteilung hat den entscheidenden Vorteil, dass jedes Familienmitglied seinen eigenen Rückzugsort hat, an dem es Ruhe findet. Oftmals findet sich sogar noch Raum für die Einrichtung eines separaten Arbeits- oder Gästezimmers in den geräumigen Eigenheimen.
Gerade beim Bau in die Höhe sollten aber unbedingt die Grundprinzipien der möglichst offenen und einfachen Raumplanung beachtet, sowie die unverzichtbaren Treppen und Flure auf ein Minimum reduziert werden, um den Wohnraum so effektiv wie möglich auszunutzen.
Einfamilienhaus mit 3 Etagen: Grundrisse
Haus 3-stöckig: Weitere Grundriss-Optionen
Natürlich lässt sich die Gestaltung des Grundrisses bei einem Haus mit 3 Etagen ganz an Ihre persönlichen Gegebenheiten sowie andere Umstände anpassen. Bei einem Doppelhaus mit 3 Etagen gilt es beispielsweise zu bedenken, dass an der mittigen Trennwand keine Fensterflächen zur Verfügung stehen und aus Gründen des Schallschutzes Schlafzimmer eher an den Außenseiten platziert werden sollten. Beim Zweifamilienhaus erweist sich die Planung als etwas komplexer, da hier das mittlere Geschoss aufgeteilt wird. Nicht zuletzt eröffnet ein dreigeschossiges Haus mit Einliegerwohnung verschiedenste Optionen beim Grundriss: Soll die kleinere Wohneinheit ebenerdig, im Souterrain, oder über eine seitliche Außentreppe erreichbar in einem der oberen Stockwerke liegen?
Unser Tipp: Lassen Sie sich von den bewährten Grundrissen und erprobten Gestaltungsoptionen unserer Baupartner inspirieren und holen Sie das Maximum an Wohnraum für sich heraus!
Doppelhaus mit 3 Etagen: Grundrisse
3-stöckiges Haus mit Einliegerwohnung: Grundrisse
Massiv- oder Fertighaus mit 3 Etagen?
Ob die Massiv- oder Fertigbauweise für Ihr dreistöckiges Haus in Frage kommt, ist letztendlich eine Frage des persönlichen Geschmacks und der individuellen Ansprüche. Es lässt sich jedoch nicht von der Hand weisen, dass es viele Vorteile hat, ein modernes, 3-stöckiges Fertighaus zu bauen. So profitieren angehende Baufamilien vor allem von
- einer schnellen Produktionszeit (sofern keine Wartezeiten aufgrund hoher Nachfrage bestehen)
- einem besonders schnell realisierbaren Rohbau
- einer hervorragenden Wärmedämmung dank der natürlichen Eigenschaften des Baustoffes Holz
- einem hohen Standard in Bezug auf die Qualität der Bauausführung
- einem hohen Individualisierungsgrad gegen Aufpreis (gilt auch beim Massivhaus mit 3 Etagen)
Gerade die kurze Rohbauphase beim Fertighaus mit 3 Etagen trägt wesentlich zur Reduzierung der hohen Mehrfachbelastung durch Miet- und Zinszahlungen bei. Beim Massivhaus mit 3 Etagen wiederum profitieren Sie von einer absoluten Gestaltungsfreiheit, da hier jede Wand tragend ist und somit relativ leicht versetzt werden kann. Preislich gibt es – entgegen der weitverbreiteten Annahme – keine Unterschiede.
3-stöckiges Fertighaus: Kein Haus von der Stange
Beim modernen Fertighausbau lassen sich die aus vorgefertigten Bauelementen zusammengefügten Eigenheime vollkommen frei und absolut individuell nach den Wünschen und Bedürfnissen der einzelnen Baufamilien planen. Dies gilt nicht nur in Bezug auf Grundriss und Architektur Ihres zukünftigen Hauses mit 3 Etagen, sondern auch für dessen Ausstattung. In den anbietereigenen Bemusterungszentren können Sie aus einem breiten Angebot nicht nur die passende Technik, sondern auch eine maßgeschneiderte Lösung für Böden, Wände, Bad und vieles mehr wählen. Hierbei gilt es bloß zu beachten: Je weitreichender Ihre Individualisierungswünsche, desto mehr weicht der Preis von der Standardversion ab. Das gleiche gilt selbstverständlich auch für alle Massivhäuser.
Fertighaus mit 3 Etagen: Alle Häuser
Massivhaus mit 3 Etagen: Unsere Anegbote
Dreigeschossiges Haus: Vor- und Nachteile
Vorteile dreistöckiges Haus
Vielfältige Nutzungsmöglichkeiten
Viel Wohnfläche
Bauen mehrerer Etagen auf kleinen Grundstücken möglich
Mehrere Etagen bieten viel Planungsfreiheit im Grundriss
Viele Möglichkeiten in Sachen Stil und Ausstattung
Verhältnismäßig geringere Baukosten als bei Haustypen mit größerer Bodenplatte und Dachfläche (z.B. Bungalows)
Nachteile dreistöckiges Haus
Bau von Mehrgeschossern nicht überall möglich (Bebauungsplan)
Barrierefreies Wohnen ohne Aufzug nicht möglich
Tragende Wände müssen beim Grundriss berücksichtigt werden
Wählen Sie jetzt ein passendes 3-stöckiges Haus aus
Empfohlene Baufirmen, die Ihr Haus 3-stöckig bauen

Haben Sie bereits eine Finanzierung für Ihr Traumhaus?
Die passende Finanzierung sollte nicht nur die besten Konditionen, sondern auch Ihre Lebenssituation berücksichtigen. Lassen Sie sich persönlich von einem Experten beraten.
Gratis Angebot einholen

















































































































































