
Stadtvilla mit Garage bauen
Hochherrschaftliche Gebäude vergangener Zeiten wie die prunkvollen Gründerzeitvillen mitsamt Kutscherhaus oder die weitläufige Villa Urbana, das vornehme Landgut der Patrizier im alten Rom einschließlich seiner Stallungen, sind die historischen Vorgänger der Stadtvilla mit Garage. Die moderne Stadtvilla mit Garage hat mit ihren architektonischen Vorfahren nur noch wenig gemeinsam, gilt aber noch immer als repräsentativ und großzügig – oftmals auch in Verbindung mit gehobener Qualität.
Doch was genau versteht man unter einer Stadtvilla mit Garage, mit welchen Baukosten ist zu rechnen, welche Vorteile hat dieser Haustyp und was müssen Sie beim Bau und der Grundrissplanung eines solchen Eigenheims beachten? Im Folgenden erfahren Sie alles Wissenswerte zur Stadtvilla mit Doppelgarage oder einfachem Unterstellplatz.
Massiv- oder Fertighaus-Stadtvilla mit Garage: Definition
Ähnlich wie bei einem klassischen Einfamilienhaus handelt es sich bei einer Stadtvilla mit Doppelgarage oder Carport um ein freistehendes Haus; bezeichnend sind allerdings die zwei oder mehr Vollgeschosse dank eines Zelt-, Walm- oder Mansarddaches mit geringer Neigung sowie der oft quadratische oder rechteckige Grundriss.
Bei einer Stadtvilla wird die Garage meist integriert oder direkt angebaut, beliebt – aber kein Muss – sind hochwertige Materialien und eine erstklassige Ausstattung für besonderen Wohnkomfort. Charakteristisch für eine Stadtvilla mit Garage sind außerdem hohe, lichtdurchflutete Räume, bedingt durch die großen Fensterfronten, eine bevorzugte Lage und ein gepflegter Garten.
Was die Fassadengestaltung angeht, zeigen sich Stadtvillen mit Garage höchst variabel, was Ihnen viel Spielraum für eigene kreative Ideen lässt – Putz, Backstein, Holz oder Mischformen schaffen eine schlichte und ansprechende Ästhetik.
Unser Tipp: unbedingt das Design der Unterstellplätze für Ihre Fahrzeuge ohne Stilbrüche mit in das Gesamtbild einbeziehen. Ausgesprochen nobel präsentiert sich beispielsweise eine Stadtvilla mit Garage und Klinker im Stil eines nordischen Landhauses.
Stadtvilla oder Villa mit Garage: Unterscheidungen
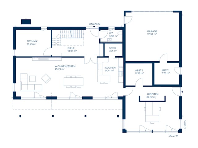
Prinzipiell ist eine Stadtvilla mit Garage zwar ein im Ursprung verwandter, heute aber gänzlich anderer Gebäudetyp als eine Villa mit Garage. Unter einer Stadtvilla mit Garage versteht man nämlich, wie im vorigen Abschnitt angesprochen, ein kompakt aufgebautes, auf einer schlichten Quader- oder Würfelform basierendes Einfamilienhaus, das aufgrund seines flachen Walm- oder Zeltdaches, seltener Mansard- oder Flachdachs, zwei oder auch mehr ganze Stockwerke ohne Dachschrägen bei relativ kleiner Grundfläche aufweist. Bei der Stadtvilla mit Doppelgarage links im Bild ist deutlich der einfache, rechteckige Aufbau mit zwei vollwertigen Etagen und flachem Walmdach zu sehen.
Dagegen fällt bei einer Villa mit Garage unmittelbar die Vielschichtigkeit des Grundrisses und die außergewöhnliche Gestaltung ins Auge. Interessante, zum Teil asymmetrische Baustrukturen, zuweilen hervorgehoben von gekonnt miteinander verbundenen, verschiedenen Dachformen und Fassadenarten, sind für diesen Haustyp maßgebend. Des Weiteren verfügt ein solches Objekt über luxuriöse Details wie eine Designerküche, einen Pool oder eine Dachterrasse – bei einer Villa ist die Garage oder Doppelgarage also meist ohnehin vorgesehen. Generell zeigt sich eine exklusive Ausführung, was gleichzeitig meist eine bemerkenswerte Wohnfläche von weit über 150 qm mit sich bringt.
Villa mit Garage: Alle Angebote
Was kostet eine Stadtvilla mit Garage?
Bei einer Stadtvilla mit Garage ist ein Preis ab Oberkante Bodenplatte von im Schnitt 2.700 Euro pro Quadratmeter üblich, je nach Ausführung, Ausbaustufe und Qualität ergeben sich hier aber sehr unterschiedliche Werte.
Planen Sie eine Stadtvilla mit Doppelgarage, so sollten Sie zusätzlich in Abhängigkeit von Ausstattung und Bauweise des Unterstellplatzes mit etwa 4.500 bis weit über 20.000 Euro rechnen.
Stadtvilla mit Doppelgarage: Platz-Anforderungen
In der Regel ist das Grundstück für eine Stadtvilla mit Doppelgarage aufgrund des meist anvisierten, parkähnlichen Gartens deutlich größer angelegt als bei einem vergleichbaren Einfamilienhaus oder gar Reihen- oder Doppelhaus. Denn der Charme und Charakter eines solchen Eigenheims geht traditionell mit der exquisiten Privatsphäre eines schmucken und weitläufigen Gartens einher.
Allerdings lässt sich eine Stadtvilla mit Garage – ähnlich wie ein Stadthaus – ebenso gut auf einem inner- bis vorstädtischen, definitionsgemäß kleineren Grundstück umsetzen. Der Vorteil gegenüber einem regulären Satteldachhaus mit 1,5 Geschossen aber insgesamt übereinstimmender Wohnfläche sind die gleich großen Etagen und die damit kleinere Grundfläche einer Villa mit Garage.
Wird demnach eine Wohnfläche von 150 Quadratmetern angesetzt, ergibt sich ein Mindestbedarf für die Stadtvilla mit Doppelgarage von etwa 155 Quadratmetern Grundstück ohne Garten. Zum Vergleich: ein ebenso großes Einfamilienhaus mit zwei Garagen mit Parterre und ausgebautem Dachgeschoss bedarf einer Grundfläche von 180 qm.
In beiden Fällen sollten Sie mindestens das Doppelte der Grundfläche für den Garten mit einkalkulieren, folglich benötigen Sie für eine 150 qm große Stadtvilla mit Doppelgarage insgesamt Baugrund von wenigstens 465 Quadratmetern, je kleiner Ihr neues Zuhause, desto weniger groß muss das Baugrundstück sein.
Vorteile einer Stadtvilla mit Garage oder Carport
Oftmals zentrumsnah oder in verkehrstechnisch gut angebundenen Vororten gelegen, was eine ausgezeichnete Infrastruktur mit sich bringt, fügt sich eine Stadtvilla mit Garage ebenfalls harmonisch in ländlichere Wohngegenden ein – mit dem Plus eines ausgedehnten Gartengrundstücks. Gerade in letzterem Fall ist ein eigenes Auto oft unverzichtbar, und ein geschützter Unterstellplatz wünschenswert.
Da ein solches Eigenheim dank der zwei oder mehr vollwertigen Etagen komfortablen Wohnraum für Paare und Familien bietet, empfiehlt sich der Bau einer Stadtvilla mit Doppelgarage oder einem entsprechenden Carport. Von Anfang an mit eingeplant, lässt sich dies besonders günstig umsetzen. Denn Garagen oder Carports können zwar auch nachträglich errichtet werden, aber das ist mit Mehraufwand und Mehrkosten verbunden.
Ein weiterer Bonus bei einer Stadtvilla mit Garage ist das elegante Erscheinungsbild, das in Stil und Ausführung ganz an Ihren persönlichen Geschmack angepasst werden kann. Ob Ihnen die behagliche Atmosphäre des Landhausstils oder die geradlinige Optik eines modernen Zuhauses, mediterranes Urlaubsflair oder romantisch-verspielte Details wie Rundbogenfenster und Arkaden gefallen: Von Beginn an mit berücksichtigt, ist bei einer Stadtvilla die Garage eine praktische und stilvolle Erweiterung, ob im Gebäude integriert, separat stehend oder durch eine Veranda oder einen Wintergarten mit dem Haupthaus verbunden.
Beliebte Villen & Stadtvillen mit Garage
Stadtvilla mit Garage: Grundriss & Planungs-Tipps
Bei einer Stadtvilla mit Garage den Grundriss zu planen, setzt neben der Einhaltung des örtlichen Bebauungsplans wichtige Gestaltungsgrundsätze wie offenes Raumdesign, kurze Wege und Minimalismus bei Diele, Eingangshalle und Treppe voraus, wenn Sie Ihren Wohnraum optimal nutzen wollen. Übrigens: Auch nachträglich angefügte Garagen oder Carports erfordern eine Baugenehmigung!
Damit Sie Ihr Fahrzeug bei jedem Wetter trockenen Fußes erreichen und Einkäufe schnell und unkompliziert transportiert werden können, liegt es zudem nahe, den Unterstellplatz unmittelbar in das Hauptgebäude zu integrieren oder anzubauen. Zweckmäßig enthält der Grundriss einer Stadtvilla mit Garage dementsprechend einen direkten Zugang vom Hauswirtschaftsraum oder einen entsprechenden kleinen Gang zum Unterstellplatz, der sich ebenfalls nahe der Küche und des Vorratsraums befinden sollte. Schlafzimmer und Wellnessbereich wiederum raten wir, nicht in unmittelbarer Nachbarschaft zur Garage zu platzieren, um störende Geräusche auszuschließen.
Darüber hinaus ist bei einer Stadtvilla mit Garage dem Grundriss eigen, dass auch die obere Etage ein Vollgeschoss repräsentiert und damit keine Dachschrägen bei der Zimmerplanung im Hinterkopf behalten werden müssen. Dies eröffnet Ihnen verschiedene Möglichkeiten für zusätzliche oder geräumigere Räume wie einen großzügigen Arbeitsbereich, ein edles Boudoir mit Ankleide oder auch einen Fitnessraum.
Stadtvilla mit Garage: Grundrisse
Anbieter für eine Stadtvilla mit Garage
























































































































