
Pulthaus 159 von Suckfüll Energiesparhaus
Ab 422.156 €
Bewertungen von Suckfüll Energiesparhaus
3,5
(57)
Wohnfläche
156 m²
Zimmer
8
Ausbaustufe
Schlüsselfertig
Bauweise
Fertighaus
Etagen
2
Energiestandard
Effizienzhaus 40
Dachform
Pultdach
Hausart
Einfamilienhaus
Beschreibung
Perfekt durchdacht – dieser Entwurf bietet Struktur und Geradlinigkeit.
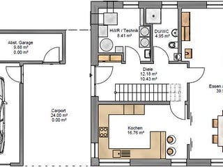
Im Erdgeschoss findet man eine große abgeschlossene Küche vor, welche durch Öffnen der Schiebetür mit dem Wohn- und Essbereich eine Einheit bilden kann. Die Diele wirkt aufgeräumt durch eine Garderoben-Nische, welche ideal für einen Einbauschrank genutzt werden kann.
Auch das Dachgeschoss hat Einiges zu bieten. Hier sind speziell die Schlafemporen der großen, lichtdurchfluteten Kinderzimmer zu nennen.
Preise verstehen sich inkl. Bodenplatte und 19 % MwSt. Mehrpreis für dargestellte Garage mit Bodenplatte und Carport = 52.250 €
Merkmale
- Garage
- Carport
Sie haben Interesse?
Laden Sie sich jetzt Ihr kostenloses Exposé zu diesem Haus herunter:
Grundrissfür Pulthaus 159
Außenmaße
Länge: 9,7 m
Breite: 10,5 m
Grundrisse
Der Grundriss entspricht nicht Ihren Vorstellungen?
Passen Sie den Grundriss an Ihre persönlichen Bedürfnisse an und besprechen Sie Ihren individuellen Plan mit einem Bauberater des Anbieters.
Merkmale
Energiestandard und Förderung
Energiestandard
Effizienzhaus 40
Effizienzhaus 40 Plus
Effizienzhaus 55
Dach
Dachform
Pultdach
Dachneigung
16°
Preisdetails für Pulthaus 159
Schlüsselfertig ab
422.156 €
Ausbauhaus ab305.213 €
ab 1.270,87 €
Dieser Preis ist ein Beispiel für den Anfang, ein Berater kann Ihnen ein detailliertes Angebot erstellen, das Ihren Bedürfnissen entspricht.
Möchten Sie bei Ihrem Projekt Geld sparen?
Durch einen Angebotsvergleich mit Fertighaus.de können Sie bis zu 20 % Ihrer Baukosten sparen.
Pulthaus 159 - Hilfreiche Fragen & Antworten
Für die schlüsselfertige Ausführung liegt der Preis pro Quadratmeter bei rund 2.700 Euro, womit sich das Haus im mittelpreisigen Segment bewegt. Im Preis enthalten sind bereits die Bodenplatte sowie die Mehrwertsteuer. Da Suckfüll individuelle Planungen anbietet, können Sie über uns ein detailliertes Angebot anfordern, um zu erfahren, wie Ihre Wünsche den Endpreis beeinflussen.
Das Haus besticht durch sein modernes Pultdach und eine klare, geradlinige Struktur. Ein besonderes Highlight im Obergeschoss sind die lichtdurchfluteten Kinderzimmer, die über integrierte Schlafemporen verfügen. Diese kreative Raumnutzung schafft zusätzlichen Platz zum Spielen. Im Erdgeschoss bietet die große Küche Flexibilität, da sie durch eine Schiebetür nahtlos mit dem Wohn- und Essbereich verbunden werden kann.
Für dieses Haus mit einer Grundfläche von etwa 102 Quadratmetern empfehlen wir ein Grundstück von mindestens 450 Quadratmetern. Diese Kalkulation beinhaltet circa 50 Quadratmeter für Stellplätze und eine Gartenfläche von rund 300 Quadratmetern. So bleibt genügend Freiraum für Ihren Außenbereich, während alle erforderlichen Abstandsflächen zum Nachbargrundstück sowie gesetzliche Vorgaben für die Bebauung zuverlässig eingehalten werden.
Suckfüll setzt auf gesundes Wohnen durch einen dampfdiffusionsoffenen, dreischaligen Wandaufbau. Es werden getrocknete Hölzer ohne chemische Schutzmittel und ökologische Dämmstoffe verwendet. Dies sorgt für ein gesundes Raumklima und exzellente Dämmwerte. Jedes Haus erfüllt serienmäßig den Effizienzhaus 40 Standard, der mit einer Photovoltaikanlage für noch mehr Nachhaltigkeit sogar auf den Standard 40 Plus aufgewertet werden kann.
Über den Anbieter Suckfüll Energiesparhaus
Zum Anbieterprofil
Bewertungen
3,5
(57)

Bewertungen
3,5
57 BewertungenAkzeptabel
Suckfüll Energiesparhaus in Zahlen
Gründungsjahr
1958
Häuser im Angebot
47
Bewertungen von Suckfüll Energiesparhaus
Herr Krämer hat einen kompetenten Eindruck ge...
Herr Krämer hat einen kompetenten Eindruck gemacht. Das Gespräch war vertrauensvoll und konstruktiv. Das Angebot ist absolut interessant. Suckfüll ist trotz kleinerer Firma eine Bereicherung.
15 Juni 2025Ulrike O.
Suckfull hat ein Online -Video gesendet und a...
Suckfull hat ein Online -Video gesendet und auch Schwabenhaus.
20 Jan. 2024Heike W.
nichts bestimmtes
nichts bestimmtes
02 Aug. 2023Paul B.
Leistungsspektrum
Preisgarantie
Bauzeit Garantie
Individuelle Planung
Blower Door Test
Persönliche Beratung für Ihre individuellen Wünsche
Finden Sie jetzt Ihren Ansprechpartner
Suckfüll Energiesparhaus
Weitere Häuser
Ähnliche Häuser Für Pulthaus 159