
Bungalow mit Keller
Wenn Sie Ihren Bungalow mit Ihrer Familie bewohnen möchten, ist der Keller eine praktische Lösung für deutlich mehr Stauraum und eventuell ein zusätzliches Wohngeschoss. Perspektivisch zahlt sich beim Bungalow ein Keller in jedem Fall aus und sorgt für Ordnung im Haus und auf dem Grundstück. Denn gerade auf kleinen Grundstücken ist die Wohnfläche von Bungalows begrenzt. Eine Unterkellerung bietet dann oft die einzige Möglichkeit, den Hauswirtschaftsraum sowie die Haustechnik komfortabel unterzubringen.
Doch welcher Aufpreis fällt für einen Bungalow mit Keller an? Und wann genau macht ein unterirdisches Geschoss wirklich Sinn? Diese und weitere Fragen beantworten wir Ihnen auf dieser Seite. Gleichzeitig können Sie verschiedenste Bungalows mit Keller in allen Bauweisen miteinander vergleichen.
Bungalows mit Keller vergleichen

Seien Sie bestens informiert bei Ihrer Bungalowauswahl! Fordern Sie Informationen von Baupartnern in Ihrer Nähe an, um bei der Entscheidung gut vorbereitet zu sein.
Kataloge anfordernBungalow mit Keller: Kosten ermitteln
Die meisten Hausanbieter präsentieren ihre Preise für Bungalows ab Oberkante Keller. Das bedeutet, dass die Kosten für den Keller auf den Hauspreis noch hinzukommen. Fragen Sie daher beim Anbieter nach, ob sich das Angebot für Sie mit oder ohne Unterkellerung versteht. Abhängig von der Größe und Nutzung des Bungalow-Kellers sollten Sie mit Mehrkosten ab 100.000 Euro aufwärts rechnen.
Bei einer Vollunterkellerung von 120 Quadratmetern fallen durchaus auch bis zu 240.000 Euro Zusatzkosten an, sofern ein Wohnkeller eingeplant ist. Doch gerade bei größeren Bungalows ist eine Teilunterkellerung sinnvoll. Denn Sie werden kaum eine Kellerfläche von 100 Quadratmetern benötigen, wenn Sie dort ausschließlich Haustechnik und Heizung einplanen.
Für den Bungalow selbst rechnen Sie im Schnitt mit Quadratmeterpreisen von 2.500 bis 3.000 Euro bei schlüsselfertiger mittelpreisiger Ausführung.
Vergleichen Sie für Ihren Bungalow mit Keller die Kosten
Wenn Sie Ihre Heizungsanlage im Keller unterbringen, sparen Sie bereits bis zu 15 Quadratmeter Wohnfläche ein und können die Kosten für Ihren Bungalow mit Keller nachhaltig senken. Um den für Sie besten Preis zu finden, sollten Sie einen Vergleich anstellen. Was kostet Ihr individuell designter Bungalow mit Bodenplatte und welchen Preis müssen Sie für die gleiche Ausführung mit kleinerer Wohnfläche und dafür mit Unterkellerung einrechnen? Oftmals zeigt sich, dass der Bungalow mit Keller gar nicht so teuer ist, wie Sie anfänglich vermutet haben.
Was kostet ein Fertighaus-Bungalow mit Keller? Beispielrechnung
Da diese Werte durchaus noch etwas abstrakt sind, wollen wir Ihnen nun konkret für einen Bungalow mit Keller die Kosten beim Hausbau aufzeigen. Wir gehen hierfür von einem 130 qm großen Fertighaus-Bungalow mit einem Teilkeller auf 50 qm Fläche aus, genau wie von gehobener schlüsselfertiger Ausführung und somit einem Quadratmeterpreis von 3.500 Euro. Ebenfalls in die Budgetierung beziehen wir Grundstückskosten von deutschlandweit aktuell im Durchschnitt laut Destatis 218 Euro pro qm ein, genau wie Baunebenkosten und Ausgaben für die Außenanlage.
Übrigens: Die Bauweise ist für den Hauspreis Ihres Bungalows mit Keller unerheblich, viel mehr ins Gewicht fallen Ausbaustufe, Ausführungsqualität und Energiestandard.
| KOSTENPUNKT | PREIS |
|---|---|
| Bungalow: Preis | 455.000 Euro |
| Grundstück | 137.340 Euro |
| Grundstücksnebenkosten, z.B. Grundbucheintrag, Grunderwerbsteuer | 13.734 Euro |
| Teil-Bodenplatte | 20.000 Euro |
| Teilkeller | 50.000 Euro |
| Außenanlage | 45.500 Euro |
| Baunebenkosten | 91.000 Euro |
| Sonstige Kosten (Umzug, Richtfest u.Ä.) | 15.000 Euro |
| = Bungalow mit Keller: Kosten gesamt | 827.574 Euro |
Fertighaus-Bungalow mit Keller als Option
Bungalow unterkellert: Vorteile
In einem Bungalow befinden sich alle Räume auf einer Ebene. Barrierefreie Übergänge sind daher problemlos möglich und es müssen keine Höhenunterschiede per Treppe überwunden werden. Dennoch stellen Bungalows viele Baufamilien vor eine Herausforderung: Dem ebenerdigen Haus mangelt es an wichtigen Stauraum.
Die Vorteile der Unterkellerung liegen demnach klar auf der Hand:
- Der Bungalow-Keller bietet Platz für die Heizungsanlage und die Waschküche.
- Das Untergeschoss schafft zusätzliche Fläche für Hobby- oder Fitnessräume sowie ausreichend Stauraum.
- Gerade bei einem Bungalow mit Keller in Hanglage bietet das Untergeschoss bei entsprechendem Ausbau attraktiven Wohnraum mit zum Teil bodentiefen Fenstern.
- Die Bungalow-Grundfläche im Erdgeschoss kann vollständig zu Wohnzwecken genutzt werden.
- Der Wiederverkaufswert des Bungalows steigt mit einem Keller.
Bungalow mit Keller: Auch steuerrechtlich von Vorteil
Bei Bungalows zählt der Keller als reiner Nutzkeller nicht als Wohngeschoss, wodurch Sie in puncto Grundsteuer bares Geld sparen. Selbst wenn Sie den Keller als Partyraum oder als Gästezimmer ausbauen, wird er nicht als Wohngeschoss eingestuft und dementsprechend steuerlich anders behandelt als Ihre Wohnebene.
Bungalow mit Wohnkeller: Worauf ist zu achten?
Warum den Keller nur als Abstellkammer nutzen? Richten Sie auf der gewonnenen Fläche doch gleich ein praktisches Gästezimmer oder ruhiges Arbeitszimmer mit separaten WC ein, oder auch einen ruhigen Wellnessbereich. Hierfür müssen Sie nur einige Vorschriften beachten und schon wird aus Ihrem Bungalow ein mehrebiges Zuhause. Gerade bei Bungalows, die in Hanglage errichtet werden, bietet sich ein Wohnkeller an, da größere Fensterflächen ohne großen Aufwand eingebaut werden können.
Folgende Anforderungen muss ein Wohnkeller erfüllen:
- Mindestens 2,30 m Deckenhöhe bzw. 2,40 m in Nordrhein-Westfalen und Bayern; 2,50 m in Berlin
- Ausreichende Wärmedämmung und Einbau einer Heizung
- Genügend Belüftung und Fenster gemäß der Landesbauordnungen
Beachten Sie, dass die Kosten für einen Bungalow mit Wohnkeller ansteigen aufgrund der umfangreichen Dämmung und Ausstattung.
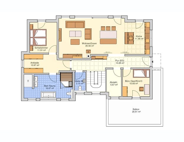
Bungalow mit Keller – Grundriss: 4 Tipps
Entscheiden Sie sich für einen Bungalow mit Keller, können Sie sich auf Ihrer Wohnfläche vollstens entfalten. Verteilen Sie die wertvollen Quadratmeter auf die Schlaf- und Wohnbereiche, richten Sie ein geräumiges Bad ein und ergänzen Sie eventuell ein Zimmer für Gäste oder das Home Office. Um den Grundriss für Ihren Bungalow mit Keller zu planen, befolgen Sie unsere 4 hilfreichen Tipps:
- Platzieren Sie die Treppe zum Keller direkt im Flur neben der Eingangstür, um so beispielsweise Einkäufe ohne lange Wege in den unterirdischn Vorratsbereich transportieren zu können.
- Achten Sie auf einen abgeschlossenen Flur, wenn Sie den Keller nach unten hin offen lassen oder schließen Sie den Keller oberhalb der Treppe durch eine Tür ab.
- Richten Sie den Technikraum wenn möglich nicht unter Schlafräumen ein, damit Geräusche durch die Geräte Sie nicht in der Nacht stören.
- Bauen Sie einen Wäscheschacht vom Schlafzimmer, der Ankleide oder dem Bad aus direkt in die Waschküche im Keller ein, so sparen Sie sich mehrmaliges Treppensteigen.
Bungalow mit Keller: Beliebte Beispiele























































































