
Tiny House Grundriss planen: Tipps, Ideen & Anbieter

Immer mehr Menschen möchten minimalistisch leben, ihren Wohnraum verkleinern und sich von unnötigem Besitz trennen. Ein Tiny House macht dies möglich. Ein gut geplanter und durchdachter Tiny House Grundriss bietet Raum für Alleinlebende bis hin zu Vier-Personen-Haushalten. Diesen auf Wunsch mobilen Haustyp können Sie mit kleinem Budget planen und errichten. Ein großes Grundstück, wie es für konventionelle Einfamilienhäuser nötig ist, entfällt durch die kleine Grundfläche beim Tiny House.
Worauf es bei der Entwurfsplanung für ein Kleinsthaus ankommt, welche Anforderungen erfüllt sein sollten und ob diese Wohnform überhaupt zu Ihren Bedürfnissen passt, erfahren Sie auf dieser Seite. Zudem stellen wir einige clever geplante Tiny House Grundrisse vor.

Die richtige Größe für Ihr Tiny House
Ob sich die Wohnform für Sie eignet, hängt von unterschiedlichen Faktoren ab. Eine Grundvoraussetzung für Ihre Zufriedenheit mit wenig Raum beruht darauf, dass Sie funktional sowie minimalistisch leben möchten. Dafür genießen Sie ein hohes Maß an Flexibilität, wenn Sie Ihr Häuschen auf Rädern bauen und es an jeden Ort mitnehmen können. Die Grundrissplanung erfordert größte Sorgfalt und Kreativität, damit die Raumaufteilung zum eigenen Lifestyle passt.
Kleinste Tiny Houses umfassen 8 bis 12 Quadratmeter, allerdings sind diese für die meisten zu klein und eignen sich eher als Ferienhaus. Hier sollte man schon einen sehr minimalistischen Lebensstil verfolgen, um sich dauerhaft wohl zu fühlen. Bei Größen von ungefähr 20 Quadratmeter kann sich ein Single bereits mit allem zum Wohnen notwendigen einrichten. Komfortabler und gängiger sind Tiny Houses ab 30 Quadratmeter. Hier finden Paare ausreichend Raum für ein entspanntes Zusammenleben. Möchte sich eine Familie mit ein bis zwei Kindern in einem Tiny House niederlassen, sollten mindestens 40 Quadratmeter Wohnfläche gewählt werden.
Wie groß sollte ein Tiny House sein?
Je nach Anzahl der Bewohner richtet sich die Größe des Kleinsthauses. Wir empfehlen folgende Größen, für eine effektive Planung Ihres Tiny House Grundrisses:
| Bewohneranzahl | Empfohlene Größe |
|---|---|
| Singles (1 Person) | 8 - 20 m² |
| Paare (2 Personen) | 20 - 40 m² |
| Kleine Familie (3-4 Personen) | 40 - 50 m² |
Grundrissvarianten für Tiny Houses
Neben der einfachen und barrierefreien Ausführung auf einer Ebene bietet sich die Möglichkeit der Wohnflächenerweiterung unter dem Dach an. Kreative Tiny House Grundrisse zeigen, dass sich eine weitere Ebene ideal als Schlafbereich oder zusätzlichen Wohnraum nutzen lässt. Durch den einseitig eingezogenen Boden entsteht auf natürliche Weise eine Abgrenzung, die Sie beispielsweise noch durch einen Vorhang verstärken können. Gerade wenn mehr als eine Person das Tiny House bewohnt, ist die Erweiterung der Grundfläche Gold wert.
Als Treppe eignet sich ein Regal- oder Schranksystem mit Stufen, das gleichzeitig wertvollen Stauraum schafft – denn davon kann man auf solch kleiner Wohnfläche nie genug haben. Alternativ tut es auch eine einfache Leiter, die besonders viel Platz einspart.
Beide Grundrissvarianten gegenübergestellt:
| Tiny House Variante | Eine Ebene (Bungalow-Stil) | Zwei Ebenen (Loft-Stil) |
|---|---|---|
| Vorteile | BarrierefreiEinfacher und kostengünstiger Bau | Mehr NutzflächeAbgetrennter Schlaf- / Wohnbereich |
| Nachteile | Limitierte NutzflächeWeniger Stauraum | Aufstieg nötigGeringere Deckenhöhe |
| Zielgruppe | Singles, Senioren, körperlich eingeschränkte Menschen | Junge Paare und Familien |
Die Herausforderung in der Entwicklung für Tiny House Grundrisse besteht darin, auf wenig Fläche alle "Räume" zu erschaffen. Ein Bad mit Dusche, eine vollwertige Küche mit Kühlschrank und eine Sitzecke mit bequemer Polsterung schenken Lebensqualität.
Damit Sie sich in Ihrem Tiny Haus nicht beengt fühlen, wird ein entsprechend breiter Durchgangsbereich benötigt. Das heißt, dass rechts und links stehende Möbel mit einer geringeren Bautiefe als im konventionellen Haus benötigt werden.
6 Tipps für die Tiny House Inneneinrichtung
Möglichkeiten für die Tiny House Grundrissplanung
Je nachdem, an welchem Punkt der Tiny House Grundrissplanung Sie stehen, empfehlen wir Ihnen verschiedene Möglichkeiten zur Ideenumsetzung.
- Beginnen Sie gerade erst, sich mit dem Thema zu beschäftigen, informieren Sie sich zunächst über die allgemeinen Grundrissplanung.
- Haben Sie schon konkrete Vorstellungen, kann die Umsetzung mit Hilfe eines Onlinetools hilfreich sein.
- Oder aber Sie suchen sich direkt einen passenden Tiny House Anbieter, der mit Ihnen einen optimalen Grundriss passend zu Ihren Wünschen entwirft.
- Für besonders ausgefallene und exklusive Tiny Houses kann auch ein Architekt für die Planung engagiert werden.
Schritt-für-Schritt zum Tiny House Grundriss
- Bedarf ermitteln: Anzahl der Bewohner festlegen, Raumanforderungen definieren, Budget kalkulieren
- Rechtliches klären: kleines Grundstück auswählen, Bebauungsplan prüfen, Tiny House Baugenehmigung beantragen
- Grundriss entwerfen: Außenmaße festlegen, Raumaufteilung skizzieren, Möblierung einplanen
- Grundriss festlegen: Hausanbieter wählen, Wünsche konkretisieren, Architektenentwurf optimieren
Minihaus Grundriss Beispiele unserer Baupartner
Duomod 39 - Var. 1 von NOVA TEQ - Wolf Bauservice
- 32 qm
- 2 Zimmer
- ab 98.200 € schlüsselfertig als Fertighaus
Die quadratische Form ermöglicht eine winkelförmige Raumaufteilung im inneren des Tiny Houses, was sich ideal zur Gliederung des Wohn- und Kochbereiches eignet. Der Schlafbereich geht fließend in den Wohnaum über.
Minimassiv-Haus Poel von ROTH-MASSIVHAUS
- 48 qm
- 2 Zimmer
- ab 185.700 € schlüsselfertig als Massivhaus
Die Winkelform schafft innen eine natürliche Kante zur Abgrenzung von Schlafzimmer und Wohnraum und außen einen geschützten Terrassenbereich. Die größere Wohnfläche ermöglicht die Eingliederung eines Hauswirtschaftraums.
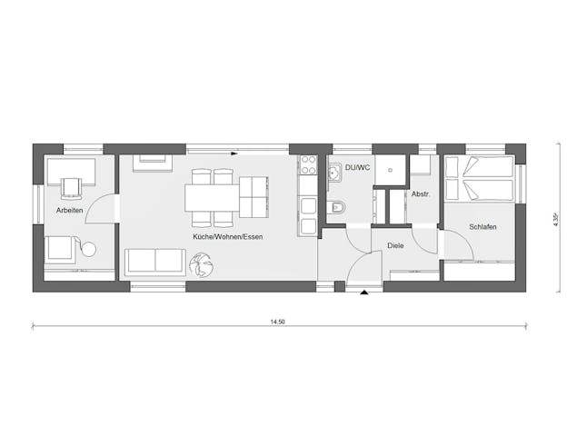
F 10-049.10.1 - Minihaus von SchwörerHaus
- 49 qm
- 4 Zimmer
- ab 200.641 € schlüsselfertig als Fertighaus
Durch den schlauchförmigen Grundriss liegen alle Räume nebeneinander. Der Schlaftrakt ist durch einen Abstellraum ergänzt und grenzt direkt ans Bad. Daneben erstreckt sich der Wohn-Kochbereich und selbst ein abgetrenntes Arbeitszimmer findet noch Platz.
Empfohlene Anbieter für kleine Häuser


















