
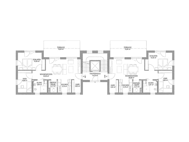
Mehrfamilienhaus Grundriss
Es gibt gute Gründe, sich für ein Mehrfamilienhaus zu entscheiden. Mehrfamilienhäuser könnten beispielsweise als Mehrgenerationenhäuser dienen, oder ein Teil wird selbst genutzt, ein Teil wird vermietet, um eine spürbare Entlastung bei der Finanzierung zu erreichen oder das Mehrfamilienhaus wird als Investitionsobjekt genutzt und komplett vermietet. Mehrfamilienhäuser können beispielsweise als Doppelhäuser konzipiert werden, oder sie weisen als mehrstöckige Gebäude mehrere Wohnungen pro Etage auf. Es ist auch möglich, pro Etage nur eine Wohneinheit anzulegen. Zu den Mehrfamilienhäusern zählen auch Reihenhäuser. Diese bestehen aus neben einander angelegten, im Grundriss in der Regel baugleichen Häusern, die miteinander verbunden sind. Im Prinzip können beliebig viele Reihenhäuser miteinander verbunden werden, in der Praxis setzen das Grundstück und der Bebauungsplan da Grenzen. Ein Reihenhaus besteht immer aus mindestens drei miteinander verbundenen Häusern, wären es nur zwei, handelte es sich um ein Doppelhaus. Der Unterschied zwischen Doppelhaus und Reihenhaus liegt in der Anzahl der miteinander verbundenen Häuser.
Das sollten Sie wissen:
Das sollten Sie bei einem Mehrfamilienhaus Grundriss beachten
Grundsätzlich ist bei jeder Grundrissplanung der Bebauungsplan zu beachten. Im Bebauungsplan der Stadt oder der Gemeinde sind die Baubestimmungen festgelegt, die den Rahmen für das gesamte Projekt grundsätzlich festlegen. Da geht es um die Geschoßhöhe, um die Höhe und die Form des Daches, außerdem um Nebengebäude, Stellplätze und Garagen. Vielerorts wird sogar der Standort des Gebäudes auf dem Grundstück festgeschrieben, zumindest was den Abstand zum Nachbarn oder zur Straße betrifft. Der Vorteil beim Bau eines Mehrfamilienhauses ist die optimale Flächenausnutzung des Grundstücks. Bei geschickter Raumaufteilung kann auf nur geringfügig größerer Grundfläche eine um ein Vielfaches größere Wohnfläche erzielt werden, zumal dem Mehrfamilienhaus als Reihen- oder Doppelhaus keinerlei Vorschriften in Sachen Geschoßanzahl entgegenstehen - es sei denn, der Bebauungsplan setzt hier Grenzen.
Planung eines Mehrfamilienhaus Grundrisses
Prinzipiell sollte ein Haus familientauglich geplant werden. Das bedeutet, dass genügend Raum für die Familie, für gemeinsame Aktivitäten eingeplant werden sollte, dass aber auch an Rückzugsmöglichkeiten gedacht werden muss, falls es doch dem einen oder anderen Familienmitglied mal zu viel Gemeinsamkeit wird und es einmal seine Ruhe haben möchte. Dieser Grundsatz lässt sich auch auf den Mehrfamilienhaus Grundriss anwenden, er muss eben entsprechend erweitert werden. Die familientaugliche Planung ist in jedem Fall zu beachten, egal ob ein Mehrgenerationenhaus auf mehreren Ebenen oder eine Kollektion von Reihenhäusern geplant wird. Zu beachten sind die Tagesabläufe der Familienmitglieder, welche Räume von wem wann genutzt und welche Wege regelmäßig stark frequentiert werden. Überaus wichtig ist es, den tatsächlichen Raumbedarf zu ermitteln. Schlafzimmer, in denen man sich tatsächlich nur zum Schlafen aufhält, werden häufig überdimensioniert und könnten auf das funktionale Maß reduziert werden. Dagegen wird Kinderzimmern oft zu wenig Raum zugestanden, obwohl dieser Raum nicht nur zum Schlafen, sondern auch zum Spielen genutzt wird.













