
Luxus-Villa bauen

Aparter Chic, aufregende, architektonische Noblesse und ein herrlich weitläufiger, aufwendig angelegter Garten – eine Villa in Luxus-Ausführung vereint den eleganten Stil und die repräsentative Ästhetik ihrer baulichen Vorgänger in ihrer feinsten und exklusivsten Form. Eine Luxus-Villa in modernem Design greift hierbei kreativ auf die bis auf die Ansitze der Patrizier des alten Roms zurückreichende Historie dieses Haustyps zurück und setzt diesen mit aktuellster Architektur und innovativer Technik um.
Was genau man unter einer Luxus-Villa versteht, welche Kosten und Preise angemessen sind, welche renommierten Anbieter eine Luxus-Villa bauen und weitere wissenswerte Details haben wir im Folgenden für Sie aufbereitet.

Luxus-Haus als Villa: Definition
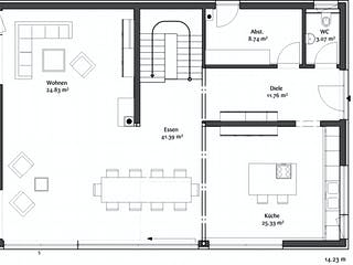
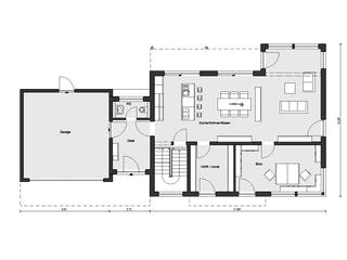
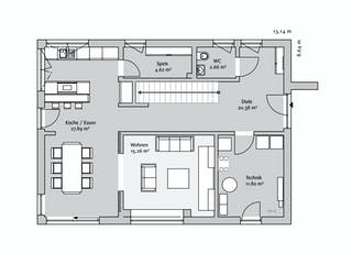
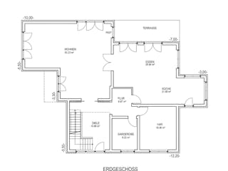
Wenn Sie eine Luxus-Villa bauen, dann sind Sie keineswegs auf einen starren Haustyp festgelegt. Vielmehr adaptiert diese edle Form des Eigenheims die charakteristischen Eigenschaften der historischen Gebäudeform mit mehreren Vollgeschossen stilvoll und zugleich hochgradig individuell – die Architektur-Abteilungen der Hausanbieter erarbeiten mit Ihnen Ihr ganz persönliches Traumhaus in jeder Bauweise. Eine Luxus-Villa wirkt hierbei stets harmonisch und überzeugt mit klarer Linienführung, weiten, offenen Räumen und dem großzügigem Einsatz von Glasflächen für viel Licht und Freiraum. Gleichzeitig tritt ein Luxus-Haus als Villa aufgrund seines komplex gestalteten Grundrisses und abgestimmt kontrastreichen Äußeren ästhetisch in den Vordergrund.
Die Materialien bei einer Luxus-Villa in moderner Ausführung sind durchweg auserlesen, die Ausstattung gehört zum absoluten Premium-Segment einschließlich neuester Technologien für Nachhaltigkeit, größtmögliche Energieeffizienz und den Komfort eines Smart Homes.
Typisch sind opulente Extras wie bei einer Luxus-Villa mit Pool und Garten im Stil eines ansehnlichen Landschaftsparks, genau wie außergewöhnlich designte Kamine und Treppen oder auch voll verglaste Erker und riesige Terrassen.
Aufsehenerregend ist üblicherweise auch das allein liegende Grundstück und die Wohnfläche einer Villa im Luxus-Bereich, obwohl es selbstverständlich auch kleine Luxus-Villen gibt.
Luxus-Villa bauen: Kosten & Preise
Die Annehmlichkeiten und die erlesene Optik einer Luxus-Villa haben offensichtlich ihren Preis. Eine schlüsselfertige Villa im Luxus-Segment startet bei Quadratmeter-Preisen ab Oberkante Bodenplatte von 4.000 Euro. Dem letztendlichen Hauspreis sind dabei im Grunde keine Grenzen gesetzt, je exquisiter die Ausstattung, je umfangreicher die Wohnfläche, je mehr realisierte Sonderwünsche, je höher die Energieeffizienz, desto teurer wird Ihr neues Eigenheim werden.
Bei einer Hausgröße von 200 qm sollten Sie also von mindestens 800.000 Euro als Preis für Ihre Luxus-Villa in modernem Look ausgehen. Bei einer Luxus-Villa mit Pool schlägt allein das Schwimmbecken mit rund 30.000 Euro extra zu Buche, ein Wohnkeller mit Wellnessbereich je nach Größe und Einrichtung mit etwa weiteren 200.000 Euro, ebenfalls hinzu kommen zusätzliche Ausgaben wie die Baunebenkosten oder die Grundstückskosten.
Luxus-Villa innen einrichten
Um das prunkvolle Äußere einer Luxus-Villa innen aufzugreifen, ist allererste Qualität bei der Inneneinrichtung und Materialwahl das Leitparadigma. Hierbei setzt man bei einer Luxus-Villa mit moderner Einrichtung auf geschmackvollen Purismus, der Materialgüte und zurückhaltende Ausstrahlung fokussiert.
Hierzu gehören selbstverständlich auch eine luxuriöse offene Küche und hochwertigst eingerichtete Badezimmer mit separater Regendusche und Badewanne mit Whirpool-Funktion.
Gleichzeitig steht, wenn Sie eine Luxus-Villa bauen, der Komfort an allererster Stelle, ob dies für Sie einen romantischen Schwimmteich oder eine behagliche Fußbodenheizung mit Wärmepumpe bedeutet. Von Photovoltaik bis hin zur Doppelgarage, ein Luxus-Haus als Villa bietet alles, was das Herz begehrt.
Luxus-Villa modern
Luxus-Villa bauen: Häufige Fragen
























































































































































