
Haus mit Fahrstuhl bauen
Ein Fertig- oder Massivhaus mit Fahrstuhl ist eine Luxusvariante, die aber tatsächlich immer beliebter wird. Die Kosten für einen Fahrstuhl sind deutlich geringer, wenn der Hauslift bereits beim Bau des Hauses berücksichtigt wird.
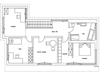
Der Fahrstuhl macht in mehrgeschossigen Häusern durchaus Sinn, vor allem im Bereich des generationen- und behindertenfreundlichen Bauens gehören Hauslifte inzwischen zum Standard.
Bedenken Sie bereits in jungen Jahren die Vorteile, die ein solcher Fahrstuhl im Alter bieten kann. Der nachträgliche, seniorengerechte Umbau mehrstöckiger Wohnhäuser ist nicht nur teurer, sondern bietet wesentlich weniger Möglichkeiten.

Kostenlos Kataloge & Informationen anfordern!
Seien Sie bestens informiert bei Ihrer Traumhauswahl! Fordern Sie Informationen von Baupartnern in Ihrer Nähe an, um bei der Entscheidung gut vorbereitet zu sein.
Kataloge anfordernFahrstuhl Definition
Per Definition ist der Fahrstuhl eine Beförderungsanlage für Personen und Lasten über mehrere Ebenen. Fahrstühle können vertikal oder horizontal verlaufen. Üblicherweise erfolgt die Beförderung mittels einer beweglichen Kabine oder einer Plattform. Bei einem Fahrstuhl wird die Aufzugskabine geführt, er überbrückt eine Mindesthöhe von 180 cm und hat feste Zugangsstellen für den Ein- und Ausstieg. Durch diese Kriterien wird der Fahrstuhl von anderen Transportmitteln wie dem Treppenlift oder dem Hublift abgegrenzt.
Welcher Fahrstuhl ist für den privaten Hausbau geeignet?
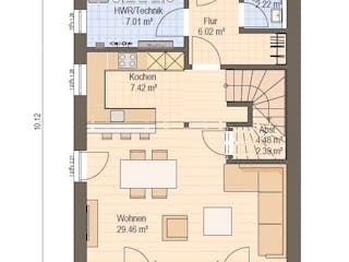
Fahrstühle mit einem Fahrkorb oder einer Fahrkabine werden in privaten Wohnhäusern am häufigsten eingesetzt. Der vertikal geführte Senkrechtaufzug ist Standard im gehobenen Hausbau. Mit einem solchen Fahrstuhl können mehrere Personen befördert werden. Durchladetüren ermöglichen das Ein- und Aussteigen von zwei Seiten.
Als Antrieb für einen Fahrstuhl dient entweder ein Seilsystem oder ein Hydrauliksystem. Die Kosten unterscheiden sich je nach Antriebssystem. Am weitesten verbreitet ist in Europa immer noch der Seilaufzug.
Was kostet ein Fahrstuhl?
Die Kosten für einen Fahrstuhl in einem Fertighaus oder Massivhaus unterscheiden sich beträchtlich. Der Preis hängt vom Aufzugstyp und der Größe der Kabine ab. Auch die zu überbrückende Höhe spielt bei der Preisgestaltung eine wesentliche Rolle. Aus diesem Grund ist es nicht möglich, pauschale Angaben zu den Preisen von Aufzügen in einem Fertighaus als auch in einem Massivhaus zu machen. In jedem Fall lässt sich aber festhalten, dass die spätere Ausstattung eines Hauses mit einem Fahrstuhl wesentlich teurer ist. Deswegen sollte der Hauslift bereits beim Kauf des Eigenheims berücksichtigt werden.
Eine ungefähre Preisorientierung ist allerdings möglich:
- Kleine Aufzüge im unteren Preissegment mit geringer Förderhöhe kosten zwischen 15.000 und 20.000 Euro (In diesem Preis sind statische Gutachten noch nicht enthalten)
- Fahrstühle für ein Haus über zwei oder drei Etagen sind ab etwa 40.000 bis 60.000 Euro realisierbar.
Die Kosten für den Aufzug setzen sich aus unterschiedlichen Posten zusammen. Folgende Kriterien haben Einfluss auf den Preis bei der Planung von Fertig- oder Massivhäusern mit Fahrstuhl:
Wichtig: Der nachträgliche Einbau von Beförderungsanlagen ist wesentlich teurer als wenn der Fahrstuhl direkt beim Neubau mit eingeplant wird.
Maße der Aufzugskabine
Anzahl der Haltestellen
Tragkraft
Aufzugtyp und Technik
Fahrgeschwindigkeit
Installationsort (im oder am Haus; außen ist meistens günstiger)
Besondere Ausstattungen wie bspw. ein barrierefreier Einstieg
Laufende Kosten für einen Fahrstuhl
Neben den Kosten für den Aufzug sowie Ein- und Umbaumaßnahmen eines Wohnhauses, sollten weitere Kosten einkalkuliert werden:
- Höhere Stromkosten (auch bei Stillstand des Fahrstuhls)
- Prüfungen der Funktionsfähigkeit durch den TÜV (Technischer Überwachungsverein)
- Wartungs- und Reparaturarbeiten
- Reinigungskosten
Nichtsdestotrotz eignet sich ein Fahrstuhl besonders für zwei- oder dreigeschossige Häuser, in denen Senioren vorhaben zu wohnen oder für Familien, die ihren Hausbau vorausschauend planen wollen. Auch der Einbau eines Aufzugs in Häuser mit Einliegerwohnung kann den Wert des Objekts steigern, da so auch körperlich beeinschränkte Personen einziehen können.
Wählen Sie jetzt ein passendes Haus aus
Finanzielle Unterstützung beantragen
Natürlich können für den Bau eines Fahrstuhls Fördergelder beantragt werden.
- Die meisten Förderungen sind oftmals an die Voraussetzungen des behindertengerechten bzw. barrierefreien Bauens gekoppelt. Detailliertere und weiterführende Informationen erhält man beim jeweiligen Bundesland.
- Eine weitere Möglichkeit stellt eine Pflegeversicherung dar. Sollte bereits eine Pflegestufe genehmigt worden sein, kann bei der Versicherung eine Zuzahlung beantragt werden. Diese beträgt maximal 2.557 Euro.
- Auch die Berufsgenossenschaft beteiligt sich unter Umständen an den Kosten für einen Aufzug, sollte ein Arbeitsunfall und eine daraus resultierende Behinderung zugrunde liegen.
- Die Kreditanstalt für Wiederaufbau (KfW-Bank) und andere Banken bieten zinsgünstige Kredite für einen behindertengerechten Umbau von Wohnraum, der sich auf die Reduzierung von Barrieren bezieht.
Welche Voraussetzungen muss ein behindertengerechter Aufzug erfüllen?
Um Fördergelder für einen behindertengerechten Fahrstuhl zu erhalten, müssen einige Voraussetzungen erfüllt werden, die wir Ihnen hier näher vorstellen:
- Ebenerdiger (barrierefreier) Zugang zum Aufzug; Alternative Einsatz einer Rampe
- Vor dem Aufzug muss eine Fläche von min. 2,25 m sein, damit die Person sich frei drehen und bewegen kann
- Die Fahrkabine muss min. die Maße 1,40 m (Tiefe) und 1,10 m (Breite) aufweisen
- Eine umlaufende Stange muss vorhanden sein, die zwischen 0,80 m und 1,05 m hoch ist
- Alle Tasten müssen einen ausreichenden Kontrast aufweisen und jeweils nicht kleiner als 4 x 4 cm groß sein
- Die Tür (Teleskop- oder Schiebetür) muss mindestens 90 cm breit sein
Zusätzlich hilfreich könnten folgenden Einbauten sein:
- Akustische Unterstützung der Anzeigen (Stockwerk und Richtung)
- Spiegel gegenüber der Tür um eine Orientierung zu erleichtern
Gesetze und Anpassungen beachten
Gibt es gesetzliche Grundlagen, auf die geachtet werden muss?
Für den Einbau eines Aufzuges existieren in Deutschland gesetzliche Regelungen. Eine bezieht sich auf die Telefon- bzw. Kommunikationsanlage. Diese muss zwingend vorhanden und funktionsfähig sein, um im Notfall Kontakt zu den Rettungskräften aufnehmen zu können. Die andere auf die Türsensoren, die ebenfalls zur Pflichtausstattung eines Aufzuges gehören, unabhängig davon, für welche Art von Türen Sie sich entscheiden. Die Sensoren sind dafür verantwortlich, zu verhindern, dass die Türen sich schließen, wenn sich etwas in der Türöffnung befindet.
Welche Umbauarbeiten müssen am Haus vorgenommen werden?
Der Einbau eines Aufzuges bedarf einiger Anpassungen am Eigenheim, unabhängig davon, ob der Schacht im Innen- oder Außenbereich angebracht wird. Als erstes sollten Sie sich darüber Gedanken machen, ob er behindertengerecht und auch für Kinderwägen nutzbar sein soll. Falls ja, müssen andere Größen gegeben sein, siehe weiter oben: “Welche Voraussetzungen muss ein behindertengerechter Aufzug erfüllen?”. Natürlich sollte die Größe auch eine Rolle spielen, falls oft sehr viele Personen den Aufzug nutzen. Eine Montage im Außenbereich eines Hauses kann nur realisiert werden, wenn genug Platz vorhanden ist und Wege angelegt werden, um den Fahrstuhl zu erreichen.
Empfohlene Baufirmen die Häuser mit Fahrstuhl bauen
Fazit: Den Fahrstuhl direkt mit einplanen
Sie wollen ein Haus mit mehreren Etagen bauen und auf alles vorbereitet sein? Dann bietet sich ein Fahrstuhl an, um das barrierefreie Erreichen aller Wohnbereiche zu ermöglichen. Selbst wenn Sie nicht zwingend an einen Rollstuhl angewiesen sind, erleichtert ein Fahrstuhl das Bewohnen des Hauses im hohen Alter. Es mag eine kostspielige Investition sein, die aber bei einer eingängigen Planung des neuen Hauses, sehr viel günstiger ausfällt, als bei einem nachträglichen Einbau.
Erkundigen Sie sich bei jedem Anbieter individuell, ob und in welchem Umfang ein Fahrstuhl in Ihrem zukünftigen Haus realisierbar ist.
Praktisch in allen mehrgeschossigen Häusern
Fahrstuhlbau wird in vielen Fällen finanziell gefördert
Von den Hausbaufirmen beraten lassen

Finden Sie heraus, welches Haus am besten zu Ihnen passt!
In unserem Quiz können Sie wichtige Eckdaten festlegen, verstehen, welches Haus zu Ihnen passt und herausfinden, welche Baupartner es am besten bauen können.
Hausbau-Assistenten starten




















































