
Containerhaus Grundriss planen: Tipps & Beispiele

Als junge Wohnidee und minimalistisch-progressiver Trend in der modernen Architektur repräsentiert der Hausbau mit Containern – darunter auch umfunktionierte Seefrachtcontainer – nicht nur eine besondere Ästhetik, sondern auch ein Paradebeispiel für Zirkularität beim Bau. Oftmals wird der Begriff Container-Haus-Grundriss allerdings weiter gefasst: Gerade weil sich Wohncontainer-Einheiten für den Modulbau oder Tiny Houses eignen, werden entsprechend auch Containerhaus-Grundrisse angeboten, die gar nicht auf den ursprünglichen Stahlcontainern basieren, sondern eher in Fertigbauweise umgesetzt werden.
Doch welche Besonderheiten müssen bei einem Container-Haus-Grundriss berücksichtigt werden? Und welche Best Practices gibt es für die Erstellung eines Grundrisses für ein Containerhaus? Im Folgenden gehen wir auf alle wichtigen Punkte ein und stellen Ihnen passende Anbieter und bewährte Beispiele vor.

Grundriss Container-Haus: Einführung
Den Ausgangspunkt bildet der einzelne Wohncontainer, bei dem der Container-Haus-Grundriss dem eines einfachen, quaderförmigen Tiny- oder Minihauses mit Flachdach entspricht.
Es ist allerdings problemlos möglich, mehrere Containermodule miteinander zu verbinden, sie nebeneinander oder übereinander zu platzieren. So entstehen durch das Zusammenfügen der einzelnen Module Containerhaus-Grundrisse mit über 100 Quadratmetern Wohnfläche. Die Umgestaltung des Transportbehälters zu einem Wohncontainer bedarf allerdings der richtigen Planung, damit unter anderem Vorgaben zum Wärmeschutz des GEG eingehalten werden.
Anstatt einen Frachtcontainer als Wohnhaus umzubauen, bieten sich in Fertig- oder Modulbauweise gefertigte Containerhäuser an. Mehr dazu weiter unten im Artikel.

Container-Haus-Grundrisse: Größen & Maße
Containerhaus Grundrisse zeichnen sich nicht durch übermäßige Flexibilität in der Gestaltung aus, denn Form und Größe der einzelnen Einheiten sind unverrückbar vorgegeben. Es gibt zwar unterschiedlich große Container, aber rechteckige Quader sind sie in jedem Fall. Üblicherweise werden 40-Fuß-Seefrachtcontainer verwendet. Es gibt je nach Anbieter auch größere Container, aber das sind die gängigsten Maße:
- Länge 12,2 Meter
- Breite 2,4 Meter
- Höhe 2,6 Meter (in der High-Cube-Ausführung 2,9 Meter)
- Wohnfläche: etwa 28 Quadratmeter.
Der 20 Fuß-Frachtcontainer hat die gleiche Breite und Höhe, ist aber nur 6 Meter lang, das bedeutet, dass beim 20-Fuß-Container eine maximale Wohnfläche von etwa 14 Quadratmetern entsteht.
Dennoch lassen sich klassische Container-Haus-Grundrisse dadurch variieren, dass mehrere auch verschiedene große Wohncontainer auf unterschiedlichen Ebenen miteinander verbunden und durch Extras wie eine Dachterrasse oder Außentreppe ergänzt werden.

Wie groß sind klassische Seecontainer?
| Maß | 10-Fuß Container | 20-Fuß Container | 40-Fuß Container | 45-Fuß Container |
|---|---|---|---|---|
| Länge | 3,0 m | 6,1 m | 12,2 m | 13,7 m |
| Breite | 2,4 m | 2,4 m | 2,4 m | 2,4 m |
| Höhe | 2,6 m | 2,6 m | 2,6 m | 2,6 m |
| Fläche | 7 m² | 14 m² | 28 m² | 31 m² |
| Volumen | 16 m³ | 33 m³ | 68 m³ | 76 m³ |
| Gewicht | 1.300 kg | 2.200 kg | 3.800 kg | 4.800 kg |
Neben den Standardgrößen für Seecontainer in der Tabelle gibt es auch High-Cube Container, die 30 Zentimeter höher als die Standard-Container sind und somit eine Höhe von 2,9 Metern aufweisen. Dementsprechend verändert sich das Raumvolumen und das Gewicht dieser höheren Container.
Grundriss Container-Haus: Grundüberlegungen
Zunächst sind Fragen der Nutzung und der Zahl der Bewohner zu klären. Für einen Anbau an ein bestehendes Haus, eine Erweiterung beispielsweise in Form eines Gästezimmers oder eines Bürocontainers, reicht eventuell der 20-Zoll-Container schon aus. Soll im Containerhaus-Grundriss aber Wohnraum, Küchenzeile, Schlafzimmer und Bad vorhanden sein, sollte mindestens ein 40-Zoll-Container gewählt werden - vielleicht sogar eine Kombination aus mehreren Containern.
Es ist zu beachten, dass die üblichen Seecontainer nicht sehr wandlungsfähig sind. Der Einbau von Fenstern und Türen kann problematisch sein, die Statik muss geprüft und gegebenenfalls verstärkt werden. Prinzipiell gilt auch für den Grundriss eines Container-Hauses, diesen so offen und einfach wie möglich zu gestalten, um möglichst viel Wohnfläche herauszuholen.
Außerdem erweist es sich als vorteilhaft, wenn Sie bereits wissen, wo das Containerhaus stehen soll. Ja nach Lage auf dem Grundstück werden dann Fenster- und Türöffnungen vorgesehen, die Zwischenwände, Innentüren und Versorgungsleitungen eingeplant sowie der ganze Container-Haus-Grundriss ausgerichtet. Speziell bei den Wasser- und Abwasserleitungen ist vorher die Lage der Anschlüsse zu klären. Ein wichtiger Punkt ist die Frage des Fundaments. Das Containerhaus kann auf ein Streifenfundament oder ein Punktfundament gestellt werden.
Raumoptimierung im Wohncontainer Grundriss
Der Innenausbau ist beim Containerhaus-Grundriss entscheidend für den Wohnkomfort. Während die Containerstruktur die äußeren Dimensionen vorgibt, haben Sie beim Ausbau mehr Gestaltungsspielraum, sofern Sie die besonderen Anforderungen von Metallcontainern berücksichtigen.
Bei einem Container-Haus-Grundriss zählt jeder Zentimeter. Mit einer durchdachten Raumplanung und multifunktionalen Möbeln holen Sie das Maximum aus der begrenzten Fläche heraus. Die schmale Bauform von Containerhäusern erfordert zudem ein durchdachtes Lichtkonzept, um eine optische Raumvergrößerung zu erhalten. Mit unseren Tipps verwandeln Sie einen starren Seecontainer in ein gemütliches Zuhause:

Kostenlos Kataloge von Baufirmen anfordern!
Seien Sie bestens informiert bei Ihrer Traumhauswahl! Fordern Sie Informationen von Baupartnern in Ihrer Nähe an, um bei der Entscheidung gut vorbereitet zu sein.
Kataloge anfordernContainer-Haus-Grundriss: Ablauf der Planung
Wenn Sie ein Containerhaus planen, sollten Sie die folgenden Schritte beim Erstellen des Grundrisses beherzigen:
- Kosten kalkulieren: Berechnen Sie, ob das Projekt in Ihrem Budget liegt. Für fertige Wohncontainer-Grundrisse gelten oft Festpreise, was eine Kalkulation erleichtert.
- Standort wählen: Klären Sie, ob Ihr Containerhaus tatsächlich auf dem von Ihnen dafür vorgesehenen Standort aufgestellt werden darf. Schauen Sie dazu in den Bebauungsplan sowie in die Bauverordnung des jeweiligen Bundeslandes.
- Ausrichtung festlegen: Haben Sie grünes Licht für Ihre Standortwahl, überlegen Sie genau, wie und wo das Containerhaus platziert werden soll. Die Ausrichtung nach dem Sonnenverlauf beeinflusst den Container-Grundriss
- Erweiterungen einplanen: Selbst wenn es zum jetzigen Zeitpunkt keinen Grund für eine Wohnraumerweiterung gibt, ist es ratsam, dass Sie angrenzend etwas Platz einplanen. Zudem kann die Platzierung von Fenstern und Türen einen späteren Anbau beeinflussen.
- Wohnraumnutzung klären: Überlegen Sie, zu welchen Zwecken Sie Ihren Wohnraum regelmäßig nutzen. Daran entscheidet sich, welche Multifunktions- und Einbaumöbel für Sie sinnvoll sind.
- Grundriss planen: Sind alle vorherigen Punkte geklärt, können Sie den eigentlichen Containerhaus-Grundriss nach den Vorgaben entwerfen. Einen ersten Entwurf können Sie selbst mittels eines Grundrisstools erstellen. Die Detailplanung wird dann von einem Architekten ausgeführt.
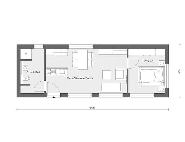
Nachfolgend haben wir einige von Architekten geplante Grundrissbeispiele herausgesucht.
Grundriss Containerhaus: Häufige Fragen



















