







Musterhaus Neu Wulmstorf von ScanHaus Marlow
Preis auf Anfrage
Bewertungen von ScanHaus Marlow
4,2
(105)
Wohnfläche
176 m²
Ausbaustufe
Schlüsselfertig
Bauweise
Fertighaus
Energiestandard
Effizienzhaus 55
Hausart
Einfamilienhaus
Beschreibung
SH 180 - Modern und komfortabel!
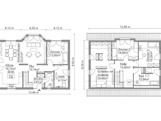
Das klassische Einfamilienhaus zeigt eine Erkerlösung mit darüber liegender Trapezgaube. Geplant wurde hier eine 4-Zimmer-Lösung mit großem Wohn-, Koch- und Essbereich, drei weiteren Zimmern, einem Gäste-WV mit Platz für eine mögliche Dusche, Schlafzimmer mit separater Ankleide, Bad mit interessanter Waschtisch- und Duschlösung und einem großen Hauswirtschaftsraum. Zudem bieten praktische Nischenlösungen im Flur mehr Stauraum für dies und das.
Sie haben Interesse?
Laden Sie sich jetzt Ihr kostenloses Exposé zu diesem Haus herunter:
Merkmale
Energiestandard und Förderung
Energiestandard
Effizienzhaus 55
Preisdetailsfür Musterhaus Neu Wulmstorf
Schlüsselfertig ab
Preis auf Anfrage
Dieser Preis ist ein Beispiel für den Anfang, ein Berater kann Ihnen ein detailliertes Angebot erstellen, das Ihren Bedürfnissen entspricht.
Möchten Sie bei Ihrem Projekt Geld sparen?
Durch einen Angebotsvergleich mit Fertighaus.de können Sie bis zu 20 % Ihrer Baukosten sparen.
Musterhaus Neu Wulmstorf - Hilfreiche Fragen & Antworten
Das Haus besticht durch eine elegante Erkerlösung und eine markante Trapezgaube, die dem Äußeren Charakter verleihen. Wir finden die Raumaufteilung mit 176 m² sehr durchdacht. Besonders hervorzuheben sind das Schlafzimmer mit separater Ankleide sowie das Bad mit moderner Waschtischlösung. Praktische Nischen im Flur sorgen zudem für wertvollen Stauraum in Ihrem neuen Zuhause.
Wir empfehlen für das SH 180 eine Grundstücksgröße von etwa 450 m². Bei einer geschätzten Grundfläche von 100 m² bietet dies genügend Platz für das Haus, Stellplätze von rund 50 m² und eine großzügige Gartenfläche. So stellen Sie sicher, dass alle baurechtlichen Abstände eingehalten werden und Ihnen ausreichend Erholungsraum im Grünen bleibt.
Ja, der Anbieter gewährt Ihnen ab der Vertragsunterzeichnung eine Festpreisgarantie von 18 Monaten. Wir halten dies für einen großen Vorteil Ihrer Planungssicherheit. Zudem gilt das Prinzip „Erst bauen – dann zahlen“, wodurch Sie die Gesamtsumme erst bei Hausübergabe leisten müssen. Genaue Details zu den Preisoptionen können Sie einfach über uns anfordern.
Das Haus wird als Effizienzhaus 55 in nachhaltiger Fertigbauweise errichtet. ScanHaus Marlow setzt dabei auf einen hohen Holzanteil aus zertifizierter Forstwirtschaft und eine exzellente Dämmung der Thermo-Außenwände. Wir sehen darin eine ökologisch wertvolle Entscheidung, die durch dreifach verglaste Fenster ergänzt wird. Dies hilft Ihnen dabei, den Energieverbrauch sowie Ihre zukünftigen Heizkosten dauerhaft niedrig zu halten.
Über den Anbieter ScanHaus Marlow
Zum Anbieterprofil
Bewertungen
4,2
(105)

Bewertungen
4,2
105 BewertungenHervorragend
ScanHaus Marlow in Zahlen
Gründungsjahr
1992
Häuser im Angebot
43
Häuser pro Jahr
ca. 650
Mitarbeiter
ca. 500
Bewertungen von ScanHaus Marlow
Wir bauen.
Alles gut
17 Jan. 2026Andreas J.
War sehr freundlich
War sehr freundlich
19 Dez. 2025Horst E.
Sehr nettes Telefonat. Sehr gute Beratung im ...
Sehr nettes Telefonat. Sehr gute Beratung im Musterhaus Potsdam. Sehr gute Unterlagen für eine Voranfrage mit dem Bauamt. Leider lässt der Bebauungsplan es nicht zu und es gibt auch keine Ausnahmen, schade der Traum ist geplatzt.
18 Nov. 2023Martina B.
Leistungsspektrum
Finanzierungsberatung
Preisgarantie
Bauzeit Garantie
Individuelle Planung
Blower Door Test
Persönliche Beratung für Ihre individuellen Wünsche
Finden Sie jetzt Ihren Ansprechpartner
ScanHaus Marlow
Auszeichnungen, Zertifikate & Mitgliedschaften




Ähnliche Häuser Für Musterhaus Neu Wulmstorf