



Albertino 118 von Albert Haus
Ab 179.294 €
Bewertungen von Albert Haus
0
(0)
Wohnfläche
118 m²
Zimmer
7
Ausbaustufe
Schlüsselfertig
Bauweise
Fertighaus
Etagen
1
Energiestandard
Effizienzhaus 55
Dachform
Walmdach
Hausart
Einfamilienhaus
Beschreibung
Harmonie bis ins Detail
Es ist herrlich, auf der windgeschützten Terrasse des Winkelbungalows Albertino 118 den Frühling zu begrüßen oder im späten Herbst die wärmenden Sonnenstrahlen zu genießen. Erleben Sie eine Harmonie, die sich auch in der Architektur des Bungalows widerspiegelt.
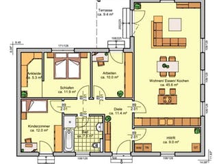
Doch auch die inneren Werte unseres Bungalows Albertino 118 sind bemerkenswert. Großzügige Wohnbereiche sind in Balance mit den funktionalen Anforderungen eines modernen Bungalows. Der große Wohn-, Ess- und Kochbereich bildet das Zentrum des Familienlebens. Der zweite Gebäudetrakt bietet ein Schlafzimmer mit Ankleide sowie ein Kinder- und zusätzlich ein Arbeitszimmer.
Im Preis enthalten sind:
- Architektenleistungen
- Eingangsüberdachung
- Rollläden
- dezentrale kontrollierte Be- und Entlüftung
Preise verstehen sich ab Oberkante Bodenplatte.
Weitere Infos:
In der Flächenberechnung ist ein HWR mit ca. 9 m² enthalten.
Noch durch den Bauherrn zu erbringende Leistungen: Spachtel-, Maler- u. Tapezierarbeiten, Bodenbeläge
Sie haben Interesse?
Laden Sie sich jetzt Ihr kostenloses Exposé zu diesem Haus herunter:
Grundrissfür Albertino 118
Außenmaße
Länge: 11,83 m
Breite: 14,06 m
Grundrisse
Der Grundriss entspricht nicht Ihren Vorstellungen?
Passen Sie den Grundriss an Ihre persönlichen Bedürfnisse an und besprechen Sie Ihren individuellen Plan mit einem Bauberater des Anbieters.
Merkmale
Energiestandard und Förderung
Energiestandard
Effizienzhaus 40
Effizienzhaus 40 Plus
Effizienzhaus 55
Wärmedurchgangskoeffizient
0,133 (U-Wert)
Effizienzhaus 40 Plus
Ein Effizienzhaus 40 Plus verbraucht im Vergleich zum Referenzhaus 100 > 60 % weniger Energie. Sie müssen für den Hausbau mit Mehrkosten von ~ 13,5 % rechnen, die sich aber mittelfristig auszahlen. Es verfügt im Vergleich zum Effizienzhaus 40 über weitere Komponenten, wie beispielsweise eine Lüftungsanlage mit Wärmerückgewinnung, eine Anlage, mit der auf Basis erneuerbarer Energien Strom erzeugt werden kann und ein Batteriespeichersystem, mit dem überschüssige Energie eingespart werden kann.
Effizienzhaus 40
Seit dem 1. Juli 2010 gibt es neben dem Effizienzhaus 55 und dem Effizienzhaus 70 noch das Effizienzhaus 40. Das Effizienzhaus 40 darf nur 40 Prozent der nach Energieeinsparverordnung 2009 (EnEV) gültigen Höchstwerte hinsichtlich Jahres-Primärenergiebedarf und Transmissionswärmeverlust erreichen. Neben der Einsparung von 60 Prozent beim Jahres-Primärenergiebedarfs sind auch beim Transmissionswärmeverlust 45 Prozent einzusparen. Der maximale Jahresprimärenergiebedarf beträgt 30 kWh/m². Ein KfW-Effizienzhaus 40 Haus ist luftdicht und nutzt regenerative Energien, häufig eine Kombination aus Holzpellets, Solaranlage und Lüftungsanlage mit Wärmerückgewinnung.
Effizienzhaus 55
Ein Effizienzhaus 55 verbraucht im Vergleich zum Referenzhaus 100 45 % weniger Energie. Sie müssen für den Hausbau mit Mehrkosten von ~ 7,5 % rechnen, die sich aber mittelfristig auszahlen. Diese Effizienzklasse gilt heutzutage als Standard für alle neu gebauten Häuser.
Dach
Dachform
Walmdach
Dachneigung
24°
Satteldach
Das Satteldach liegt in Form eines Dreiecks auf dem Baukörper und schließt entweder mit seinem First parallel zu den beiden Giebeln ab oder es ragt noch über die Giebel hinaus. Satteldächer werden als Pfettendach oder als Sparrendach ausgebildet. Üblich sind Dachneigungen ab etwa 30˚ (flaches Satteldach) bis über 60˚ (altdeutsches Dach). Weit verbreitet sind Satteldächer mit etwa 38˚ bis 45˚ Neigung. Diese bieten genug Raum für einen Ausbau des Dachgeschosses.
Zeltdach
Seltene Dachform, die nur auf einem quadratischen oder annähernd quadratischen Grundriß errichtet werden kann. Zelt- oder Pyramidendächer findet man vor allem auf Türmen und Kirchtürmen.
Walmdach
Sehr häufig zu sehende Dachform, dem Satteldach verwandt. Im Gegensatz zu diesem schließt der First jedoch nicht mit den beiden Giebelwänden ab, sondern ist beidseitig zurückgebaut, das heißt abgeschrägt sind. Dabei unterscheidet man noch Zwergwalmdach, Krüppelwalmdach und Fußwalmdach. Da bei diesen Varianten nicht die komplette Seite abgewalmt ist, spricht man auch häufig von Vollwalmdach, wenn der Walm so ausgebildet ist, wie auf der Zeichnung. Weitere Bezeichnungen für Walmdach sind Walbendach, Holländisches Dach, Schopfdach oder Haubendach.
Krüppelwalmdach
Besonders auf nord- und niederdeutschen Gehöften gebräuchliche Variante des Walmdachs. Entspricht einem Walmdach mit hochgesetzter Traufhöhe am Giebel. In manchen Gegenden wird es auch als Schopfwalmdach bezeichnet.
Flachdach
Flachdächer sind allgegenwärtig und dominieren im Gewerbebau, im Bereich des privaten Hausbaus werden sie - mit stark abnehmender Tendenz - bei Bungalows angelegt und natürlich bei Garagen und Carports. Bei Flachdächern erfolgt keine Dacheindeckung mit Dachpfannen, vielmehr wird die Dachfläche mit Dachbahnen oder mit Metallblechen regenfest gemacht. Konstruktiv wird beim Flachdach unterschieden zwischen Kaltdach, Warmdach und Umkehrdach. Mit Dachbahnen abgedichtete Flachdächer werden auch heute noch, wenn auch mit stark abnehmender Tendenz, mit Rollkies belegt. Stark steigend, bei Gewerbebauten jedoch oftmals auch baubehördlich vorgeschrieben, ist die Anlage einer Dachbegrünung. Dadurch wird das Flachdach zum Gründach. Gründächer sind eine sinnvolle Alternative gegen die zunehmende Verdichtung des Bodens. Flachdächer sind im übrigen keineswegs eben, sie müssen ein Gefälle von mindestens 3 % aufweisen, damit das Regenwasser über den Dachgully oder die Dachrinnen abfließen kann.
Pultdach
Gefälledach, das wie ein Pultdeckel auf dem Baukörper liegt. Das Pultdach ist die einfachste Dachform überhaupt. Mit nur einen schrägen Dachfläche ist es kostengünstig herzustellen. Im Mittelmeerraum ist das Pultdach die häufigste Dachform. Seit einiger Zeit erfreut es sich auch hierzulande zunehmender Beliebtheit. Die Dachfläche von Pultdächern liegt meist zur Wetterseite hin, um Wind, Regen und Schnee abzuschirmen. An der Sonnenseite lässt das Haus Raum für große Lichtflächen.
Preisdetails für Albertino 118
Schlüsselfertig ab
179.294 €
Ausbauhaus ab124.599 €
ab 539,75 €
Dieser Preis ist ein Beispiel für den Anfang, ein Berater kann Ihnen ein detailliertes Angebot erstellen, das Ihren Bedürfnissen entspricht.
Möchten Sie bei Ihrem Projekt Geld sparen?
Durch einen Angebotsvergleich mit Fertighaus.de können Sie bis zu 20 % Ihrer Baukosten sparen.
Albertino 118 - Hilfreiche Fragen & Antworten
Im schlüsselfertigen Paket sind meist die komplette Gebäudehülle, die Haustechnik und der Innenausbau enthalten. Der Preis pro Quadratmeter liegt bei diesem Modell bei etwa 2.600 Euro und ordnet sich somit im mittelpreisigen Segment ein. Über uns können Sie jederzeit detaillierte Leistungsbeschreibungen anfordern, um alle Kostenfaktoren für Ihr Bauvorhaben transparent zu überblicken.
Dieses Modell besticht durch sein klassisches Satteldach, das nicht nur zeitlos wirkt, sondern auch eine optimale Raumnutzung im Obergeschoss ermöglicht. Die Fassadengestaltung lässt sich individuell anpassen, wobei moderne Putzvarianten oder Holzapplikationen möglich sind. So schaffen Sie ein Zuhause, das perfekt zu Ihrem persönlichen Stil sowie den jeweiligen örtlichen Bauvorschriften passt.
Für dieses Haus mit einer Grundfläche von 80 m² empfehlen wir Ihnen eine Grundstücksgröße von etwa 400 m². Diese Kalkulation berücksichtigt 50 m² für Stellplätze sowie eine Gartenfläche von rund 260 m². So bleibt Ihnen genügend Raum für Erholung und die Einhaltung aller notwendigen Abstandsflächen zu den Nachbargrundstücken ist sicher gewährleistet.
Dieses Haus richtet sich vor allem an junge Familien, die Wert auf eine nachhaltige Holzständerbauweise legen. Dank der effizienten Raumaufteilung bietet es genügend Platz für Eltern und Kinder gleichermaßen. Wir unterstützen Sie dabei, das passende Ausbaupaket zu finden, falls Sie Eigenleistungen einbringen möchten, um die Gesamtkosten für Ihr individuelles Bauvorhaben weiter zu senken.
Über den Anbieter Albert Haus

Bewertungen
0
(0)

Bewertungen
0
0 BewertungenKeine
Ähnliche Häuser Für Albertino 118