





Uffenheim von Albert Haus
Ab 349.936 €
Bewertungen von Albert Haus
0
(0)
Wohnfläche
159 m²
Zimmer
10
Ausbaustufe
Schlüsselfertig
Bauweise
Fertighaus
Etagen
2
Energiestandard
Effizienzhaus 55
Dachform
Walmdach
Hausart
Einfamilienhaus
Beschreibung
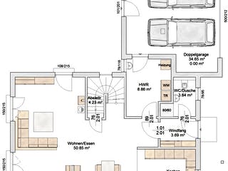
Die Stadtvilla ist seit jeher Ausdruck eines repräsentativen Lebensstils und besticht durch ihre besonders ökonomische Raumausnutzung von Grundstück und Gebäude. Ohne störende Dachschrägen kann die gesamte Fläche auf den zwei Vollgeschossen voll genutzt werden. Die Garage ist wunderbar integriert und ermöglicht einen direkten Zugang durch den HWR ins Haus.
Im Hauspreis schlüsselfertig enthalten:
- Split Luft-Wasserwärmepumpe
- Fußbodenheizung
- dezentrale kontrollierte Be- und Entlüftung
- Spachtelarbeiten in Q2
- Maler- und Tapezierarbeiten
- Bodenbeläge Laminat in den Räumen ohne Fliesen
- Doppelgarage mit Eingangsüberdachung
Preise verstehen sich ab Oberkante Bodenplatte.
Merkmale
- Garage
- Gästezimmer
Sie haben Interesse?
Laden Sie sich jetzt Ihr kostenloses Exposé zu diesem Haus herunter:
Grundrissfür Uffenheim
Grundrisse
Der Grundriss entspricht nicht Ihren Vorstellungen?
Passen Sie den Grundriss an Ihre persönlichen Bedürfnisse an und besprechen Sie Ihren individuellen Plan mit einem Bauberater des Anbieters.
Merkmale
Energiestandard und Förderung
Energiestandard
Effizienzhaus 40
Effizienzhaus 40 Plus
Effizienzhaus 55
Wärmedurchgangskoeffizient
0,133 (U-Wert)
Effizienzhaus 40 Plus
Ein Effizienzhaus 40 Plus verbraucht im Vergleich zum Referenzhaus 100 > 60 % weniger Energie. Sie müssen für den Hausbau mit Mehrkosten von ~ 13,5 % rechnen, die sich aber mittelfristig auszahlen. Es verfügt im Vergleich zum Effizienzhaus 40 über weitere Komponenten, wie beispielsweise eine Lüftungsanlage mit Wärmerückgewinnung, eine Anlage, mit der auf Basis erneuerbarer Energien Strom erzeugt werden kann und ein Batteriespeichersystem, mit dem überschüssige Energie eingespart werden kann.
Effizienzhaus 40
Seit dem 1. Juli 2010 gibt es neben dem Effizienzhaus 55 und dem Effizienzhaus 70 noch das Effizienzhaus 40. Das Effizienzhaus 40 darf nur 40 Prozent der nach Energieeinsparverordnung 2009 (EnEV) gültigen Höchstwerte hinsichtlich Jahres-Primärenergiebedarf und Transmissionswärmeverlust erreichen. Neben der Einsparung von 60 Prozent beim Jahres-Primärenergiebedarfs sind auch beim Transmissionswärmeverlust 45 Prozent einzusparen. Der maximale Jahresprimärenergiebedarf beträgt 30 kWh/m². Ein KfW-Effizienzhaus 40 Haus ist luftdicht und nutzt regenerative Energien, häufig eine Kombination aus Holzpellets, Solaranlage und Lüftungsanlage mit Wärmerückgewinnung.
Effizienzhaus 55
Ein Effizienzhaus 55 verbraucht im Vergleich zum Referenzhaus 100 45 % weniger Energie. Sie müssen für den Hausbau mit Mehrkosten von ~ 7,5 % rechnen, die sich aber mittelfristig auszahlen. Diese Effizienzklasse gilt heutzutage als Standard für alle neu gebauten Häuser.
Dach
Dachform
Walmdach
Dachneigung
25°
Kniestockhöhe
262 cm
Satteldach
Das Satteldach liegt in Form eines Dreiecks auf dem Baukörper und schließt entweder mit seinem First parallel zu den beiden Giebeln ab oder es ragt noch über die Giebel hinaus. Satteldächer werden als Pfettendach oder als Sparrendach ausgebildet. Üblich sind Dachneigungen ab etwa 30˚ (flaches Satteldach) bis über 60˚ (altdeutsches Dach). Weit verbreitet sind Satteldächer mit etwa 38˚ bis 45˚ Neigung. Diese bieten genug Raum für einen Ausbau des Dachgeschosses.
Zeltdach
Seltene Dachform, die nur auf einem quadratischen oder annähernd quadratischen Grundriß errichtet werden kann. Zelt- oder Pyramidendächer findet man vor allem auf Türmen und Kirchtürmen.
Walmdach
Sehr häufig zu sehende Dachform, dem Satteldach verwandt. Im Gegensatz zu diesem schließt der First jedoch nicht mit den beiden Giebelwänden ab, sondern ist beidseitig zurückgebaut, das heißt abgeschrägt sind. Dabei unterscheidet man noch Zwergwalmdach, Krüppelwalmdach und Fußwalmdach. Da bei diesen Varianten nicht die komplette Seite abgewalmt ist, spricht man auch häufig von Vollwalmdach, wenn der Walm so ausgebildet ist, wie auf der Zeichnung. Weitere Bezeichnungen für Walmdach sind Walbendach, Holländisches Dach, Schopfdach oder Haubendach.
Krüppelwalmdach
Besonders auf nord- und niederdeutschen Gehöften gebräuchliche Variante des Walmdachs. Entspricht einem Walmdach mit hochgesetzter Traufhöhe am Giebel. In manchen Gegenden wird es auch als Schopfwalmdach bezeichnet.
Flachdach
Flachdächer sind allgegenwärtig und dominieren im Gewerbebau, im Bereich des privaten Hausbaus werden sie - mit stark abnehmender Tendenz - bei Bungalows angelegt und natürlich bei Garagen und Carports. Bei Flachdächern erfolgt keine Dacheindeckung mit Dachpfannen, vielmehr wird die Dachfläche mit Dachbahnen oder mit Metallblechen regenfest gemacht. Konstruktiv wird beim Flachdach unterschieden zwischen Kaltdach, Warmdach und Umkehrdach. Mit Dachbahnen abgedichtete Flachdächer werden auch heute noch, wenn auch mit stark abnehmender Tendenz, mit Rollkies belegt. Stark steigend, bei Gewerbebauten jedoch oftmals auch baubehördlich vorgeschrieben, ist die Anlage einer Dachbegrünung. Dadurch wird das Flachdach zum Gründach. Gründächer sind eine sinnvolle Alternative gegen die zunehmende Verdichtung des Bodens. Flachdächer sind im übrigen keineswegs eben, sie müssen ein Gefälle von mindestens 3 % aufweisen, damit das Regenwasser über den Dachgully oder die Dachrinnen abfließen kann.
Pultdach
Gefälledach, das wie ein Pultdeckel auf dem Baukörper liegt. Das Pultdach ist die einfachste Dachform überhaupt. Mit nur einen schrägen Dachfläche ist es kostengünstig herzustellen. Im Mittelmeerraum ist das Pultdach die häufigste Dachform. Seit einiger Zeit erfreut es sich auch hierzulande zunehmender Beliebtheit. Die Dachfläche von Pultdächern liegt meist zur Wetterseite hin, um Wind, Regen und Schnee abzuschirmen. An der Sonnenseite lässt das Haus Raum für große Lichtflächen.
Preisdetails für Uffenheim
Schlüsselfertig ab
349.936 €
Ausbauhaus ab214.400 €
ab 1.053,45 €
Dieser Preis ist ein Beispiel für den Anfang, ein Berater kann Ihnen ein detailliertes Angebot erstellen, das Ihren Bedürfnissen entspricht.
Möchten Sie bei Ihrem Projekt Geld sparen?
Durch einen Angebotsvergleich mit Fertighaus.de können Sie bis zu 20 % Ihrer Baukosten sparen.
Uffenheim - Hilfreiche Fragen & Antworten
Mit einem Quadratmeterpreis von rund 2.200 Euro für die schlüsselfertige Variante ordnet sich dieses Modell in ein attraktives Segment ein. Besonders hervorzuheben ist, dass bereits eine Doppelgarage sowie moderne Heiztechnik inklusive Wärmepumpe enthalten sind. Wir unterstützen Sie gerne dabei, ein detailliertes Angebot für Ihre individuelle Planung über unser Portal anzufordern.
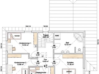
Das klassische Walmdach mit einer Neigung von 25 Grad verleiht dem Haus eine zeitlose Eleganz. Da die Stadtvilla über zwei Vollgeschosse verfügt, profitieren Sie im Obergeschoss von voller Raumhöhe ohne einschränkende Dachschrägen. Dies ermöglicht eine optimale Stellfläche für hohe Möbel und sorgt für ein großzügiges, luftiges Wohngefühl auf beiden Etagen.
Basierend auf der Wohnfläche von rund 160 m² und der integrierten Doppelgarage empfehlen wir eine Grundstücksgröße ab etwa 400 m². Diese Fläche bietet ausreichend Platz für das Gebäude, die Zufahrt sowie eine angemessene Gartenfläche. So bleibt trotz der beachtlichen zehn Zimmer genügend Freiraum für Ihre persönlichen Gestaltungswünsche im Außenbereich Ihres neuen Eigenheims.
Das Haus kann in verschiedenen Standards wie Effizienzhaus 40, 40 Plus oder 55 realisiert werden. Dank des herstellertypischen Klima-Aktiv-Konzepts kommen hochmoderne Belüftungssysteme und alternative Heiztechniken zum Einsatz. Diese Bauweise schont nicht nur die Umwelt, sondern reduziert auch langfristig Ihre Energiekosten durch eine hervorragende Wärmedämmung der gesamten Gebäudehülle.
Über den Anbieter Albert Haus

Bewertungen
0
(0)

Bewertungen
0
0 BewertungenKeine
Ähnliche Häuser Für Uffenheim