

















Solitaire Generationenhäuser von SCHWABENHAUS
Ab 463.070 €
Bewertungen von SCHWABENHAUS
4,0
(271)
Wohnfläche
182 m²
Ausbaustufe
Schlüsselfertig
Bauweise
Fertighaus
Etagen
2
Energiestandard
Effizienzhaus 40
Dachform
Satteldach
Hausart
Zweifamilienhaus
Beschreibung
Solitaire Generationenhäuser – Gemeinsam wohnen, unabhängig leben
Mit den Solitaire Generationenhäuser von Schwabenhaus entscheiden Sie sich für ein Hauskonzept, das das Miteinander neu denkt. Ob Mehrgenerationenwohnen, gemeinsames Bauen mit Freunden oder Leben mit den Eltern unter einem Dach – die Solitaire Generationenhäuser bieten durchdachte Grundrisse für individuelle Lebensmodelle mit einem Maximum an Privatsphäre und Flexibilität.
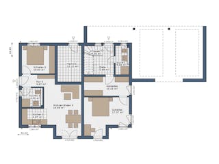
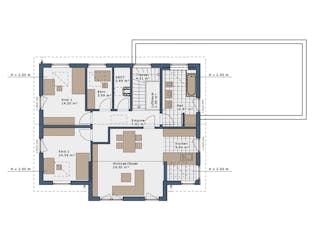
Zur Wahl stehen verschiedene Hausgrößen und -konzepte: mit einer klassischen Hauptwohnung und separater Einliegerwohnung im Erdgeschoss, mit zwei gleichwertigen Wohneinheiten übereinander oder mit zwei vollständig getrennten Bereichen auf Erd- und Obergeschoss – jeweils mit eigenem Zugang, aber unter einem Dach.
So wohnt jede Partei für sich – und trotzdem zusammen.
Moderne Architektur, flexible Grundrisse und hochwertige Ausstattung machen jedes Solitaire Generationenhaus zu einem zukunftsfähigen Zuhause, das sich mit dem Leben verändert.
Für wen sind die Solitaire Generationenhäuser gemacht?
Für alle, die das Leben gemeinsam gestalten wollen – mit den Großeltern, den erwachsenen Kindern oder einer zweiten Familie. Für Menschen, die ihre Zukunft planen und gleichzeitig Raum für Unabhängigkeit schaffen möchten. Für Bauherren, die mehr als ein Zuhause suchen: ein durchdachtes Wohnmodell mit Potenzial.
Preis-Information: Preise beziehen sich auf das zugrundeliegende Basishaus Solitaire-G-182 E2 in der Ausbau-Stufe "Fast-Vollendet", Effizienzhaus-55, inkl. Bodenplatte, inkl. All-Inklusive-Leistungspaket, Bilder und Abbildungen können aufpreispflichtige Extras zeigen. Preislisten Stand 03/24
Sie haben Interesse?
Laden Sie sich jetzt Ihr kostenloses Exposé zu diesem Haus herunter:
Merkmale
Energiestandard und Förderung
Energiestandard
Effizienzhaus 40
Effizienzhaus 40 Plus
Ein Effizienzhaus 40 Plus verbraucht im Vergleich zum Referenzhaus 100 > 60 % weniger Energie. Sie müssen für den Hausbau mit Mehrkosten von ~ 13,5 % rechnen, die sich aber mittelfristig auszahlen. Es verfügt im Vergleich zum Effizienzhaus 40 über weitere Komponenten, wie beispielsweise eine Lüftungsanlage mit Wärmerückgewinnung, eine Anlage, mit der auf Basis erneuerbarer Energien Strom erzeugt werden kann und ein Batteriespeichersystem, mit dem überschüssige Energie eingespart werden kann.
Effizienzhaus 40
Seit dem 1. Juli 2010 gibt es neben dem Effizienzhaus 55 und dem Effizienzhaus 70 noch das Effizienzhaus 40. Das Effizienzhaus 40 darf nur 40 Prozent der nach Energieeinsparverordnung 2009 (EnEV) gültigen Höchstwerte hinsichtlich Jahres-Primärenergiebedarf und Transmissionswärmeverlust erreichen. Neben der Einsparung von 60 Prozent beim Jahres-Primärenergiebedarfs sind auch beim Transmissionswärmeverlust 45 Prozent einzusparen. Der maximale Jahresprimärenergiebedarf beträgt 30 kWh/m². Ein KfW-Effizienzhaus 40 Haus ist luftdicht und nutzt regenerative Energien, häufig eine Kombination aus Holzpellets, Solaranlage und Lüftungsanlage mit Wärmerückgewinnung.
Effizienzhaus 55
Ein Effizienzhaus 55 verbraucht im Vergleich zum Referenzhaus 100 45 % weniger Energie. Sie müssen für den Hausbau mit Mehrkosten von ~ 7,5 % rechnen, die sich aber mittelfristig auszahlen. Diese Effizienzklasse gilt heutzutage als Standard für alle neu gebauten Häuser.
Dach
Dachform
Satteldach
Satteldach
Das Satteldach liegt in Form eines Dreiecks auf dem Baukörper und schließt entweder mit seinem First parallel zu den beiden Giebeln ab oder es ragt noch über die Giebel hinaus. Satteldächer werden als Pfettendach oder als Sparrendach ausgebildet. Üblich sind Dachneigungen ab etwa 30˚ (flaches Satteldach) bis über 60˚ (altdeutsches Dach). Weit verbreitet sind Satteldächer mit etwa 38˚ bis 45˚ Neigung. Diese bieten genug Raum für einen Ausbau des Dachgeschosses.
Zeltdach
Seltene Dachform, die nur auf einem quadratischen oder annähernd quadratischen Grundriß errichtet werden kann. Zelt- oder Pyramidendächer findet man vor allem auf Türmen und Kirchtürmen.
Walmdach
Sehr häufig zu sehende Dachform, dem Satteldach verwandt. Im Gegensatz zu diesem schließt der First jedoch nicht mit den beiden Giebelwänden ab, sondern ist beidseitig zurückgebaut, das heißt abgeschrägt sind. Dabei unterscheidet man noch Zwergwalmdach, Krüppelwalmdach und Fußwalmdach. Da bei diesen Varianten nicht die komplette Seite abgewalmt ist, spricht man auch häufig von Vollwalmdach, wenn der Walm so ausgebildet ist, wie auf der Zeichnung. Weitere Bezeichnungen für Walmdach sind Walbendach, Holländisches Dach, Schopfdach oder Haubendach.
Krüppelwalmdach
Besonders auf nord- und niederdeutschen Gehöften gebräuchliche Variante des Walmdachs. Entspricht einem Walmdach mit hochgesetzter Traufhöhe am Giebel. In manchen Gegenden wird es auch als Schopfwalmdach bezeichnet.
Flachdach
Flachdächer sind allgegenwärtig und dominieren im Gewerbebau, im Bereich des privaten Hausbaus werden sie - mit stark abnehmender Tendenz - bei Bungalows angelegt und natürlich bei Garagen und Carports. Bei Flachdächern erfolgt keine Dacheindeckung mit Dachpfannen, vielmehr wird die Dachfläche mit Dachbahnen oder mit Metallblechen regenfest gemacht. Konstruktiv wird beim Flachdach unterschieden zwischen Kaltdach, Warmdach und Umkehrdach. Mit Dachbahnen abgedichtete Flachdächer werden auch heute noch, wenn auch mit stark abnehmender Tendenz, mit Rollkies belegt. Stark steigend, bei Gewerbebauten jedoch oftmals auch baubehördlich vorgeschrieben, ist die Anlage einer Dachbegrünung. Dadurch wird das Flachdach zum Gründach. Gründächer sind eine sinnvolle Alternative gegen die zunehmende Verdichtung des Bodens. Flachdächer sind im übrigen keineswegs eben, sie müssen ein Gefälle von mindestens 3 % aufweisen, damit das Regenwasser über den Dachgully oder die Dachrinnen abfließen kann.
Pultdach
Gefälledach, das wie ein Pultdeckel auf dem Baukörper liegt. Das Pultdach ist die einfachste Dachform überhaupt. Mit nur einen schrägen Dachfläche ist es kostengünstig herzustellen. Im Mittelmeerraum ist das Pultdach die häufigste Dachform. Seit einiger Zeit erfreut es sich auch hierzulande zunehmender Beliebtheit. Die Dachfläche von Pultdächern liegt meist zur Wetterseite hin, um Wind, Regen und Schnee abzuschirmen. An der Sonnenseite lässt das Haus Raum für große Lichtflächen.
Preisdetailsfür Solitaire Generationenhäuser
Schlüsselfertig ab
463.070 €
ab 1.394,03 €
Dieser Preis ist ein Beispiel für den Anfang, ein Berater kann Ihnen ein detailliertes Angebot erstellen, das Ihren Bedürfnissen entspricht.
Möchten Sie bei Ihrem Projekt Geld sparen?
Durch einen Angebotsvergleich mit Fertighaus.de können Sie bis zu 20 % Ihrer Baukosten sparen.
Solitaire Generationenhäuser - Hilfreiche Fragen & Antworten
Bei einer Wohnfläche von 182 m² und dem genannten Preis liegt der Quadratmeterpreis bei rund 2.500 €. Damit ordnet sich dieses Zweifamilienhaus im mittelpreisigen Segment für schlüsselfertige Häuser ein. Wir helfen Ihnen gerne dabei, ein detailliertes Angebot über uns anzufordern, um die exakten Kosten für Ihr individuelles Bauvorhaben zu ermitteln.
Dieses Modell überzeugt durch ein klassisches Satteldach und ein hochflexibles Raumkonzept. Es ist speziell darauf ausgelegt, zwei Parteien unter einem Dach zu vereinen, wobei maximale Privatsphäre gewahrt bleibt. Ob separate Einliegerwohnung oder zwei gleichwertige Einheiten – die Architektur passt sich Ihren Lebensmodellen an. Wir beraten Sie gern zu den verschiedenen individuellen Gestaltungsmöglichkeiten.
Für dieses Zweifamilienhaus empfehlen wir eine Grundstücksgröße von mindestens 450 m². Da das Haus über zwei Etagen verfügt, bleibt die Grundfläche mit geschätzten 91 m² recht kompakt. So bleibt ausreichend Raum für Gartenflächen und die notwendigen Stellplätze. Gerne prüfen wir gemeinsam mit Ihnen, ob Ihr Wunschgrundstück für dieses spezielle Modell optimal geeignet ist.
In dieser Stufe sind Leistungen wie die Bodenplatte und das All-Inklusive-Paket bereits enthalten. Das Haus wird nahezu schlüsselfertig übergeben, was Ihnen hohe Planungssicherheit bietet. Diese Option ist ideal für Familien, die ein bezugsfertiges Heim wünschen, aber bei Details wie Wandbelägen selbst Hand anlegen möchten. Dies bietet eine gute Balance zwischen Komfort und Eigenleistung.
Über den Anbieter SCHWABENHAUS
Zum Anbieterprofil
Bewertungen
4,0
(271)

Bewertungen
4,0
271 BewertungenGut
SCHWABENHAUS in Zahlen
Gründungsjahr
1966
Häuser im Angebot
5
Häuser pro Jahr
450
Mitarbeiter
400
Bewertungen von SCHWABENHAUS
Ein sehr gutes und ausführliches erst Gespräc...
Ein sehr gutes und ausführliches erst Gespräch.
01 Nov. 2025Nevsada H.
Sehr netter Berater
Sehr netter Berater
30 Aug. 2025Rebekka H.
Sehr gute Beratung und Service !
Sehr gute Beratung und Service !
28 Juni 2025Anja V.
Leistungsspektrum
Finanzierungsberatung
Preisgarantie
Bauzeit Garantie
Individuelle Planung
Blower Door Test
Persönliche Beratung für Ihre individuellen Wünsche
Finden Sie jetzt Ihren Ansprechpartner
SCHWABENHAUS
Auszeichnungen, Zertifikate & Mitgliedschaften


















Ähnliche Häuser Für Solitaire Generationenhäuser