








Haus Wagner von Naturholzhaus Bayern
Preis auf Anfrage
Bewertungen von Naturholzhaus Bayern
0
(0)
Wohnfläche
177 m²
Zimmer
5
Ausbaustufe
Schlüsselfertig
Bauweise
Fertighaus
Etagen
2
Energiestandard
Effizienzhaus 40 Plus
Dachform
Flachdach
Hausart
Einfamilienhaus
Beschreibung
Idyllisch modern. Drinnen und Draussen zuhause.
Der wunderschöne Rundblick über die Landschaft wird an diesem Hanggrundstück besonders gut genutzt. Die Baufamilie wünschte sich ein modernes, klar gegliedertes Wohnhaus mit persönlichem architektonischen Ausdruck und hohem Wohnwert. Eingang und Garage liegen auf der Nebenseite des Gebäudes. Der Wohnbereich öffnet sich zum Garten hin. Der wunschön angelegte Koi-Teich, natürliche Elemente wie große Findlinge, Schilfgras und ausgesuchten Bäumen wirekn wie zufällig angeordnet. Die großen Fenster des Hauses reichen bis zum Boden, erweitern damit diesen Bereich optisch zum Garten hin und geben den Blick darauf frei.
Sie haben Interesse?
Laden Sie sich jetzt Ihr kostenloses Exposé zu diesem Haus herunter:
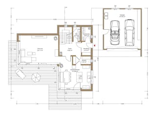
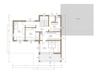
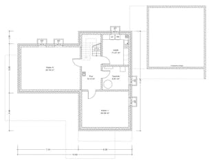
Grundrissfür Haus Wagner
Außenmaße
Länge: 13,11 m
Breite: 13,62 m
Grundrisse
Der Grundriss entspricht nicht Ihren Vorstellungen?
Passen Sie den Grundriss an Ihre persönlichen Bedürfnisse an und besprechen Sie Ihren individuellen Plan mit einem Bauberater des Anbieters.
Merkmale
Energiestandard und Förderung
Energiestandard
Effizienzhaus 40 Plus
Wärmedurchgangskoeffizient
0,12 (U-Wert)
Effizienzhaus 40 Plus
Ein Effizienzhaus 40 Plus verbraucht im Vergleich zum Referenzhaus 100 > 60 % weniger Energie. Sie müssen für den Hausbau mit Mehrkosten von ~ 13,5 % rechnen, die sich aber mittelfristig auszahlen. Es verfügt im Vergleich zum Effizienzhaus 40 über weitere Komponenten, wie beispielsweise eine Lüftungsanlage mit Wärmerückgewinnung, eine Anlage, mit der auf Basis erneuerbarer Energien Strom erzeugt werden kann und ein Batteriespeichersystem, mit dem überschüssige Energie eingespart werden kann.
Effizienzhaus 40
Seit dem 1. Juli 2010 gibt es neben dem Effizienzhaus 55 und dem Effizienzhaus 70 noch das Effizienzhaus 40. Das Effizienzhaus 40 darf nur 40 Prozent der nach Energieeinsparverordnung 2009 (EnEV) gültigen Höchstwerte hinsichtlich Jahres-Primärenergiebedarf und Transmissionswärmeverlust erreichen. Neben der Einsparung von 60 Prozent beim Jahres-Primärenergiebedarfs sind auch beim Transmissionswärmeverlust 45 Prozent einzusparen. Der maximale Jahresprimärenergiebedarf beträgt 30 kWh/m². Ein KfW-Effizienzhaus 40 Haus ist luftdicht und nutzt regenerative Energien, häufig eine Kombination aus Holzpellets, Solaranlage und Lüftungsanlage mit Wärmerückgewinnung.
Effizienzhaus 55
Ein Effizienzhaus 55 verbraucht im Vergleich zum Referenzhaus 100 45 % weniger Energie. Sie müssen für den Hausbau mit Mehrkosten von ~ 7,5 % rechnen, die sich aber mittelfristig auszahlen. Diese Effizienzklasse gilt heutzutage als Standard für alle neu gebauten Häuser.
Dach
Dachform
Flachdach
Satteldach
Das Satteldach liegt in Form eines Dreiecks auf dem Baukörper und schließt entweder mit seinem First parallel zu den beiden Giebeln ab oder es ragt noch über die Giebel hinaus. Satteldächer werden als Pfettendach oder als Sparrendach ausgebildet. Üblich sind Dachneigungen ab etwa 30˚ (flaches Satteldach) bis über 60˚ (altdeutsches Dach). Weit verbreitet sind Satteldächer mit etwa 38˚ bis 45˚ Neigung. Diese bieten genug Raum für einen Ausbau des Dachgeschosses.
Zeltdach
Seltene Dachform, die nur auf einem quadratischen oder annähernd quadratischen Grundriß errichtet werden kann. Zelt- oder Pyramidendächer findet man vor allem auf Türmen und Kirchtürmen.
Walmdach
Sehr häufig zu sehende Dachform, dem Satteldach verwandt. Im Gegensatz zu diesem schließt der First jedoch nicht mit den beiden Giebelwänden ab, sondern ist beidseitig zurückgebaut, das heißt abgeschrägt sind. Dabei unterscheidet man noch Zwergwalmdach, Krüppelwalmdach und Fußwalmdach. Da bei diesen Varianten nicht die komplette Seite abgewalmt ist, spricht man auch häufig von Vollwalmdach, wenn der Walm so ausgebildet ist, wie auf der Zeichnung. Weitere Bezeichnungen für Walmdach sind Walbendach, Holländisches Dach, Schopfdach oder Haubendach.
Krüppelwalmdach
Besonders auf nord- und niederdeutschen Gehöften gebräuchliche Variante des Walmdachs. Entspricht einem Walmdach mit hochgesetzter Traufhöhe am Giebel. In manchen Gegenden wird es auch als Schopfwalmdach bezeichnet.
Flachdach
Flachdächer sind allgegenwärtig und dominieren im Gewerbebau, im Bereich des privaten Hausbaus werden sie - mit stark abnehmender Tendenz - bei Bungalows angelegt und natürlich bei Garagen und Carports. Bei Flachdächern erfolgt keine Dacheindeckung mit Dachpfannen, vielmehr wird die Dachfläche mit Dachbahnen oder mit Metallblechen regenfest gemacht. Konstruktiv wird beim Flachdach unterschieden zwischen Kaltdach, Warmdach und Umkehrdach. Mit Dachbahnen abgedichtete Flachdächer werden auch heute noch, wenn auch mit stark abnehmender Tendenz, mit Rollkies belegt. Stark steigend, bei Gewerbebauten jedoch oftmals auch baubehördlich vorgeschrieben, ist die Anlage einer Dachbegrünung. Dadurch wird das Flachdach zum Gründach. Gründächer sind eine sinnvolle Alternative gegen die zunehmende Verdichtung des Bodens. Flachdächer sind im übrigen keineswegs eben, sie müssen ein Gefälle von mindestens 3 % aufweisen, damit das Regenwasser über den Dachgully oder die Dachrinnen abfließen kann.
Pultdach
Gefälledach, das wie ein Pultdeckel auf dem Baukörper liegt. Das Pultdach ist die einfachste Dachform überhaupt. Mit nur einen schrägen Dachfläche ist es kostengünstig herzustellen. Im Mittelmeerraum ist das Pultdach die häufigste Dachform. Seit einiger Zeit erfreut es sich auch hierzulande zunehmender Beliebtheit. Die Dachfläche von Pultdächern liegt meist zur Wetterseite hin, um Wind, Regen und Schnee abzuschirmen. An der Sonnenseite lässt das Haus Raum für große Lichtflächen.
Preisdetails für Haus Wagner
Schlüsselfertig ab
Preis auf Anfrage
Dieser Preis ist ein Beispiel für den Anfang, ein Berater kann Ihnen ein detailliertes Angebot erstellen, das Ihren Bedürfnissen entspricht.
Möchten Sie bei Ihrem Projekt Geld sparen?
Durch einen Angebotsvergleich mit Fertighaus.de können Sie bis zu 20 % Ihrer Baukosten sparen.
Haus Wagner - Hilfreiche Fragen & Antworten
Da Naturholzhaus Bayern jedes Projekt individuell plant, variiert der Preis je nach Ausstattung. Bei einem hochwertigen Holzhaus dieser Größe im Effizienzhaus 40 Plus Standard liegen die Kosten üblicherweise im gehobenen Segment. Gerne können Sie über uns ein detailliertes Angebot anfordern, um eine präzise Kalkulation für Ihr Bauvorhaben zu erhalten.
Das Haus Wagner ist als modernes Cubushaus im Bauhaus-Stil gestaltet. Es zeichnet sich durch klare Linien, ein elegantes Flachdach und großzügige, bodentiefe Glasflächen aus. Diese Architektur hebt die Grenze zwischen Innen- und Außenbereich auf und sorgt für lichtdurchflutete Räume, die ganz hervorragend mit der umgebenden Natur und dem Garten harmonieren.
Für dieses großzügige Einfamilienhaus empfehlen wir eine Grundstücksfläche von mindestens 700 m². Basierend auf der Grundfläche von etwa 179 m² entfallen rund 50 m² auf Stellplätze. Für die Garten- und Abstandsflächen sollten Sie etwa 460 m² einplanen, damit die moderne Architektur und die Glasfronten auf Ihrem Grundstück optimal zur Geltung kommen.
Nachhaltigkeit steht hier im Fokus. Das Haus wird in diffusionsoffener Holzbauweise aus Brettschichtholz gefertigt, das CO2 langfristig bindet. Durch den Einsatz natürlicher Dämmstoffe und den hohen Effizienzhaus-Standard 40 Plus minimieren wir gemeinsam den ökologischen Fußabdruck. Das sorgt nicht nur für aktiven Klimaschutz, sondern auch für ein gesundes, schadstoffarmes Wohnklima.
Über den Anbieter Naturholzhaus Bayern
Zum Anbieterprofil
Bewertungen
0
(0)

Bewertungen
0
0 BewertungenKeine
Naturholzhaus Bayern in Zahlen
Gründungsjahr
1994
Häuser im Angebot
10
Häuser pro Jahr
30
Häuser gesamt
750
Mitarbeiter
40
Leistungsspektrum
Finanzierungsberatung
Preisgarantie
Bauzeit Garantie
Individuelle Planung
Blower Door Test
Persönliche Beratung für Ihre individuellen Wünsche
Finden Sie jetzt Ihren Ansprechpartner
Naturholzhaus Bayern
Weitere Häuser
Ähnliche Häuser Für Haus Wagner