





ELK HAUS 189 Walmdach von ELK Fertighaus
Ab 296.940 €
Bewertungen von ELK Fertighaus
4,3
(6)
Wohnfläche
180 m²
Zimmer
5
Ausbaustufe
Schlüsselfertig
Bauweise
Fertighaus
Etagen
2
Energiestandard
Effizienzhaus 40
Dachform
Walmdach
Hausart
Einfamilienhaus
Beschreibung
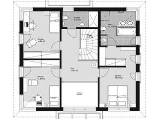
Unterschiedliche Fassadengestaltungen und Fensterformate sowie die Eingangs- und Terrassenüber- dachung verleihen dem ELK Haus 189 schon von außen eine besondere Wirkung. Dank drei verschiedener Dachformen lässt es sich zudem einfach an den persönlichen Geschmack anpassen. Im Erdgeschoss nimmt der großzügige Wohn-, Ess- und Kochbereich die Hälfte der quadratischen Grundfläche ein. Oben befindet sich neben zwei Kinderzimmern das große Schlafzimmer mit einem eigenen, durch die Ankleide begehbaren Wellness-Badezimmer.
Angaben zum Preis „Schlüsselfertig“:
Merkmale
- Erker
- Gästezimmer
- Kamin
Sie haben Interesse?
Laden Sie sich jetzt Ihr kostenloses Exposé zu diesem Haus herunter:
Grundrissfür ELK HAUS 189 Walmdach
Außenmaße
Länge: 11,45 m
Breite: 9,9 m
Grundrisse
Der Grundriss entspricht nicht Ihren Vorstellungen?
Passen Sie den Grundriss an Ihre persönlichen Bedürfnisse an und besprechen Sie Ihren individuellen Plan mit einem Bauberater des Anbieters.
Merkmale
Energiestandard und Förderung
Energiestandard
Effizienzhaus 40
Effizienzhaus 40 Plus
Effizienzhaus 55
Wärmedurchgangskoeffizient
0,12 (U-Wert)
Effizienzhaus 40 Plus
Ein Effizienzhaus 40 Plus verbraucht im Vergleich zum Referenzhaus 100 > 60 % weniger Energie. Sie müssen für den Hausbau mit Mehrkosten von ~ 13,5 % rechnen, die sich aber mittelfristig auszahlen. Es verfügt im Vergleich zum Effizienzhaus 40 über weitere Komponenten, wie beispielsweise eine Lüftungsanlage mit Wärmerückgewinnung, eine Anlage, mit der auf Basis erneuerbarer Energien Strom erzeugt werden kann und ein Batteriespeichersystem, mit dem überschüssige Energie eingespart werden kann.
Effizienzhaus 40
Seit dem 1. Juli 2010 gibt es neben dem Effizienzhaus 55 und dem Effizienzhaus 70 noch das Effizienzhaus 40. Das Effizienzhaus 40 darf nur 40 Prozent der nach Energieeinsparverordnung 2009 (EnEV) gültigen Höchstwerte hinsichtlich Jahres-Primärenergiebedarf und Transmissionswärmeverlust erreichen. Neben der Einsparung von 60 Prozent beim Jahres-Primärenergiebedarfs sind auch beim Transmissionswärmeverlust 45 Prozent einzusparen. Der maximale Jahresprimärenergiebedarf beträgt 30 kWh/m². Ein KfW-Effizienzhaus 40 Haus ist luftdicht und nutzt regenerative Energien, häufig eine Kombination aus Holzpellets, Solaranlage und Lüftungsanlage mit Wärmerückgewinnung.
Effizienzhaus 55
Ein Effizienzhaus 55 verbraucht im Vergleich zum Referenzhaus 100 45 % weniger Energie. Sie müssen für den Hausbau mit Mehrkosten von ~ 7,5 % rechnen, die sich aber mittelfristig auszahlen. Diese Effizienzklasse gilt heutzutage als Standard für alle neu gebauten Häuser.
Dach
Dachform
Walmdach
Dachneigung
25°
Satteldach
Das Satteldach liegt in Form eines Dreiecks auf dem Baukörper und schließt entweder mit seinem First parallel zu den beiden Giebeln ab oder es ragt noch über die Giebel hinaus. Satteldächer werden als Pfettendach oder als Sparrendach ausgebildet. Üblich sind Dachneigungen ab etwa 30˚ (flaches Satteldach) bis über 60˚ (altdeutsches Dach). Weit verbreitet sind Satteldächer mit etwa 38˚ bis 45˚ Neigung. Diese bieten genug Raum für einen Ausbau des Dachgeschosses.
Zeltdach
Seltene Dachform, die nur auf einem quadratischen oder annähernd quadratischen Grundriß errichtet werden kann. Zelt- oder Pyramidendächer findet man vor allem auf Türmen und Kirchtürmen.
Walmdach
Sehr häufig zu sehende Dachform, dem Satteldach verwandt. Im Gegensatz zu diesem schließt der First jedoch nicht mit den beiden Giebelwänden ab, sondern ist beidseitig zurückgebaut, das heißt abgeschrägt sind. Dabei unterscheidet man noch Zwergwalmdach, Krüppelwalmdach und Fußwalmdach. Da bei diesen Varianten nicht die komplette Seite abgewalmt ist, spricht man auch häufig von Vollwalmdach, wenn der Walm so ausgebildet ist, wie auf der Zeichnung. Weitere Bezeichnungen für Walmdach sind Walbendach, Holländisches Dach, Schopfdach oder Haubendach.
Krüppelwalmdach
Besonders auf nord- und niederdeutschen Gehöften gebräuchliche Variante des Walmdachs. Entspricht einem Walmdach mit hochgesetzter Traufhöhe am Giebel. In manchen Gegenden wird es auch als Schopfwalmdach bezeichnet.
Flachdach
Flachdächer sind allgegenwärtig und dominieren im Gewerbebau, im Bereich des privaten Hausbaus werden sie - mit stark abnehmender Tendenz - bei Bungalows angelegt und natürlich bei Garagen und Carports. Bei Flachdächern erfolgt keine Dacheindeckung mit Dachpfannen, vielmehr wird die Dachfläche mit Dachbahnen oder mit Metallblechen regenfest gemacht. Konstruktiv wird beim Flachdach unterschieden zwischen Kaltdach, Warmdach und Umkehrdach. Mit Dachbahnen abgedichtete Flachdächer werden auch heute noch, wenn auch mit stark abnehmender Tendenz, mit Rollkies belegt. Stark steigend, bei Gewerbebauten jedoch oftmals auch baubehördlich vorgeschrieben, ist die Anlage einer Dachbegrünung. Dadurch wird das Flachdach zum Gründach. Gründächer sind eine sinnvolle Alternative gegen die zunehmende Verdichtung des Bodens. Flachdächer sind im übrigen keineswegs eben, sie müssen ein Gefälle von mindestens 3 % aufweisen, damit das Regenwasser über den Dachgully oder die Dachrinnen abfließen kann.
Pultdach
Gefälledach, das wie ein Pultdeckel auf dem Baukörper liegt. Das Pultdach ist die einfachste Dachform überhaupt. Mit nur einen schrägen Dachfläche ist es kostengünstig herzustellen. Im Mittelmeerraum ist das Pultdach die häufigste Dachform. Seit einiger Zeit erfreut es sich auch hierzulande zunehmender Beliebtheit. Die Dachfläche von Pultdächern liegt meist zur Wetterseite hin, um Wind, Regen und Schnee abzuschirmen. An der Sonnenseite lässt das Haus Raum für große Lichtflächen.
Preisdetails für ELK HAUS 189 Walmdach
Schlüsselfertig ab
296.940 €
ab 893,91 €
Dieser Preis ist ein Beispiel für den Anfang, ein Berater kann Ihnen ein detailliertes Angebot erstellen, das Ihren Bedürfnissen entspricht.
Möchten Sie bei Ihrem Projekt Geld sparen?
Durch einen Angebotsvergleich mit Fertighaus.de können Sie bis zu 20 % Ihrer Baukosten sparen.
ELK HAUS 189 Walmdach - Hilfreiche Fragen & Antworten
Für dieses schlüsselfertige Modell liegt der Quadratmeterpreis bei rund 1.600 Euro. Damit ordnet sich das Haus in ein sehr günstiges Preissegment ein. Beachten Sie jedoch, dass individuelle Anpassungen und Sonderausstattungen den Endpreis beeinflussen können. Gerne unterstützen wir Sie dabei, ein präzises Angebot für Ihr konkretes Bauvorhaben über uns anzufordern.
Das Haus besticht durch sein klassisches Walmdach mit einer Neigung von 25 Grad. Diese Dachform verleiht der Stadtvilla eine zeitlose Eleganz. Besonders hervorzuheben ist die flexible Fassadengestaltung. Große Fensterformate und überdachte Eingänge sorgen zudem für eine moderne Optik. Wir beraten Sie gerne zu den verschiedenen architektonischen Möglichkeiten, um das Design Ihren Wünschen anzupassen.
Für dieses großzügige Einfamilienhaus empfehlen wir eine Grundstücksgröße von mindestens 500 m². Bei einer Grundfläche von etwa 113 m² bleibt so genügend Raum für Stellplätze und einen schönen Garten. Wir berechnen für Sie gerne die genauen Abstandsflächen, damit Ihr Bauvorhaben optimal auf dem gewählten Bauland realisiert werden kann.
ELK setzt konsequent auf ökologische Holztafelbauweise und verwendet Holz aus nachhaltig bewirtschafteten, regionalen Wäldern. In Kombination mit modernster Wärmepumpentechnik und kontrollierter Belüftung erreichen die Häuser hohe Effizienzstandards wie den KfW 40 Standard. Dies schont nicht nur die Umwelt, sondern reduziert auch Ihre langfristigen Heizkosten spürbar. Wir finden das Engagement für gesundes Wohnklima besonders überzeugend.
Über den Anbieter ELK Fertighaus

Bewertungen
4,3
(6)

Bewertungen
4,3
6 BewertungenHervorragend
ELK Fertighaus in Zahlen
Gründungsjahr
1959
Häuser gesamt
>30.000
Mitarbeiter
1000+
Bewertungen von ELK Fertighaus
Qualität und Beratung
Beratung, Qualität und Preis/ Leistung sind sehr gut
16 Jan. 2025Thomas H.
Sehr kompetente Beratung
Herrn Spitta haben wir als äußerst kompetent und freundlich erlebt. Er versteht es, mit wenigen und verständlichen Worten auf den Punkt genau zu beraten ohne dabei das Gefühl zu vermitteln, er möchte um jeden Preis etwas verkaufen. Wir haben uns in unserem Beratungsgespräch, das wir übrigens spontan und ohne jede Terminvereinbarung durchgeführt haben, rundum wohl gefühlt und waren begeistert von der Präsentation des Produkts ELK-Fertighaus. Da wir bereits im Vorfeld einen sehr individuellen Grundriss für unser Traumhaus erstellt hatten und dies in der weiteren Planung mit der Firma ELK abgestimmt werden muss, konnten im Erstkontakt natürlich nicht alle Details bis ins Letzte besprochen werden. Wir sind jedoch zuversichtlich und freuen uns auf die weitere Zusammenarbeit mit Herrn Spitta.
04 Jan. 2025Horst B.
Das zweite Beratungsgespräch, einen Tag späte...
Das zweite Beratungsgespräch, einen Tag später wiederum im Fertighauszentrum in Mannheim, hatten wir mit Herrn Patrick Diemer von ELK Haus. Wir waren wiederum äußerst positiv überrascht. Er war ebenfalls sehr kompetent und hat uns sehr gut beraten. Wir haben auch neue Aspekte kennen gelernt und auch schon eine Preiskalkulation durchgeführt, die für eine Übersicht bei der Auswahl sehr hilfreich sein wird. Wir könnten uns auch sehr gut vorstellen mit ihm ein Haus zu bauen. Er unterstützt uns auch bei Bedarf bei der Grundstückswahl. Wir bleiben weiterhin in Kontakt und sind sehr zufrieden.
30 Nov. 2024Herbert R.
Auszeichnungen, Zertifikate & Mitgliedschaften







Ähnliche Häuser Für ELK HAUS 189 Walmdach