





Ausstellungshaus Regensburg von WeberHaus
Ab 366.000 €
Bewertungen von WeberHaus
4,0
(48)
Wohnfläche
158 m²
Zimmer
8
Ausbaustufe
Schlüsselfertig
Bauweise
Fertighaus
Etagen
1,5
Energiestandard
Effizienzhaus 55
Dachform
Satteldach
Hausart
Einfamilienhaus
Beschreibung
Viel Spielraum für Groß und Klein
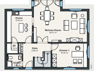
Großzügig und ansprechend präsentiert sich der Eingangsbereich des Hauses. Die Diele bietet ausreichend Platz für eine Garderobe, nebenan befinden sich das Dusch-WC für und ein Zimmer, das als Gästezimmer oder Büro genutzt werden kann. Die große Küche kann über den Wohn-Ess-Bereich und die Diele betreten werden, die angegliederte Speisekammer bietet zusätzlichen Stauraum. Auf rund 38 qm ist im Wohn-Ess-Bereich viel Platz für verschiedene Sitzinseln oder eine weitläufige Sofalandschaft. Das Dachgeschoss überzeugt durch ein geräumiges Schlafzimmer mit Ankleide und zwei weiteren gleichgroßen Zimmern. Ein echtes Plus ist auch das Badezimmer. Über 10 qm sind Garant für Wohlfühlatmosphäre und Wellness.
Angaben zum Preis: gilt für Erdgeschoss und Dachgeschoss, Ausbaustufe "Malerfertig" inklusive wärmegedämmter Bodenplatte, Abbildung zeigt Sonderausstattung. Alle Preisangaben gültig für Deutschland inklusive 19% MwSt. Stand: 01.10.2018
Merkmale
- Kamin
Sie haben Interesse?
Laden Sie sich jetzt Ihr kostenloses Exposé zu diesem Haus herunter:
Grundrissfür Ausstellungshaus Regensburg
Grundrisse
Der Grundriss entspricht nicht Ihren Vorstellungen?
Passen Sie den Grundriss an Ihre persönlichen Bedürfnisse an und besprechen Sie Ihren individuellen Plan mit einem Bauberater des Anbieters.
Merkmale
Energiestandard und Förderung
Energiestandard
Effizienzhaus 40
Effizienzhaus 40 Plus
Effizienzhaus 55
Plusenergiehaus
U-Wert
0,15
Dach
Dachform
Satteldach
Dachneigung
45°
Preisdetails für Ausstellungshaus Regensburg
Schlüsselfertig ab
366.000 €
ab 1.101,81 €
Dieser Preis ist ein Beispiel für den Anfang, ein Berater kann Ihnen ein detailliertes Angebot erstellen, das Ihren Bedürfnissen entspricht.
Möchten Sie bei Ihrem Projekt Geld sparen?
Durch einen Angebotsvergleich mit Fertighaus.de können Sie bis zu 20 % Ihrer Baukosten sparen.
Ausstellungshaus Regensburg - Hilfreiche Fragen & Antworten
Ja, WeberHaus gewährt Ihnen eine solche Sicherheit für Ihr Projekt. Dies schützt Sie vor unvorhersehbaren Preissteigerungen während der Bauphase und sorgt für eine verlässliche Kalkulation. Da die Gesamtkosten individuell von Ihren Wünschen abhängen, können Sie über uns ein konkretes Angebot anfordern, um volle Planungssicherheit für Ihr persönliches Budget zu erhalten.
WeberHaus setzt auf maximale Flexibilität und Individualität. Da jedes Haus nach Ihren persönlichen Vorstellungen geplant wird, sind verschiedenste Stile möglich – von der modernen Stadtvilla bis zum gemütlichen Bungalow. Die ökologische Holzbauweise erlaubt dabei freie Grundrissgestaltungen. Wir unterstützen Sie gerne dabei, die Architektur zu finden, die optimal zu Ihren ästhetischen Voransprüchen und Ihrem Lebensstil passt.
Nachhaltigkeit ist ein Kernaspekt bei WeberHaus. Durch den Einsatz des nachwachsenden Rohstoffs Holz und die innovative ÖvoNatur Therm Wand entstehen hochdämmende Gebäude. Zertifizierungen durch unabhängige Institute belegen zudem die Schadstoffarmut der Materialien. Sie profitieren so von einem wohngesunden Raumklima und niedrigen Energiekosten, während Sie gleichzeitig Ressourcen schonen und einen ökologischen Beitrag für die Zukunft leisten.
Die ideale Grundstücksgröße richtet sich nach der Grundfläche des gewählten Entwurfs sowie den gewünschten Außenanlagen. Neben dem eigentlichen Baukörper sollten Sie ausreichend Platz für Stellplätze, Abstandsflächen und eine Gartenfläche einkalkulieren. Wir helfen Ihnen, den konkreten Flächenbedarf für Ihr Vorhaben einzuschätzen. So stellen wir sicher, dass das Haus harmonisch auf dem Gelände platziert wird und alle baurechtlichen Vorgaben erfüllt.
Über den Anbieter WeberHaus

Bewertungen
4,0
(48)

Bewertungen
4,0
48 BewertungenGut
WeberHaus in Zahlen
Gründungsjahr
1960
Häuser im Angebot
46
Häuser pro Jahr
ca. 720
Häuser gesamt
über 41.000
Mitarbeiter
1.290
Bewertungen von WeberHaus
Unkompliziertes Erstgespräch über Teams. Sehr...
Unkompliziertes Erstgespräch über Teams. Sehr netter Berater, der auch schon langjährige Erfahrungen mit dem Unternehmen hat.
21 März 2026Julia V.
Überblick über Angebot
Ich habe einen Überblick bekommen.
30 Nov. 2025Cornelia J.
Gute Beratung und Unterstützung bei der Planu...
Gute Beratung und Unterstützung bei der Planung. Lange Wartezeit bis zur Hausaufstellung. Bedingungen für die Preisgarantie wurden so vorher nicht kommuniziert.
07 Juni 2025Ramona M.
Leistungsspektrum
Finanzierungsberatung
Preisgarantie
Bauzeit Garantie
Individuelle Planung
Blower Door Test
Ähnliche Häuser Für Ausstellungshaus Regensburg