




Familienhaus Melia von Kern-Haus
Ab 352.900 €
Bewertungen von Kern-Haus
3,9
(82)
Wohnfläche
154 m²
Zimmer
4
Ausbaustufe
Schlüsselfertig
Bauweise
Fertighaus
Etagen
2
Energiestandard
Effizienzhaus 55 EE
Dachform
Satteldach
Hausart
Einfamilienhaus
Beschreibung
Willkommen im persönlichen Wohntraum! Das Familienhaus Melia verspricht offenes Wohnen mit viel Platz für jedes Familienmitglied.
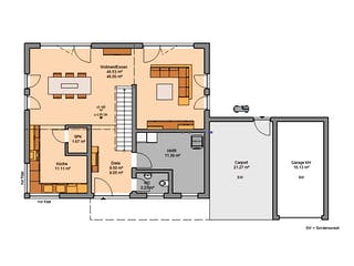
Das Erdgeschoss gestaltet sich sehr einladend, denn die Diele geht direkt in den großzügigen Wohnbereich über. Auf über 55 m² sind hier eine Couchecke, ein Essplatz und eine Küche perfekt angeordnet. Die Küche wird von einer kleinen Speisekammer ergänzt.
Auf der Etage befindet sich ebenfalls der Hauswirtschaftsraum und ein Gäste-WC.
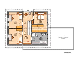
Über eine gerade Treppe gelangen Sie in den großen Flur im Dachgeschoss. Durch die Flachdachgaube ist hier Platz für eine gemütliche Sitzecke vor dem Fenster. Hier befinden sich ebenfalls zwei gleichgroße Kinderzimmer und ein Familienbad. Abgerundet wird diese Etage durch ein Elternschlafzimmer mit Ankleide.
Kern-Haus steht für 40 Jahre Expertise für das massive, energieeffiziente Bauen und realisiert Architektenhäuser in Ziegel, Bims, Porenbeton oder Stahlbeton (DuoTherm). Darüber hinaus setzt der Massivhaushersteller auf Energieeffizienz bei all seinen Häusern, denn bereits im Standard ist jedes Haus in der höchsten Energieeffizienzklasse A+.
Merkmale
- Garage
- Carport
Sie haben Interesse?
Laden Sie sich jetzt Ihr kostenloses Exposé zu diesem Haus herunter:
Grundrissfür Familienhaus Melia
Außenmaße
Länge: 9,35 m
Breite: 11,1 m
Grundrisse
Der Grundriss entspricht nicht Ihren Vorstellungen?
Passen Sie den Grundriss an Ihre persönlichen Bedürfnisse an und besprechen Sie Ihren individuellen Plan mit einem Bauberater des Anbieters.
Merkmale
Energiestandard und Förderung
Energiestandard
Effizienzhaus 55 EE
Dach
Dachform
Satteldach
Dachneigung
38°
Kniestockhöhe
150 cm
Preisdetails für Familienhaus Melia
Schlüsselfertig ab
352.900 €
ab 1.062,38 €
Dieser Preis ist ein Beispiel für den Anfang, ein Berater kann Ihnen ein detailliertes Angebot erstellen, das Ihren Bedürfnissen entspricht.
Möchten Sie bei Ihrem Projekt Geld sparen?
Durch einen Angebotsvergleich mit Fertighaus.de können Sie bis zu 20 % Ihrer Baukosten sparen.
Familienhaus Melia - Hilfreiche Fragen & Antworten
Für das Familienhaus Melia liegt der Quadratmeterpreis bei etwa 2.300 Euro. Damit ordnet sich dieses schlüsselfertige Massivhaus in ein attraktives, günstiges Preissegment ein. Wir weisen darauf hin, dass individuelle Anpassungen den Endpreis beeinflussen können. Gerne können Sie über uns ein detailliertes Angebot anfordern, um eine präzise Kalkulation für Ihr Bauvorhaben zu erhalten.
Das Haus verfügt über ein klassisches Satteldach mit einer Neigung von 38 Grad. Eine Besonderheit ist die moderne Flachdachgaube im Obergeschoss. Diese schafft im Flur zusätzlichen Raum für eine gemütliche Sitzecke direkt vor dem Fenster. Durch den hohen Kniestock von 1.500 mm gewinnen Sie zudem wertvolle Stellfläche in den Schlafräumen unter den Schrägen.
Wir empfehlen für dieses Haus eine Grundstücksgröße von mindestens 450 bis 500 m². Bei einer Grundfläche von rund 104 m² bleibt so genügend Raum für einen Garten und Stellplätze. Wir kalkulieren dabei etwa 50 m² für Parkflächen ein, während die restliche Fläche sicherstellt, dass alle baurechtlichen Abstandsflächen auf Ihrem Grundstück eingehalten werden können.
Kern-Haus setzt beim Melia auf eine massive, energieeffiziente Bauweise, die standardmäßig die höchste Effizienzklasse A+ erreicht. Eine Besonderheit ist die integrierte Wohnraumlüftung mit Wärmerückgewinnung, die Betriebskosten dauerhaft niedrig hält. Zudem bietet der Hersteller Sicherheit durch eine 5-Phasen-TÜV-Prüfung während der Bauzeit. So stellen wir sicher, dass Sie ein technisch einwandfreies und zukunftssicheres Eigenheim erhalten.
Über den Anbieter Kern-Haus
Zum Anbieterprofil
Bewertungen
3,9
(82)

Bewertungen
3,9
82 BewertungenGut
Kern-Haus in Zahlen
Gründungsjahr
1980
Häuser im Angebot
60
Mitarbeiter
300
Bewertungen von Kern-Haus
Frau Kuss ist sehr nett und engagiert. Sie ke...
Frau Kuss ist sehr nett und engagiert. Sie kennt das Unternehmen und hat eine ausführliche Bedarfsanalyse durchgeführt.
21 März 2026Julia V.
Mail erhalten, leider war ich selbst schlecht...
Mail erhalten, leider war ich selbst schlecht erreichbar.
16 März 2024Florian W.
Email erhalten
Email erhalten
10 März 2024Ana Cecilia S.
Leistungsspektrum
Preisgarantie
Bauzeit Garantie
Individuelle Planung
Blower Door Test
Persönliche Beratung für Ihre individuellen Wünsche
Finden Sie jetzt Ihren Ansprechpartner
Kern-Haus
Auszeichnungen, Zertifikate & Mitgliedschaften





Ähnliche Häuser Für Familienhaus Melia