





Sensation-E-132 E4 von SCHWABENHAUS
Ab 379.823 €
Bewertungen von SCHWABENHAUS
4,0
(274)
Wohnfläche
132 m²
Zimmer
4
Ausbaustufe
Schlüsselfertig
Bauweise
Fertighaus
Etagen
2
Energiestandard
Effizienzhaus 55
Dachform
Satteldach
Hausart
Einfamilienhaus
Beschreibung
Angaben zum Preis: Ausbaustufe "Fast-Vollendet", Effizienzhaus 55, inkl. Bodenplatte, inkl. All-Inklusive-Leistungspaket. Preis bezieht sich auf Basishaus. Abbildungen und Grundrisse können Extras darstellen. Preislistenstand: 08/2023.
Sie haben Interesse?
Laden Sie sich jetzt Ihr kostenloses Exposé zu diesem Haus herunter:
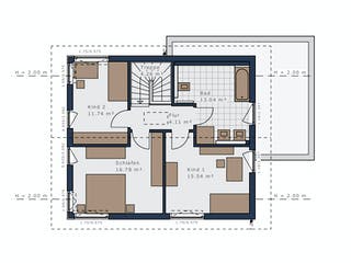
Grundrissfür Sensation-E-132 E4
Außenmaße
Länge: 9,55 m
Breite: 8,3 m
Grundrisse
Der Grundriss entspricht nicht Ihren Vorstellungen?
Passen Sie den Grundriss an Ihre persönlichen Bedürfnisse an und besprechen Sie Ihren individuellen Plan mit einem Bauberater des Anbieters.
Merkmale
Energiestandard und Förderung
Energiestandard
Effizienzhaus 40
Effizienzhaus 40 Plus
Effizienzhaus 55
Dach
Dachform
Satteldach
Dachneigung
25°
Kniestockhöhe
166 cm
Preisdetails für Sensation-E-132 E4
Schlüsselfertig ab
379.823 €
Bausatzhaus ab214.256 €
Ausbauhaus ab322.331 €
ab 1.143,43 €
Dieser Preis ist ein Beispiel für den Anfang, ein Berater kann Ihnen ein detailliertes Angebot erstellen, das Ihren Bedürfnissen entspricht.
Möchten Sie bei Ihrem Projekt Geld sparen?
Durch einen Angebotsvergleich mit Fertighaus.de können Sie bis zu 20 % Ihrer Baukosten sparen.
Sensation-E-132 E4 - Hilfreiche Fragen & Antworten
Für die schlüsselfertige Variante in der Stufe Fast-Vollendet liegt der Preis bei etwa 2.900 Euro pro Quadratmeter. Damit ordnet sich das Haus im mittelpreisigen Segment ein. In diesem Preis sind bereits die Bodenplatte sowie ein umfangreiches All-Inklusive-Leistungspaket enthalten. Gerne erstellen wir Ihnen über uns ein individuelles Angebot, das genau auf Ihre Wünsche zugeschnitten ist.
Wir empfehlen für das Sensation-E-132 E4 eine Grundstücksgröße von mindestens 400 m². Das Haus selbst beansprucht eine Grundfläche von rund 79 m². Planen Sie zusätzlich etwa 50 m² für Stellplätze ein. Die restliche Fläche von circa 260 m² dient als Garten und Pufferzone, um alle baurechtlichen Abstandsflächen auf Ihrem neuen Grundstück sicher einzuhalten.
Das klassische Satteldach überzeugt mit einer Neigung von 25 Grad. Besonders hervorzuheben ist der hohe Kniestock von 1,66 Metern. Dieser sorgt für deutlich mehr Stellfläche und Kopffreiheit im Obergeschoss, wodurch die Räume unter der Schräge optimal nutzbar bleiben. Sie genießen so das gemütliche Flair eines Dachgeschosses, ohne auf wertvollen Platz für Ihre Möbel verzichten zu müssen.
SCHWABENHAUS realisiert dieses Modell in nachhaltiger Fertighaus-Bauweise direkt in der eigenen Haus-Manufaktur. Sie profitieren von einer hohen Energieeffizienz, da das Haus als Effizienzhaus 55 oder sogar 40 realisiert werden kann. Dank der modernen Bauweise und hochwertiger Materialien entsteht ein wohngesundes Klima für Ihre Familie. Wir unterstützen Sie dabei, die passende Ausbaustufe für Ihr individuelles Vorhaben auszuwählen.
Über den Anbieter SCHWABENHAUS
Zum Anbieterprofil
Bewertungen
4,0
(274)

Bewertungen
4,0
274 BewertungenGut
SCHWABENHAUS in Zahlen
Gründungsjahr
1966
Häuser im Angebot
44
Häuser pro Jahr
450
Mitarbeiter
400
Bewertungen von SCHWABENHAUS
Danke an Hrn. Simon. Er ist kompetent und fre...
Danke an Hrn. Simon. Er ist kompetent und freundlich!
03 Apr. 2026Dimitri S.
alles Ok
Bis jetzt Material erhalten. Erste Kontakte
02 Apr. 2026Kurt Heinz H.
Besprechungstermin findet demnächst statt.
Besprechungstermin findet demnächst statt.
16 März 2026Kirsten L.
Leistungsspektrum
Finanzierungsberatung
Preisgarantie
Bauzeit Garantie
Individuelle Planung
Blower Door Test
Persönliche Beratung für Ihre individuellen Wünsche
Finden Sie jetzt Ihren Ansprechpartner
SCHWABENHAUS
Auszeichnungen, Zertifikate & Mitgliedschaften


















Ähnliche Häuser Für Sensation-E-132 E4