







Ausstellungshaus Königs-Wusterhausen - CityLife 500 von WeberHaus
Ab 279.770 €
Bewertungen von WeberHaus
4,0
(48)
Wohnfläche
176 m²
Zimmer
7
Ausbaustufe
Schlüsselfertig
Bauweise
Fertighaus
Etagen
2
Energiestandard
Effizienzhaus 55
Dachform
Zeltdach
Hausart
Einfamilienhaus
Beschreibung
Markantes Haus für große Familien
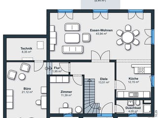
Dieses Musterhaus basiert auf dem Entwurf CityLife 500. Auf 176 qm Wohnfläche fühlen sich vor allem große Familien wohl. Das geräumige Erdgeschoss bietet einen großzügigen Wohn-Essbereich mit offener Küche und ein Gästezimmer. Im 86 qm großen Obergeschoss haben Eltern und Kinder jede Menge Freiheiten. Eigene Badezimmer sorgen dafür, dass jeder Tag für große und kleine Frühaufsteher gut anfängt. Clever: die Ankleide im Elternschlafzimmer.
Angabe zum Preis:
Ausbaustufe Malerfertig, inkl. Bodenplatte, ohne Wintergarten, Gaube und Sonderausstattungen, Stand 05/2025
Sie haben Interesse?
Laden Sie sich jetzt Ihr kostenloses Exposé zu diesem Haus herunter:
Grundrissfür Ausstellungshaus Königs-Wusterhausen - CityLife 500
Grundrisse
Der Grundriss entspricht nicht Ihren Vorstellungen?
Passen Sie den Grundriss an Ihre persönlichen Bedürfnisse an und besprechen Sie Ihren individuellen Plan mit einem Bauberater des Anbieters.
Merkmale
Energiestandard und Förderung
Energiestandard
Effizienzhaus 40
Effizienzhaus 40 Plus
Effizienzhaus 55
Plusenergiehaus
U-Wert
0,15
Dach
Dachform
Zeltdach
Dachneigung
22°
Preisdetails für Ausstellungshaus Königs-Wusterhausen - CityLife 500
Schlüsselfertig ab
279.770 €
ab 842,22 €
Dieser Preis ist ein Beispiel für den Anfang, ein Berater kann Ihnen ein detailliertes Angebot erstellen, das Ihren Bedürfnissen entspricht.
Möchten Sie bei Ihrem Projekt Geld sparen?
Durch einen Angebotsvergleich mit Fertighaus.de können Sie bis zu 20 % Ihrer Baukosten sparen.
Ausstellungshaus Königs-Wusterhausen - CityLife 500 - Hilfreiche Fragen & Antworten
Ja, WeberHaus bietet Ihnen eine Festpreisgarantie, was für Ihre Planungssicherheit beim Hausbau essenziell ist. In diesem schlüsselfertigen Paket sind bereits hochwertige Elemente wie die ökologische ÖvoNatur Therm Gebäudehülle und das Home4Future-Paket enthalten. Wir unterstützen Sie gerne dabei, ein detailliertes Angebot für Ihr individuelles Bauprojekt über unsere Plattform anzufordern.
WeberHaus setzt konsequent auf die nachhaltige Holzfertigbauweise. Das Herzstück bildet die innovative ÖvoNatur Therm Wand, die hervorragende Dämmeigenschaften mit ökologischen Materialien kombiniert. Diese Bauweise sorgt nicht nur für ein gesundes Raumklima, sondern ermöglicht auch eine präzise Vorfertigung in wettergeschützten Hallen. So profitieren Sie von einer schnellen Montage und höchster handwerklicher Qualität.
Nachhaltigkeit steht durch den nachwachsenden Rohstoff Holz im Fokus. Die Wohngesundheit wird bei WeberHaus sogar schwarz auf weiß belegt. Unabhängige Messungen des Sentinel Haus Instituts garantieren Ihnen eine schadstoffarme Raumluft. Zudem ist das Haus als Effizienzhaus 40 NH konzipiert, was durch die Kombination aus Photovoltaik und smarter Steuerung für minimale Energiekosten und maximale Umweltfreundlichkeit sorgt.
Die benötigte Grundstücksgröße hängt stark von Ihren individuellen Planungswünschen ab. Da WeberHaus maßgeschneiderte Architektenhäuser anbietet, variiert der Platzbedarf. Für ein klassisches Einfamilienhaus mit Garten und Stellplatz empfehlen wir oft Flächen ab 450 m². Wir helfen Ihnen gerne, die Grundflächenzahl und notwendige Abstandsflächen basierend auf Ihrem gewünschten Entwurf genauer zu kalkulieren.
Über den Anbieter WeberHaus

Bewertungen
4,0
(48)

Bewertungen
4,0
48 BewertungenGut
WeberHaus in Zahlen
Gründungsjahr
1960
Häuser im Angebot
46
Häuser pro Jahr
ca. 720
Häuser gesamt
über 41.000
Mitarbeiter
1.290
Bewertungen von WeberHaus
Unkompliziertes Erstgespräch über Teams. Sehr...
Unkompliziertes Erstgespräch über Teams. Sehr netter Berater, der auch schon langjährige Erfahrungen mit dem Unternehmen hat.
21 März 2026Julia V.
Überblick über Angebot
Ich habe einen Überblick bekommen.
30 Nov. 2025Cornelia J.
Gute Beratung und Unterstützung bei der Planu...
Gute Beratung und Unterstützung bei der Planung. Lange Wartezeit bis zur Hausaufstellung. Bedingungen für die Preisgarantie wurden so vorher nicht kommuniziert.
07 Juni 2025Ramona M.
Leistungsspektrum
Finanzierungsberatung
Preisgarantie
Bauzeit Garantie
Individuelle Planung
Blower Door Test
Ähnliche Häuser Für Ausstellungshaus Königs-Wusterhausen - CityLife 500