


Karlstal von ISARTALER HOLZHAUS
Ab 274.900 €
Bewertungen von ISARTALER HOLZHAUS
0
(0)
Wohnfläche
138 m²
Zimmer
5,5
Ausbaustufe
Schlüsselfertig
Bauweise
Fertighaus
Etagen
1
Energiestandard
Effizienzhaus 55
Dachform
Satteldach
Hausart
Einfamilienhaus
Beschreibung
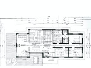
Mit dem Architektenhaus Karlstal verwirklichte sich eine junge 4-köpfige Familie Ihren Traum von einem Holzhaus mit nordischem Flair. Ziel war es, das Wohlfühlklima und das nordische Lebensgefühl in den geplanten Neubau zu integrieren. Ferner sollte das Einfamilienhaus sehr pflegeleicht und auf die Zukunft ausgerichtet sein. Deshalb wurde alles auf einer Ebene geplant. Im Süd-Westen das großzügig, offen angelegte Wohnen und im Nord-Osten der intimere Bereich: Schlafzimmer, Kinderzimmer Bad und Sauna.
Merkmale
- Terrasse
- Gästezimmer
Sie haben Interesse?
Laden Sie sich jetzt Ihr kostenloses Exposé zu diesem Haus herunter:
Grundrissfür Karlstal
Grundrisse
Der Grundriss entspricht nicht Ihren Vorstellungen?
Passen Sie den Grundriss an Ihre persönlichen Bedürfnisse an und besprechen Sie Ihren individuellen Plan mit einem Bauberater des Anbieters.
Merkmale
Energiestandard und Förderung
Energiestandard
Effizienzhaus 40
Effizienzhaus 55
U-Wert
0,14
Dach
Dachform
Satteldach
Dachneigung
22°
Preisdetails für Karlstal
Schlüsselfertig ab
274.900 €
Ausbauhaus ab139.000 €
ab 827,56 €
Dieser Preis ist ein Beispiel für den Anfang, ein Berater kann Ihnen ein detailliertes Angebot erstellen, das Ihren Bedürfnissen entspricht.
Möchten Sie bei Ihrem Projekt Geld sparen?
Durch einen Angebotsvergleich mit Fertighaus.de können Sie bis zu 20 % Ihrer Baukosten sparen.
Karlstal - Hilfreiche Fragen & Antworten
Der Bungalow Karlstal bietet ein hervorragendes Preis-Leistungs-Verhältnis. In der schlüsselfertigen Variante liegt der Quadratmeterpreis bei rund 2.000 Euro, was das Haus im Segment 'Sehr günstig' positioniert. Dieser Preis umfasst eine hochwertige Holzfertigbauweise mit nordischem Flair. Gerne lassen wir Ihnen über uns ein detailliertes Angebot zukommen, das Ihre individuellen Ausstattungswünsche berücksichtigt.
Das Modell Karlstal ist als klassischer Bungalow konzipiert, der barrierefreies Wohnen auf einer Ebene ermöglicht. Das Satteldach mit 22 Grad Neigung unterstreicht den nordischen Landhausstil. Besonders durchdacht ist die Trennung in einen offenen Wohnbereich im Südwesten und einen privaten Trakt im Nordosten, der sogar Platz für eine eigene Sauna bietet.
Bei einer Wohnfläche von etwa 138 m² auf einer Ebene empfehlen wir ein Grundstück von mindestens 550 m². Wir kalkulieren dabei rund 50 m² für Stellplätze und eine großzügige Gartenfläche ein. So stellen wir sicher, dass die Abstandsflächen eingehalten werden und Sie ausreichend Platz für Erholung im Freien zur Verfügung haben.
ISARTALER HOLZHAUS bietet Ihnen maximale Flexibilität bei der Realisierung Ihres Eigenheims. Sie können das Karlstal entweder als Ausbauhaus wählen, wenn Sie Eigenleistungen erbringen möchten, oder sich für die schlüsselfertige Übergabe entscheiden. Beide Varianten profitieren von der langjährigen Erfahrung des Herstellers in ökologischer Holzbauweise und garantieren ein gesundes Wohnklima durch diffusionsoffene Wandkonstruktionen.
Über den Anbieter ISARTALER HOLZHAUS

Bewertungen
0
(0)

Bewertungen
0
0 BewertungenKeine
ISARTALER HOLZHAUS in Zahlen
Gründungsjahr
1924
Häuser pro Jahr
40
Mitarbeiter
70
Leistungsspektrum
Preisgarantie
Bauzeit Garantie
Individuelle Planung
Blower Door Test
Ähnliche Häuser Für Karlstal