










Haas MH Köln 171 von Haas Fertigbau - Mehrfamilienhäuser
Ab 427.000 €
Bewertungen von Haas Fertigbau - Mehrfamilienhäuser
4,3
(3)
Wohnfläche
247 m²
Zimmer
6
Ausbaustufe
Schlüsselfertig
Bauweise
Fertighaus
Etagen
1,5
Energiestandard
Effizienzhaus 40
Dachform
Satteldach
Hausart
Zweifamilienhaus
Beschreibung
Haas MH Köln 171: Junges Bauen mit kreativen Ideen - die Küche mit moderner Kochinsel und viel Platz macht Lust auf Kochen und öffnet sich nahtlos in den Ess- und Wohnbereich. Im Dachgeschoss findet man zu dem großen Schlafzimmer noch das Badezimmer, welches ausreichend Platz für anspruchsvolle Wellness bietet. Ein Kinderzimmer bzw. ein Büroraum mit 15 m² Wohnfläche steht zusätzlich im Dachgeschoss des Haupthauses zur Verfügung. Über die Galerie führt der Weg in das Dachgeschoss des Anbaus, der das flexible Raumkonzept unterstreicht.
Angaben zum Preis: gelten für die Ausbaustufe “Ausbauhaus“ oder die Ausbaustufe “Schlüsselfertig“ für die Basisvariante des Hauses (Haas MH Köln 171 ERZ Anbau) ab Oberkante Kellerdecke/Bodenplatte für Bauort Deutschland; lt. Bau- und Lieferbeschreibung 10/2018 und Preisliste 10/2018; ohne Sonderausstattung; Abbildungen können aufpreispflichtige Sonderausstattungen enthalten. Die angegeben Außenmaße beziehen sich auf die Außenmaße des Grundbaukörpers.
Voraussetzung für ein KfW-Effizienzhaus 40 sind die Ausführung des Hauses auf Bodenplatte, gem. Bau- und Lieferbeschreibung 10/2018 und Hausvariante gem. Haas Hauskatalog sowie passende Grundstückssituation.
Merkmale
- Erker
- Gästezimmer
- Kamin
Sie haben Interesse?
Laden Sie sich jetzt Ihr kostenloses Exposé zu diesem Haus herunter:
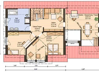
Grundrissfür Haas MH Köln 171
Außenmaße
Länge: 10,97 m
Breite: 9,48 m
Grundrisse
Der Grundriss entspricht nicht Ihren Vorstellungen?
Passen Sie den Grundriss an Ihre persönlichen Bedürfnisse an und besprechen Sie Ihren individuellen Plan mit einem Bauberater des Anbieters.
Merkmale
Energiestandard und Förderung
Energiestandard
Effizienzhaus 40
Effizienzhaus 40 Plus
Plusenergiehaus
U-Wert
0,09
Dach
Dachform
Satteldach
Dachneigung
42°
Kniestockhöhe
100 cm
Preisdetails für Haas MH Köln 171
Schlüsselfertig ab
427.000 €
Ausbauhaus ab269.000 €
ab 1.285,45 €
Dieser Preis ist ein Beispiel für den Anfang, ein Berater kann Ihnen ein detailliertes Angebot erstellen, das Ihren Bedürfnissen entspricht.
Möchten Sie bei Ihrem Projekt Geld sparen?
Durch einen Angebotsvergleich mit Fertighaus.de können Sie bis zu 20 % Ihrer Baukosten sparen.
Über den Anbieter Haas Fertigbau - Mehrfamilienhäuser

Bewertungen
4,3
(3)

Bewertungen
4,3
3 BewertungenHervorragend
Haas Fertigbau - Mehrfamilienhäuser in Zahlen
Gründungsjahr
1972
Häuser im Angebot
12
Häuser pro Jahr
700
Häuser gesamt
50.000
Mitarbeiter
>1100
Bewertungen von Haas Fertigbau - Mehrfamilienhäuser
Fachkompetenz
hat sich über dieFeiertage gemeldet
02 Jan. 2026Josef G.
Kompetentes Gestäch
Kompetentes Gestäch
23 März 2025Maritta S.
Überrachende Beratung
Hatte ein Gespräch mit Hr. Schindlmeier. Diese Woche waren wir in Falkenberg und hatten ein Gespräch mit Hr. Schindlmeier, dessen Chef und dem Architekten. Die Überraschung war, der Architekt hatte sich schon Gedanken gemacht und einen ersten Vorschlag, auf Papier, bereit. Alle in dieser Firma scheinen sehr motiviert und engagiert zu sein, das hat mir sehr gefallen. Wir werden unsere Häuser mit der Firma HAAS bauen.
20 Apr. 2024Gabriele K.
Leistungsspektrum
Finanzierungsberatung
Preisgarantie
Bauzeit Garantie
Individuelle Planung
Blower Door Test
Ähnliche Häuser Für Haas MH Köln 171