








Edition 141 von WOLF-HAUS
Ab 324.836 €
Wohnfläche
141 m²
Zimmer
7
Ausbaustufe
Schlüsselfertig
Bauweise
Fertighaus
Etagen
1,5
Energiestandard
Effizienzhaus 55
Dachform
Pultdach
Hausart
Einfamilienhaus
Beschreibung
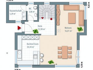
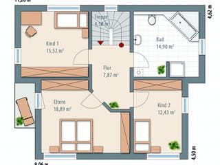
Schmale Fenster, zwei versetzte Pultdächer und eine mit Liebe zum Detail gegliederte Fassade machen das Haus zur eleganten Erscheinung. Der Grundriss ist im Erdgeschoss offen gestaltet. Die Bereiche Wohnen/Essen und Kochen gehen ineinander über und bilden so eine große Zone für das tägliche Leben. Über die moderne und zweifach gewendelte Treppe erreicht man das Dachgeschoss. Hier gefällt besonders das geräumige und helle Badezimmer.
Die angegeben Preise beziehen sich auf die Ausbaustufe „Fast Fertig“ ab Oberkante Keller bzw. Bodenplatte, d.h. ohne Wandoberbeläge - jedoch in der Qualitätsstufe Q2 gespachtelt, sowie ohne Fußbodenbeläge außer Bad und WC - diese sind gefliest.
Sie haben Interesse?
Laden Sie sich jetzt Ihr kostenloses Exposé zu diesem Haus herunter:
Grundrissfür Edition 141
Grundrisse
Der Grundriss entspricht nicht Ihren Vorstellungen?
Passen Sie den Grundriss an Ihre persönlichen Bedürfnisse an und besprechen Sie Ihren individuellen Plan mit einem Bauberater des Anbieters.
Merkmale
Energiestandard und Förderung
Energiestandard
Effizienzhaus 40
Effizienzhaus 40 Plus
Effizienzhaus 55
Plusenergiehaus
U-Wert
0,115
Dach
Dachform
Pultdach
Dachneigung
24°
Kniestockhöhe
160 cm
Preisdetails für Edition 141
Schlüsselfertig ab
324.836 €
Ausbauhaus ab206.927 €
ab 977,89 €
Dieser Preis ist ein Beispiel für den Anfang, ein Berater kann Ihnen ein detailliertes Angebot erstellen, das Ihren Bedürfnissen entspricht.
Möchten Sie bei Ihrem Projekt Geld sparen?
Durch einen Angebotsvergleich mit Fertighaus.de können Sie bis zu 20 % Ihrer Baukosten sparen.
Edition 141 - Hilfreiche Fragen & Antworten
In der schlüsselfertigen Variante liegt der Preis für dieses Haus bei rund 2.300 Euro pro Quadratmeter. Damit ordnet sich das Modell im günstigen Preissegment ein. Beachten Sie bitte, dass individuelle Anpassungen die Kosten beeinflussen können. Gerne erstellen wir für Sie über unsere Plattform ein detailliertes Angebot, das genau auf Ihre Wünsche zugeschnitten ist.
Die Edition 141 besticht durch zwei versetzte Pultdächer, die dem Haus eine moderne und zugleich elegante Silhouette verleihen. Schmale Fensterformate und eine fein gegliederte Fassade unterstreichen diesen zeitgemäßen Look. Durch den hohen Kniestock von 160 Zentimetern profitieren Sie im Dachgeschoss von viel Stellfläche und einem großzügigen Raumgefühl, das weit über Standardmaße hinausgeht.
Das Erdgeschoss ist offen gestaltet, sodass Kochen, Essen und Wohnen harmonisch ineinander übergehen. Mit insgesamt sieben Zimmern auf 141 Quadratmetern bietet das Haus erstaunlich viel Flexibilität für Familien oder das Home-Office. Besonders hervorzuheben ist das helle, geräumige Badezimmer im Obergeschoss, welches durch die moderne, zweifach gewendelte Treppe bequem erreichbar ist.
Wir legen Wert auf ökologische Standards. WOLF-HAUS verwendet für dieses Fertighaus Holz aus nachhaltiger Forstwirtschaft. In Kombination mit moderner Technik sind verschiedene Energiestandards wie das Effizienzhaus 40 oder sogar ein Plusenergiehaus realisierbar. Die diffusionsoffene Bauweise sorgt zudem für ein gesundes Raumklima. So investieren Sie in ein wertbeständiges Zuhause, das die Umwelt schont und Heizkosten minimiert.
Über den Anbieter WOLF-HAUS

WOLF-HAUS in Zahlen
Gründungsjahr
1902
Häuser im Angebot
24
Mitarbeiter
ca. 200
Leistungsspektrum
Preisgarantie
Bauzeit Garantie
Individuelle Planung
Blower Door Test
Ähnliche Häuser Für Edition 141