Kapitänshaus 160 von ECO System HAUS
Ab 339.000 €

Bewertungen von ECO System HAUS
3,8
(4)
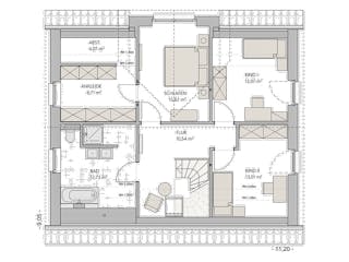
Grundriss für Kapitänshaus 160
Grundrisse
Der Grundriss entspricht nicht Ihren Vorstellungen?
Passen Sie den Grundriss an Ihre persönlichen Bedürfnisse an und besprechen Sie Ihren individuellen Plan mit einem Bauberater des Anbieters.
Merkmale
Energiestandard und Förderung
Energiestandard
Effizienzhaus 40
Effizienzhaus 40 Plus
Effizienzhaus 55
Effizienzhaus 40 Plus
Ein Effizienzhaus 40 Plus verbraucht im Vergleich zum Referenzhaus 100 > 60 % weniger Energie. Sie müssen für den Hausbau mit Mehrkosten von ~ 13,5 % rechnen, die sich aber mittelfristig auszahlen. Es verfügt im Vergleich zum Effizienzhaus 40 über weitere Komponenten, wie beispielsweise eine Lüftungsanlage mit Wärmerückgewinnung, eine Anlage, mit der auf Basis erneuerbarer Energien Strom erzeugt werden kann und ein Batteriespeichersystem, mit dem überschüssige Energie eingespart werden kann.
Effizienzhaus 40
Seit dem 1. Juli 2010 gibt es neben dem Effizienzhaus 55 und dem Effizienzhaus 70 noch das Effizienzhaus 40. Das Effizienzhaus 40 darf nur 40 Prozent der nach Energieeinsparverordnung 2009 (EnEV) gültigen Höchstwerte hinsichtlich Jahres-Primärenergiebedarf und Transmissionswärmeverlust erreichen. Neben der Einsparung von 60 Prozent beim Jahres-Primärenergiebedarfs sind auch beim Transmissionswärmeverlust 45 Prozent einzusparen. Der maximale Jahresprimärenergiebedarf beträgt 30 kWh/m². Ein KfW-Effizienzhaus 40 Haus ist luftdicht und nutzt regenerative Energien, häufig eine Kombination aus Holzpellets, Solaranlage und Lüftungsanlage mit Wärmerückgewinnung.
Effizienzhaus 55
Ein Effizienzhaus 55 verbraucht im Vergleich zum Referenzhaus 100 45 % weniger Energie. Sie müssen für den Hausbau mit Mehrkosten von ~ 7,5 % rechnen, die sich aber mittelfristig auszahlen. Diese Effizienzklasse gilt heutzutage als Standard für alle neu gebauten Häuser.
Dach
Dachform
Satteldach
Satteldach
Das Satteldach liegt in Form eines Dreiecks auf dem Baukörper und schließt entweder mit seinem First parallel zu den beiden Giebeln ab oder es ragt noch über die Giebel hinaus. Satteldächer werden als Pfettendach oder als Sparrendach ausgebildet. Üblich sind Dachneigungen ab etwa 30˚ (flaches Satteldach) bis über 60˚ (altdeutsches Dach). Weit verbreitet sind Satteldächer mit etwa 38˚ bis 45˚ Neigung. Diese bieten genug Raum für einen Ausbau des Dachgeschosses.
Zeltdach
Seltene Dachform, die nur auf einem quadratischen oder annähernd quadratischen Grundriß errichtet werden kann. Zelt- oder Pyramidendächer findet man vor allem auf Türmen und Kirchtürmen.
Walmdach
Sehr häufig zu sehende Dachform, dem Satteldach verwandt. Im Gegensatz zu diesem schließt der First jedoch nicht mit den beiden Giebelwänden ab, sondern ist beidseitig zurückgebaut, das heißt abgeschrägt sind. Dabei unterscheidet man noch Zwergwalmdach, Krüppelwalmdach und Fußwalmdach. Da bei diesen Varianten nicht die komplette Seite abgewalmt ist, spricht man auch häufig von Vollwalmdach, wenn der Walm so ausgebildet ist, wie auf der Zeichnung. Weitere Bezeichnungen für Walmdach sind Walbendach, Holländisches Dach, Schopfdach oder Haubendach.
Krüppelwalmdach
Besonders auf nord- und niederdeutschen Gehöften gebräuchliche Variante des Walmdachs. Entspricht einem Walmdach mit hochgesetzter Traufhöhe am Giebel. In manchen Gegenden wird es auch als Schopfwalmdach bezeichnet.
Flachdach
Flachdächer sind allgegenwärtig und dominieren im Gewerbebau, im Bereich des privaten Hausbaus werden sie - mit stark abnehmender Tendenz - bei Bungalows angelegt und natürlich bei Garagen und Carports. Bei Flachdächern erfolgt keine Dacheindeckung mit Dachpfannen, vielmehr wird die Dachfläche mit Dachbahnen oder mit Metallblechen regenfest gemacht. Konstruktiv wird beim Flachdach unterschieden zwischen Kaltdach, Warmdach und Umkehrdach. Mit Dachbahnen abgedichtete Flachdächer werden auch heute noch, wenn auch mit stark abnehmender Tendenz, mit Rollkies belegt. Stark steigend, bei Gewerbebauten jedoch oftmals auch baubehördlich vorgeschrieben, ist die Anlage einer Dachbegrünung. Dadurch wird das Flachdach zum Gründach. Gründächer sind eine sinnvolle Alternative gegen die zunehmende Verdichtung des Bodens. Flachdächer sind im übrigen keineswegs eben, sie müssen ein Gefälle von mindestens 3 % aufweisen, damit das Regenwasser über den Dachgully oder die Dachrinnen abfließen kann.
Pultdach
Gefälledach, das wie ein Pultdeckel auf dem Baukörper liegt. Das Pultdach ist die einfachste Dachform überhaupt. Mit nur einen schrägen Dachfläche ist es kostengünstig herzustellen. Im Mittelmeerraum ist das Pultdach die häufigste Dachform. Seit einiger Zeit erfreut es sich auch hierzulande zunehmender Beliebtheit. Die Dachfläche von Pultdächern liegt meist zur Wetterseite hin, um Wind, Regen und Schnee abzuschirmen. An der Sonnenseite lässt das Haus Raum für große Lichtflächen.
Preisdetails für Kapitänshaus 160
Schlüsselfertig ab
339.000 €
ab 1.020,53 €
Dieser Preis ist ein Beispiel für den Anfang, ein Berater kann Ihnen ein detailliertes Angebot erstellen, das Ihren Bedürfnissen entspricht.
Möchten Sie bei Ihrem Projekt Geld sparen?
Durch einen Angebotsvergleich mit Fertighaus.de können Sie bis zu 20 % Ihrer Baukosten sparen.
Kapitänshaus 160 - Hilfreiche Fragen & Antworten
Das Kapitänshaus 160 bietet ein hervorragendes Preis-Leistungs-Verhältnis. Bei einem schlüsselfertigen Preis von rund 2.100 € pro Quadratmeter ordnet es sich im sehr günstigen Segment ein. Bitte beachten Sie, dass individuelle Sonderwünsche den Endpreis beeinflussen können. Gerne können Sie über uns detaillierte Preislisten und ein persönliches Angebot für Ihr Bauvorhaben anfordern.
Dieses Massivhaus besticht durch sein klassisches Satteldach und den nordischen Stil. Besonders markant ist die Möglichkeit, einen zusätzlichen Giebel an der Traufseite zu ergänzen, was dem Haus eine luxuriöse Optik verleiht. Sie haben zudem die Wahl aus über 70 Verblendstein- und Putz-Varianten, um die Fassade ganz nach Ihren persönlichen Vorlieben individuell zu gestalten.
Wir empfehlen für dieses Einfamilienhaus ein Grundstück ab etwa 450 m². Bei einer geschätzten Grundfläche von 90 m² bleibt so genügend Raum für einen schönen Garten und die notwendigen Abstandsflächen. Planen Sie zusätzlich circa 50 m² für PKW-Stellplätze ein. So kombiniert das großzügige Haus mit 160 m² Wohnfläche idealen Wohnkomfort mit einer ansprechenden Außenanlage.
ECO System HAUS errichtet dieses Modell in der wertbeständigen Massivbauweise. Der Fokus liegt dabei auf Nachhaltigkeit und Energieeffizienz, beispielsweise als Effizienzhaus 40. Realisiert werden Projekte vor allem im norddeutschen Raum, wie in Niedersachsen, Schleswig-Holstein oder den Stadtstaaten Hamburg und Berlin. Wir unterstützen Sie gerne dabei, die Verfügbarkeit für Ihren spezifischen Bauort in diesen Regionen zu prüfen.
Über den Anbieter ECO System HAUS
Zum Anbieterprofil
Bewertungen
3,8
(4)

Bewertungen
3,8
4 BewertungenGut
ECO System HAUS in Zahlen
Gründungsjahr
1996
Häuser im Angebot
23
Häuser pro Jahr
> 100
Mitarbeiter
51-100
Bewertungen von ECO System HAUS
Trifft unseren Geschmack
Trifft unseren Geschmack
30 Nov. 2024Anne W.
Wir mussten das Projekt verschieben, da der B...
Wir mussten das Projekt verschieben, da der Baugrund noch nicht erworben wurde.
15 Sep. 2024Delf J.
Ich möchte so einen Haus Aber in 3stockwerk, ...
Ich möchte so einen Haus Aber in 3stockwerk, mit Keller. Und alles drum und dran..
20 Jan. 2024Sevil S.
Persönliche Beratung für Ihre individuellen Wünsche
Finden Sie jetzt Ihren Ansprechpartner
ECO System HAUS
Ähnliche Häuser Für Kapitänshaus 160







