
Trendline 142 von Suckfüll Energiesparhaus
Ab 409.894 €
Bewertungen von Suckfüll Energiesparhaus
3,5
(57)
Wohnfläche
139 m²
Zimmer
6,5
Ausbaustufe
Schlüsselfertig
Bauweise
Fertighaus
Etagen
2
Energiestandard
Effizienzhaus 40
Dachform
Satteldach
Hausart
Einfamilienhaus
Beschreibung
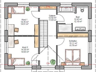
Der dritte Giebel gibt diesem Haus das gewisse Etwas. Durch ihn wird die Galerie im Dachgeschoss großzügig und hell. Optional kann hier auch mittels einer Deckenaussparung der Wohnraum problemlos nach oben hin geöffnet werden, so dass ein ganz besonderes Gefühl von Freiraum und Weite entsteht. In allen Räumen des Dachgeschosses sorgen Fenster in den Drempelwänden für zusätzliches Licht.
Preise verstehen sich inkl. Bodenplatte und inkl. 19 € MwSt.
Sie haben Interesse?
Laden Sie sich jetzt Ihr kostenloses Exposé zu diesem Haus herunter:
Grundrissfür Trendline 142
Außenmaße
Länge: 8,4 m
Breite: 11 m
Grundrisse
Der Grundriss entspricht nicht Ihren Vorstellungen?
Passen Sie den Grundriss an Ihre persönlichen Bedürfnisse an und besprechen Sie Ihren individuellen Plan mit einem Bauberater des Anbieters.
Merkmale
Energiestandard und Förderung
Energiestandard
Effizienzhaus 40
Effizienzhaus 40 Plus
Effizienzhaus 55
Dach
Dachform
Satteldach
Dachneigung
26°
Preisdetails für Trendline 142
Schlüsselfertig ab
409.894 €
Ausbauhaus ab294.188 €
ab 1.233,95 €
Dieser Preis ist ein Beispiel für den Anfang, ein Berater kann Ihnen ein detailliertes Angebot erstellen, das Ihren Bedürfnissen entspricht.
Möchten Sie bei Ihrem Projekt Geld sparen?
Durch einen Angebotsvergleich mit Fertighaus.de können Sie bis zu 20 % Ihrer Baukosten sparen.
Trendline 142 - Hilfreiche Fragen & Antworten
Für die schlüsselfertige Ausführung des Trendline 142 können Sie mit einem Quadratmeterpreis von rund 2.900 € rechnen. Damit bewegt sich das Haus im mittelpreisigen Segment. In diesem Preis sind bereits die Bodenplatte sowie die Mehrwertsteuer enthalten. Über uns können Sie weitere Details anfordern, um eine präzise Kostenaufstellung für Ihr Bauvorhaben zu erhalten.
Wir empfehlen für dieses Einfamilienhaus eine Grundstücksfläche von mindestens 450 m². Da das Gebäude eine Grundfläche von etwa 92 m² beansprucht, bleibt bei dieser Größe ausreichend Raum für einen schönen Garten sowie Stellplätze. Planen Sie für Letztere etwa 50 m² ein, damit Sie und Ihre Gäste künftig bequem parken können.
Das Highlight dieses Hauses ist der markante dritte Giebel. Er sorgt für eine besonders helle und großzügige Galerie im Dachgeschoss. Optional haben Sie die Möglichkeit, den Wohnraum durch eine Deckenaussparung nach oben hin zu öffnen. Dies erzeugt in Ihrem neuen Zuhause ein beeindruckendes Gefühl von Weite, Freiraum und moderner Offenheit.
Suckfüll setzt auf einen dampfdiffusionsoffenen, dreischaligen Wandaufbau aus ökologischen Materialien. Es werden schadstofffreie Holzbauplatten und getrocknete Hölzer ohne chemischen Schutz verwendet. Dies garantiert Ihnen ein gesundes Raumklima. Zudem erfüllt jedes Haus standardmäßig die Anforderungen eines Effizienzhauses 40, was Ihre langfristigen Energiekosten und den CO2-Ausstoß Ihres Eigenheims deutlich senkt.
Über den Anbieter Suckfüll Energiesparhaus
Zum Anbieterprofil
Bewertungen
3,5
(57)

Bewertungen
3,5
57 BewertungenAkzeptabel
Suckfüll Energiesparhaus in Zahlen
Gründungsjahr
1958
Häuser im Angebot
47
Bewertungen von Suckfüll Energiesparhaus
Herr Krämer hat einen kompetenten Eindruck ge...
Herr Krämer hat einen kompetenten Eindruck gemacht. Das Gespräch war vertrauensvoll und konstruktiv. Das Angebot ist absolut interessant. Suckfüll ist trotz kleinerer Firma eine Bereicherung.
15 Juni 2025Ulrike O.
Suckfull hat ein Online -Video gesendet und a...
Suckfull hat ein Online -Video gesendet und auch Schwabenhaus.
20 Jan. 2024Heike W.
nichts bestimmtes
nichts bestimmtes
02 Aug. 2023Paul B.
Leistungsspektrum
Preisgarantie
Bauzeit Garantie
Individuelle Planung
Blower Door Test
Persönliche Beratung für Ihre individuellen Wünsche
Finden Sie jetzt Ihren Ansprechpartner
Suckfüll Energiesparhaus
Weitere Häuser
Ähnliche Häuser Für Trendline 142