


Mainz von Fingerhut Haus
Ab 427.073 €
Bewertungen von Fingerhut Haus
4,2
(101)
Wohnfläche
140 m²
Zimmer
6
Ausbaustufe
Schlüsselfertig
Bauweise
Fertighaus
Etagen
1,5
Energiestandard
Effizienzhaus 55
Dachform
Satteldach
Hausart
Einfamilienhaus
Beschreibung
Modern, schlank und flexibel
Ein echtes Raumwunder - der erhöhte Kniestock von 1,80 m bietet den Hausbewohnern viel Kopffreiheit. Aufgrund der kompakten Außenmaße ist das Haus Mainz perfekt für schmale Grundstücke. Gerade junge Familien können ihr Leben hier wunderbar planen und trotzdem alle Optionen offen halten. So finden sich im Dachgeschoss zwei Kinderzimmer, sowie ein Arbeitszimmer und das Elternschlafzimmer.
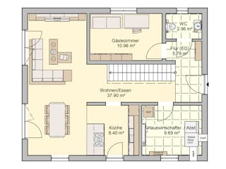
Im Erdgeschoss sind neben dem offenen Wohn-, Ess- und Kochbereich noch das Gäste-WC und ein Hauswirtschaftsraum sowie ein Gästezimmer eingeplant. Auch dieses lässt sich schnell zu einem Kinderzimmer um planen. Für optimalen Lichteinfall sorgen die bodentiefen, doppelflügeligen Fensterelemente.
Angaben zum Preis:
Die gezeigten Abbildungen zeigen zum Teil Sonderleistungen gegen Mehrpreis. Preis der entsprechenden Ausbaustufe inkl. Fingerhut-Bodenplatte und 19 % MwSt. gemäß der Fingerhut-Bau- und Leistungsbeschreibung 1012, Preisliste P05/25.
Merkmale
- Gästezimmer
Sie haben Interesse?
Laden Sie sich jetzt Ihr kostenloses Exposé zu diesem Haus herunter:
Grundrissfür Mainz
Grundrisse
Der Grundriss entspricht nicht Ihren Vorstellungen?
Passen Sie den Grundriss an Ihre persönlichen Bedürfnisse an und besprechen Sie Ihren individuellen Plan mit einem Bauberater des Anbieters.
Merkmale
Energiestandard und Förderung
Energiestandard
Effizienzhaus 40
Effizienzhaus 40 Plus
Effizienzhaus 55
Plusenergiehaus
U-Wert
0,14
Dach
Dachform
Satteldach
Dachneigung
30°
Preisdetails für Mainz
Schlüsselfertig ab
427.073 €
Ausbauhaus ab238.330 €
ab 1.285,67 €
Dieser Preis ist ein Beispiel für den Anfang, ein Berater kann Ihnen ein detailliertes Angebot erstellen, das Ihren Bedürfnissen entspricht.
Möchten Sie bei Ihrem Projekt Geld sparen?
Durch einen Angebotsvergleich mit Fertighaus.de können Sie bis zu 20 % Ihrer Baukosten sparen.
Mainz - Hilfreiche Fragen & Antworten
In der schlüsselfertigen Variante liegt der Preis für das Haus Mainz bei etwa 3.100 € pro Quadratmeter. Damit bewegt sich das Objekt im gehobenen Preissegment. Im Preis enthalten sind bereits die Bodenplatte sowie die gesetzliche Mehrwertsteuer. Da wir wissen, dass individuelle Anpassungen den Preis beeinflussen, erstellen wir Ihnen gerne über unsere Plattform ein passgenaues Angebot für Ihr Bauvorhaben.
Wir empfehlen für diesen Entwurf eine Grundstücksfläche von mindestens 450 m². Da das Haus Mainz speziell für schmale Grundstücke konzipiert wurde, lässt es sich sehr platzsparend realisieren. In unserer Kalkulation sind bereits 50 m² für Stellplätze und circa 290 m² Gartenfläche enthalten. So bleibt Ihnen trotz der großzügigen 140 m² Wohnfläche genügend Freiraum für Erholung im eigenen Garten.
Das Haus Mainz überzeugt durch sein klassisches Satteldach mit einer Neigung von 30 Grad. Ein echtes Highlight ist der erhöhte Kniestock von 1,80 m, der im Dachgeschoss für außergewöhnlich viel Kopffreiheit sorgt. In Kombination mit bodentiefen, doppelflügeligen Fensterelementen entsteht ein lichtdurchflutetes Wohnerlebnis. Wir finden, dass dieser Entwurf moderne Ästhetik ideal mit der Funktionalität eines klassischen Familienhauses verbindet.
Ja, Fingerhut Haus bietet Ihnen eine Festpreisgarantie, die Ihnen während der gesamten Bauphase finanzielle Planungssicherheit gibt. Wir halten dies für einen wesentlichen Vorteil, um sich vor unvorhersehbaren Kostensteigerungen zu schützen. Zusätzlich wird eine feste Bauzeit garantiert. Ob Sie sich für ein Ausbauhaus oder die schlüsselfertige Variante entscheiden: Die genauen Details zu den Inklusivleistungen können Sie unkompliziert über uns anfordern.
Über den Anbieter Fingerhut Haus
Zum Anbieterprofil
Bewertungen
4,2
(101)

Bewertungen
4,2
101 BewertungenHervorragend
Fingerhut Haus in Zahlen
Gründungsjahr
1903
Häuser im Angebot
100
Mitarbeiter
145
Bewertungen von Fingerhut Haus
Der erste Kontakt mit dem Berater scheint ok ...
Der erste Kontakt mit dem Berater scheint ok zu sein.
01 Mai 2026Dr. Michael N.
Tolle Qualität, Transparenz. Werden jedoch d...
Tolle Qualität, Transparenz. Werden jedoch das alte Haus nicht abreißen lassen sondern Sanieren. Das spart viel Geld.
15 März 2026Martina W.
Sehr nette und kompetente Beratung.
Sehr nette und kompetente Beratung.
01 Feb. 2026Torsten D.
Leistungsspektrum
Finanzierungsberatung
Preisgarantie
Bauzeit Garantie
Individuelle Planung
Blower Door Test
Persönliche Beratung für Ihre individuellen Wünsche
Finden Sie jetzt Ihren Ansprechpartner
Fingerhut Haus
Ähnliche Häuser Für Mainz