


BALANCE 146 von Bien-Zenker
Ab 377.517 €
Bewertungen von Bien-Zenker
4,1
(271)
Wohnfläche
146 m²
Zimmer
5
Ausbaustufe
Schlüsselfertig
Bauweise
Fertighaus
Etagen
2
Energiestandard
Effizienzhaus 55
Dachform
Satteldach
Hausart
Einfamilienhaus
Beschreibung
BALANCE Einfamilienhäuser sind wie geschaffen für eine repräsentative Lückenbebauung und machen besonders auf schmalen Grundstücken eine gute Figur. Alle BALANCE Häuser verbinden Modernität, attraktive Architektur und intelligente Grundrisse fürs Wohnen zu zweit oder als Familie und glänzen durch anspruchsvolle, höchst funktionale Lösungen.
Der Preis bezieht sich auf die Ausbaustufe ZAF als Effizienzhaus 55 inkl. Bodenplatte gemäß aktuell gültiger Bau- und Leistungsbeschreibung. Grundrisse und Abbildungen können Extras zeigen. Flächenangaben nach DIN 277.
Merkmale
- Gästezimmer
Sie haben Interesse?
Laden Sie sich jetzt Ihr kostenloses Exposé zu diesem Haus herunter:
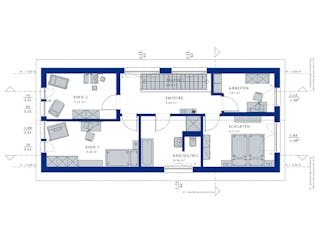
Grundrissfür BALANCE 146
Außenmaße
Länge: 14,42 m
Breite: 6,3 m
Grundrisse
Der Grundriss entspricht nicht Ihren Vorstellungen?
Passen Sie den Grundriss an Ihre persönlichen Bedürfnisse an und besprechen Sie Ihren individuellen Plan mit einem Bauberater des Anbieters.
Merkmale
Energiestandard und Förderung
Energiestandard
Effizienzhaus 40
Effizienzhaus 55
Dach
Dachform
Satteldach
Dachneigung
25°
Kniestockhöhe
200 cm
Preisdetails für BALANCE 146
Schlüsselfertig ab
377.517 €
ab 1.136,48 €
Dieser Preis ist ein Beispiel für den Anfang, ein Berater kann Ihnen ein detailliertes Angebot erstellen, das Ihren Bedürfnissen entspricht.
Möchten Sie bei Ihrem Projekt Geld sparen?
Durch einen Angebotsvergleich mit Fertighaus.de können Sie bis zu 20 % Ihrer Baukosten sparen.
BALANCE 146 - Hilfreiche Fragen & Antworten
Ja, Bien-Zenker bietet Ihnen eine Best- und Festpreisgarantie. Das gibt Ihnen beim Bau dieses Hauses eine hohe Planungssicherheit. Da das Unternehmen auf individuelle Wünsche eingeht, hängen die finalen Kosten von Ihrer gewählten Ausstattung ab. Gerne können wir für Sie ein detailliertes Angebot anfordern, damit Sie eine verlässliche Kalkulationsgrundlage für Ihr Bauvorhaben erhalten.
Absolut, die individuelle Gestaltung steht bei diesem Modell im Vordergrund. Gemeinsam mit den Fachberatern passen Sie den Grundriss und das Design an Ihre Lebenssituation an. Ob spezielle Fensteranordnungen oder Fassadendetails – Ihre Vorstellungen fließen direkt in die Planung ein. Wir unterstützen Sie dabei, die passenden architektonischen Optionen für dieses Fertighaus bei Bien-Zenker zu finden.
Bien-Zenker setzt auf zukunftsorientierte Standards und nachhaltige Lösungen. Dieses Haus profitiert von der jahrzehntelangen Erfahrung des Herstellers und ist mit exzellenten Nachhaltigkeitszertifikaten, etwa der DGNB, ausgezeichnet. Zudem engagiert sich das Unternehmen aktiv für den Umweltschutz. Mit dieser Wahl entscheiden Sie sich für ein wohngesundes Zuhause, das auch die Bedürfnisse künftiger Generationen konsequent berücksichtigt.
Die Raumaufteilung lässt sich flexibel an Ihre Bedürfnisse anpassen, egal ob Sie ein Home-Office oder zusätzliche Kinderzimmer benötigen. Da Bien-Zenker großen Wert auf individuelle Lebensräume legt, ist der Grundriss nicht starr vorgegeben. Wir helfen Ihnen gerne dabei, die optimale Zimmeranzahl für Ihre Wohnfläche zu ermitteln. So wird jeder Quadratmeter dieses Hauses perfekt nach Ihren Wünschen genutzt.
Über den Anbieter Bien-Zenker
Zum Anbieterprofil
Bewertungen
4,1
(271)

Bewertungen
4,1
271 BewertungenGut
Bien-Zenker in Zahlen
Gründungsjahr
1906
Häuser im Angebot
99
Häuser pro Jahr
> 100
Häuser gesamt
> 80.000
Mitarbeiter
> 600
Bewertungen von Bien-Zenker
Sind noch am Anfang
Sind noch am Anfang
17 Feb. 2026Marco L.
Sehr freundliche Mitarbeiterin . Wir konnten ...
Sehr freundliche Mitarbeiterin . Wir konnten schnell einen passenden Termin vereinbaren.
29 Jan. 2026Litke P.
Es waren 6 Unternehmen, die mich kontaktiert ...
Es waren 6 Unternehmen, die mich kontaktiert haben und ich habe derzeit mit 4 Unternehmen Termine gemacht.
21 Jan. 2026Heike S.
Leistungsspektrum
Finanzierungsberatung
Preisgarantie
Bauzeit Garantie
Individuelle Planung
Blower Door Test
Persönliche Beratung für Ihre individuellen Wünsche
Finden Sie jetzt Ihren Ansprechpartner
Bien-Zenker
Auszeichnungen, Zertifikate & Mitgliedschaften














Ähnliche Häuser Für BALANCE 146