







Zweifamilienhaus Garda von BauArt Massivbau
Preis auf Anfrage
Bewertungen von BauArt Massivbau
0
(0)
Wohnfläche
179 m²
Zimmer
7
Ausbaustufe
Schlüsselfertig
Bauweise
Massivhaus
Etagen
2
Energiestandard
Effizienzhaus 40
Dachform
Walmdach
Hausart
Zweifamilienhaus
Beschreibung
Dieses helle und moderne Haus bietet zwei Familien einen Platz zum Leben auf zwei Geschossen. Da die Wohnungeinheiten unabhängig voneinander sind, haben Sie als Bauherr des Hauses zweimal Anspruch auf staatliche Förderungen, wenn wir auf Ihren Wunsch EH40 bauen.
Dieses Haus ist ausgestattet mit einer Fußbodenheizung, Luft-Wasser-Wärmepumpe und Rolläden. Außerdem wählen Sie die Fenster- und Haustürfarbe, sowie die sanitäre Standardeinrichtung verschiedener Markenfirmen. Unser Preis versteht sich inklusive Bodenplatte und Erdarbeiten.
All unsere Typenhäuser sollen Ihnen eine erste Idee geben. Grundsätzlich setzen wir alle Veränderungen um, wenn es bauseits möglich ist. Wenn das Haus doch ein bisschen größer werden soll, oder die Haustüre an einer anderen Stelle sein könnte, oder die Fenster bodentief besser wären....dann melden Sie sich bei uns - wir machen das schon.Da wir individuell bauen, bekommen Sie unseren Preis nach Ihrer ersten Planung.
Sie haben Interesse?
Laden Sie sich jetzt Ihr kostenloses Exposé zu diesem Haus herunter:
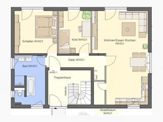
Grundrissfür Zweifamilienhaus Garda
Außenmaße
Länge: 12,5 m
Breite: 9 m
Grundrisse
Der Grundriss entspricht nicht Ihren Vorstellungen?
Passen Sie den Grundriss an Ihre persönlichen Bedürfnisse an und besprechen Sie Ihren individuellen Plan mit einem Bauberater des Anbieters.
Merkmale
Energiestandard und Förderung
Energiestandard
Effizienzhaus 40
Effizienzhaus 40 EE
Effizienzhaus 40 NH
Effizienzhaus 40 Plus
Effizienzhaus 55
Effizienzhaus 55 EE
Effizienzhaus 55 NH
Plusenergiehaus
Dach
Dachform
Walmdach
Preisdetails für Zweifamilienhaus Garda
Schlüsselfertig ab
Preis auf Anfrage
Dieser Preis ist ein Beispiel für den Anfang, ein Berater kann Ihnen ein detailliertes Angebot erstellen, das Ihren Bedürfnissen entspricht.
Möchten Sie bei Ihrem Projekt Geld sparen?
Durch einen Angebotsvergleich mit Fertighaus.de können Sie bis zu 20 % Ihrer Baukosten sparen.
Zweifamilienhaus Garda - Hilfreiche Fragen & Antworten
Das Paket für das Zweifamilienhaus Garda ist bereits sehr umfangreich. Neben der Bodenplatte und den notwendigen Erdarbeiten sind eine moderne Luft-Wasser-Wärmepumpe sowie eine komfortable Fußbodenheizung inklusive. Auch die Sanitäreinrichtung namhafter Marken und elektrische Rollläden gehören zum Standard. Da BauArt Massivbau mit Festpreisgarantie arbeitet, behalten Sie die Kosten für Ihr schlüsselfertiges Projekt stets im Blick.
Das Walmdach verleiht dem Zweifamilienhaus Garda den klassischen, repräsentativen Charakter einer Stadtvilla. Es schützt die Fassade durch seine geneigten Flächen effektiv vor Witterungseinflüssen. Zudem ermöglicht diese Dachform zwei vollwertige Wohngeschosse ohne Dachschrägen, was die Raumausnutzung für beide Familien optimiert. Gerne unterstützen wir Sie dabei, die Dachgestaltung oder Fensterformate nach Ihren individuellen Vorstellungen bei der Planung anzupassen.
Für das Zweifamilienhaus Garda empfehlen wir eine Grundstücksgröße von etwa 500 m². Diese Fläche bietet ausreichend Platz für die Grundfläche von 112,5 m² sowie notwendige Stellplätze für beide Wohneinheiten. So bleibt genügend Freiraum für eine Gartenfläche von rund 325 m², damit beide Parteien die nötige Privatsphäre genießen können. Fordern Sie über uns detaillierte Planungsunterlagen an.
Ja, absolute Flexibilität ist eine Kernkompetenz von BauArt Massivbau. Das vorgestellte Modell dient als Inspiration, doch die Architekten passen die 179 m² Wohnfläche exakt an Ihre Bedürfnisse an. Ob bodentiefe Fenster, eine andere Platzierung der Haustür oder geänderte Raumaufteilungen – fast alles ist möglich. Wir begleiten Sie gerne dabei, Ihre persönlichen Wünsche in die finale Planung einfließen zu lassen.
Über den Anbieter BauArt Massivbau
Zum Anbieterprofil
Bewertungen
0
(0)

Bewertungen
0
0 BewertungenKeine
BauArt Massivbau in Zahlen
Häuser im Angebot
10
Leistungsspektrum
Finanzierungsberatung
Preisgarantie
Bauzeit Garantie
Individuelle Planung
Blower Door Test
Persönliche Beratung für Ihre individuellen Wünsche
Finden Sie jetzt Ihren Ansprechpartner
BauArt Massivbau
Ähnliche Häuser Für Zweifamilienhaus Garda