



Turmhaus 161 von SYSTEMHAUS HAUSVERTRIEB
Ab 288.200 €
Bewertungen von SYSTEMHAUS HAUSVERTRIEB
0
(0)
Wohnfläche
148 m²
Zimmer
6
Ausbaustufe
Schlüsselfertig
Bauweise
Massivhaus
Etagen
1,5
Energiestandard
Effizienzhaus 55
Dachform
Satteldach
Hausart
Einfamilienhaus
Beschreibung
Ansprechend kompakt. Unser Turmhaus 161 ist ein mittelgroßes Familienhaus mit geschickter Flächennutzung und entsprechendem Raumangebot. Besonders verleiht der Erker der vom Erdgeschoss bis zum Dachgeschoss reicht einen stilvollen Charakter. Das großzügige Wohnzimmer mit Erker wird ein beliebter Aufenthaltsort sein.
Sie haben Interesse?
Laden Sie sich jetzt Ihr kostenloses Exposé zu diesem Haus herunter:
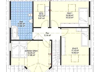
Grundrissfür Turmhaus 161
Grundrisse
Der Grundriss entspricht nicht Ihren Vorstellungen?
Passen Sie den Grundriss an Ihre persönlichen Bedürfnisse an und besprechen Sie Ihren individuellen Plan mit einem Bauberater des Anbieters.
Merkmale
Energiestandard und Förderung
Energiestandard
Effizienzhaus 55
Effizienzhaus 40 Plus
Ein Effizienzhaus 40 Plus verbraucht im Vergleich zum Referenzhaus 100 > 60 % weniger Energie. Sie müssen für den Hausbau mit Mehrkosten von ~ 13,5 % rechnen, die sich aber mittelfristig auszahlen. Es verfügt im Vergleich zum Effizienzhaus 40 über weitere Komponenten, wie beispielsweise eine Lüftungsanlage mit Wärmerückgewinnung, eine Anlage, mit der auf Basis erneuerbarer Energien Strom erzeugt werden kann und ein Batteriespeichersystem, mit dem überschüssige Energie eingespart werden kann.
Effizienzhaus 40
Seit dem 1. Juli 2010 gibt es neben dem Effizienzhaus 55 und dem Effizienzhaus 70 noch das Effizienzhaus 40. Das Effizienzhaus 40 darf nur 40 Prozent der nach Energieeinsparverordnung 2009 (EnEV) gültigen Höchstwerte hinsichtlich Jahres-Primärenergiebedarf und Transmissionswärmeverlust erreichen. Neben der Einsparung von 60 Prozent beim Jahres-Primärenergiebedarfs sind auch beim Transmissionswärmeverlust 45 Prozent einzusparen. Der maximale Jahresprimärenergiebedarf beträgt 30 kWh/m². Ein KfW-Effizienzhaus 40 Haus ist luftdicht und nutzt regenerative Energien, häufig eine Kombination aus Holzpellets, Solaranlage und Lüftungsanlage mit Wärmerückgewinnung.
Effizienzhaus 55
Ein Effizienzhaus 55 verbraucht im Vergleich zum Referenzhaus 100 45 % weniger Energie. Sie müssen für den Hausbau mit Mehrkosten von ~ 7,5 % rechnen, die sich aber mittelfristig auszahlen. Diese Effizienzklasse gilt heutzutage als Standard für alle neu gebauten Häuser.
Dach
Dachform
Satteldach
Dachneigung
45°
Kniestockhöhe
75 cm
Satteldach
Das Satteldach liegt in Form eines Dreiecks auf dem Baukörper und schließt entweder mit seinem First parallel zu den beiden Giebeln ab oder es ragt noch über die Giebel hinaus. Satteldächer werden als Pfettendach oder als Sparrendach ausgebildet. Üblich sind Dachneigungen ab etwa 30˚ (flaches Satteldach) bis über 60˚ (altdeutsches Dach). Weit verbreitet sind Satteldächer mit etwa 38˚ bis 45˚ Neigung. Diese bieten genug Raum für einen Ausbau des Dachgeschosses.
Zeltdach
Seltene Dachform, die nur auf einem quadratischen oder annähernd quadratischen Grundriß errichtet werden kann. Zelt- oder Pyramidendächer findet man vor allem auf Türmen und Kirchtürmen.
Walmdach
Sehr häufig zu sehende Dachform, dem Satteldach verwandt. Im Gegensatz zu diesem schließt der First jedoch nicht mit den beiden Giebelwänden ab, sondern ist beidseitig zurückgebaut, das heißt abgeschrägt sind. Dabei unterscheidet man noch Zwergwalmdach, Krüppelwalmdach und Fußwalmdach. Da bei diesen Varianten nicht die komplette Seite abgewalmt ist, spricht man auch häufig von Vollwalmdach, wenn der Walm so ausgebildet ist, wie auf der Zeichnung. Weitere Bezeichnungen für Walmdach sind Walbendach, Holländisches Dach, Schopfdach oder Haubendach.
Krüppelwalmdach
Besonders auf nord- und niederdeutschen Gehöften gebräuchliche Variante des Walmdachs. Entspricht einem Walmdach mit hochgesetzter Traufhöhe am Giebel. In manchen Gegenden wird es auch als Schopfwalmdach bezeichnet.
Flachdach
Flachdächer sind allgegenwärtig und dominieren im Gewerbebau, im Bereich des privaten Hausbaus werden sie - mit stark abnehmender Tendenz - bei Bungalows angelegt und natürlich bei Garagen und Carports. Bei Flachdächern erfolgt keine Dacheindeckung mit Dachpfannen, vielmehr wird die Dachfläche mit Dachbahnen oder mit Metallblechen regenfest gemacht. Konstruktiv wird beim Flachdach unterschieden zwischen Kaltdach, Warmdach und Umkehrdach. Mit Dachbahnen abgedichtete Flachdächer werden auch heute noch, wenn auch mit stark abnehmender Tendenz, mit Rollkies belegt. Stark steigend, bei Gewerbebauten jedoch oftmals auch baubehördlich vorgeschrieben, ist die Anlage einer Dachbegrünung. Dadurch wird das Flachdach zum Gründach. Gründächer sind eine sinnvolle Alternative gegen die zunehmende Verdichtung des Bodens. Flachdächer sind im übrigen keineswegs eben, sie müssen ein Gefälle von mindestens 3 % aufweisen, damit das Regenwasser über den Dachgully oder die Dachrinnen abfließen kann.
Pultdach
Gefälledach, das wie ein Pultdeckel auf dem Baukörper liegt. Das Pultdach ist die einfachste Dachform überhaupt. Mit nur einen schrägen Dachfläche ist es kostengünstig herzustellen. Im Mittelmeerraum ist das Pultdach die häufigste Dachform. Seit einiger Zeit erfreut es sich auch hierzulande zunehmender Beliebtheit. Die Dachfläche von Pultdächern liegt meist zur Wetterseite hin, um Wind, Regen und Schnee abzuschirmen. An der Sonnenseite lässt das Haus Raum für große Lichtflächen.
Preisdetails für Turmhaus 161
Schlüsselfertig ab
288.200 €
ab 867,60 €
Dieser Preis ist ein Beispiel für den Anfang, ein Berater kann Ihnen ein detailliertes Angebot erstellen, das Ihren Bedürfnissen entspricht.
Möchten Sie bei Ihrem Projekt Geld sparen?
Durch einen Angebotsvergleich mit Fertighaus.de können Sie bis zu 20 % Ihrer Baukosten sparen.
Turmhaus 161 - Hilfreiche Fragen & Antworten
Mit einem Quadratmeterpreis von rund 1.900 Euro ist dieses Massivhaus im sehr günstigen Segment für schlüsselfertige Gebäude angesiedelt. Wir finden, dass Sie hier viel Wohnraum für Ihr Budget erhalten. Da der Anbieter zudem eine Festpreisgarantie bietet, können Sie Ihr Bauvorhaben sicher kalkulieren. Gerne lassen wir Ihnen detaillierte Preislisten über uns zukommen.
Das Turmhaus 161 kombiniert eine klassische Massivbauweise mit einem markanten Satteldach, das eine Neigung von 45 Grad aufweist. Ein besonderes architektonisches Highlight ist der integrierte Erker. Dieser erstreckt sich vom Erdgeschoss bis ins Dachgeschoss und verleiht der Fassade einen individuellen, stilvollen Charakter. So entsteht im Inneren ein lichtdurchfluteter Wohnbereich mit einem ganz besonderen Flair.
Für das Turmhaus 161 empfehlen wir eine Grundstücksgröße von etwa 450 Quadratmetern. Diese Fläche bietet ausreichend Platz für die Grundfläche des Hauses, notwendige Stellplätze und einen schönen Gartenanteil. Dank der kompakten Außenmaße und der geschickten Raumaufteilung auf 1,5 Etagen lässt sich das Gebäude flexibel auf verschiedenen Grundstückstypen realisieren, ohne dabei auf Wohnqualität zu verzichten.
Als erfahrener Partner setzt der Anbieter auf traditionelle Massivbauweise und meisterhaftes Handwerk. Sie profitieren von einer transparenten Kostenkalkulation sowie einer garantierten Bauzeit. Wir schätzen besonders den Fokus auf individuelle Planungsmöglichkeiten, wodurch jedes Haus zu einem Unikat wird. Die schlüsselfertige Übergabe sorgt dafür, dass Sie stressfrei und mit hoher Sicherheit in Ihr neues, wertbeständiges Eigenheim einziehen können.
Über den Anbieter SYSTEMHAUS HAUSVERTRIEB

Bewertungen
0
(0)

Bewertungen
0
0 BewertungenKeine
SYSTEMHAUS HAUSVERTRIEB in Zahlen
Gründungsjahr
1983
Leistungsspektrum
Finanzierungsberatung
Preisgarantie
Bauzeit Garantie
Individuelle Planung
Blower Door Test
Ähnliche Häuser Für Turmhaus 161