CLOU 166 von RENSCH-HAUS
Ab 395.620 €

Bewertungen von RENSCH-HAUS
4,2
(238)
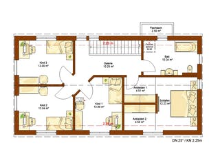
Grundriss für CLOU 166
Außenmaße
Länge: 14,01 m
Breite: 7,39 m
Grundrisse
Der Grundriss entspricht nicht Ihren Vorstellungen?
Passen Sie den Grundriss an Ihre persönlichen Bedürfnisse an und besprechen Sie Ihren individuellen Plan mit einem Bauberater des Anbieters.
Merkmale
Energiestandard und Förderung
Energiestandard
Effizienzhaus 40
Wärmedurchgangskoeffizient
0,14 (U-Wert)
Effizienzhaus 40 Plus
Ein Effizienzhaus 40 Plus verbraucht im Vergleich zum Referenzhaus 100 > 60 % weniger Energie. Sie müssen für den Hausbau mit Mehrkosten von ~ 13,5 % rechnen, die sich aber mittelfristig auszahlen. Es verfügt im Vergleich zum Effizienzhaus 40 über weitere Komponenten, wie beispielsweise eine Lüftungsanlage mit Wärmerückgewinnung, eine Anlage, mit der auf Basis erneuerbarer Energien Strom erzeugt werden kann und ein Batteriespeichersystem, mit dem überschüssige Energie eingespart werden kann.
Effizienzhaus 40
Seit dem 1. Juli 2010 gibt es neben dem Effizienzhaus 55 und dem Effizienzhaus 70 noch das Effizienzhaus 40. Das Effizienzhaus 40 darf nur 40 Prozent der nach Energieeinsparverordnung 2009 (EnEV) gültigen Höchstwerte hinsichtlich Jahres-Primärenergiebedarf und Transmissionswärmeverlust erreichen. Neben der Einsparung von 60 Prozent beim Jahres-Primärenergiebedarfs sind auch beim Transmissionswärmeverlust 45 Prozent einzusparen. Der maximale Jahresprimärenergiebedarf beträgt 30 kWh/m². Ein KfW-Effizienzhaus 40 Haus ist luftdicht und nutzt regenerative Energien, häufig eine Kombination aus Holzpellets, Solaranlage und Lüftungsanlage mit Wärmerückgewinnung.
Effizienzhaus 55
Ein Effizienzhaus 55 verbraucht im Vergleich zum Referenzhaus 100 45 % weniger Energie. Sie müssen für den Hausbau mit Mehrkosten von ~ 7,5 % rechnen, die sich aber mittelfristig auszahlen. Diese Effizienzklasse gilt heutzutage als Standard für alle neu gebauten Häuser.
Dach
Dachform
Satteldach
Dachneigung
25°
Kniestockhöhe
225 cm
Satteldach
Das Satteldach liegt in Form eines Dreiecks auf dem Baukörper und schließt entweder mit seinem First parallel zu den beiden Giebeln ab oder es ragt noch über die Giebel hinaus. Satteldächer werden als Pfettendach oder als Sparrendach ausgebildet. Üblich sind Dachneigungen ab etwa 30˚ (flaches Satteldach) bis über 60˚ (altdeutsches Dach). Weit verbreitet sind Satteldächer mit etwa 38˚ bis 45˚ Neigung. Diese bieten genug Raum für einen Ausbau des Dachgeschosses.
Zeltdach
Seltene Dachform, die nur auf einem quadratischen oder annähernd quadratischen Grundriß errichtet werden kann. Zelt- oder Pyramidendächer findet man vor allem auf Türmen und Kirchtürmen.
Walmdach
Sehr häufig zu sehende Dachform, dem Satteldach verwandt. Im Gegensatz zu diesem schließt der First jedoch nicht mit den beiden Giebelwänden ab, sondern ist beidseitig zurückgebaut, das heißt abgeschrägt sind. Dabei unterscheidet man noch Zwergwalmdach, Krüppelwalmdach und Fußwalmdach. Da bei diesen Varianten nicht die komplette Seite abgewalmt ist, spricht man auch häufig von Vollwalmdach, wenn der Walm so ausgebildet ist, wie auf der Zeichnung. Weitere Bezeichnungen für Walmdach sind Walbendach, Holländisches Dach, Schopfdach oder Haubendach.
Krüppelwalmdach
Besonders auf nord- und niederdeutschen Gehöften gebräuchliche Variante des Walmdachs. Entspricht einem Walmdach mit hochgesetzter Traufhöhe am Giebel. In manchen Gegenden wird es auch als Schopfwalmdach bezeichnet.
Flachdach
Flachdächer sind allgegenwärtig und dominieren im Gewerbebau, im Bereich des privaten Hausbaus werden sie - mit stark abnehmender Tendenz - bei Bungalows angelegt und natürlich bei Garagen und Carports. Bei Flachdächern erfolgt keine Dacheindeckung mit Dachpfannen, vielmehr wird die Dachfläche mit Dachbahnen oder mit Metallblechen regenfest gemacht. Konstruktiv wird beim Flachdach unterschieden zwischen Kaltdach, Warmdach und Umkehrdach. Mit Dachbahnen abgedichtete Flachdächer werden auch heute noch, wenn auch mit stark abnehmender Tendenz, mit Rollkies belegt. Stark steigend, bei Gewerbebauten jedoch oftmals auch baubehördlich vorgeschrieben, ist die Anlage einer Dachbegrünung. Dadurch wird das Flachdach zum Gründach. Gründächer sind eine sinnvolle Alternative gegen die zunehmende Verdichtung des Bodens. Flachdächer sind im übrigen keineswegs eben, sie müssen ein Gefälle von mindestens 3 % aufweisen, damit das Regenwasser über den Dachgully oder die Dachrinnen abfließen kann.
Pultdach
Gefälledach, das wie ein Pultdeckel auf dem Baukörper liegt. Das Pultdach ist die einfachste Dachform überhaupt. Mit nur einen schrägen Dachfläche ist es kostengünstig herzustellen. Im Mittelmeerraum ist das Pultdach die häufigste Dachform. Seit einiger Zeit erfreut es sich auch hierzulande zunehmender Beliebtheit. Die Dachfläche von Pultdächern liegt meist zur Wetterseite hin, um Wind, Regen und Schnee abzuschirmen. An der Sonnenseite lässt das Haus Raum für große Lichtflächen.
Preisdetails für CLOU 166
Schlüsselfertig ab
395.620 €
ab 1.190,98 €
Dieser Preis ist ein Beispiel für den Anfang, ein Berater kann Ihnen ein detailliertes Angebot erstellen, das Ihren Bedürfnissen entspricht.
Möchten Sie bei Ihrem Projekt Geld sparen?
Durch einen Angebotsvergleich mit Fertighaus.de können Sie bis zu 20 % Ihrer Baukosten sparen.
CLOU 166 - Hilfreiche Fragen & Antworten
Das CLOU 166 wird schlüsselfertig angeboten und liegt preislich bei etwa 2.400 Euro pro Quadratmeter. Damit ordnet sich dieses Modell im günstigen bis mittleren Preissegment ein. Beachten Sie, dass dieser Preis das Basishaus ab Oberkante Bodenplatte umfasst. Wir unterstützen Sie gerne dabei, ein individuelles Angebot inklusive Ihrer gewünschten Sonderausstattungen für dieses Fertighaus über unsere Plattform anzufragen.
Dank seiner schlanken Bauweise mit einer Grundfläche von etwa 104 m² ist das CLOU 166 ideal für schmale Grundstücke geeignet. Wir empfehlen eine Grundstücksfläche von mindestens 450 m². Hierbei sind circa 50 m² für Stellplätze und rund 300 m² Gartenfläche eingerechnet. So bleibt trotz der großzügigen Wohnfläche von 162 m² ausreichend Raum für Ihre persönliche grüne Oase.
Die Architektur richtet sich speziell an große Familien mit bis zu vier Kindern. Auf zwei Etagen verteilen sich sechs Zimmer, wobei das Dachgeschoss mit drei Kinderzimmern und einem luxuriösen Elternbereich mit zwei Ankleiden überzeugt. Das zusätzliche Büro im Erdgeschoss bietet Ihnen die nötige Flexibilität für Home-Office oder ein weiteres Schlafzimmer, was wir als sehr zukunftssicher erachten.
RENSCH-HAUS setzt beim CLOU 166 auf eine nachhaltige Fertighaus-Bauweise in hoher Qualität. Das Haus entspricht serienmäßig dem Effizienzhaus 40 Standard, was Ihnen dauerhaft niedrige Energiekosten garantiert. Wir schätzen besonders das innovative Dämmkonzept, das ein angenehmes Raumklima zu jeder Jahreszeit schafft. Hierdurch wohnen Sie nicht nur umweltfreundlich, sondern profitieren auch von attraktiven Förderungen und langfristiger Wertbeständigkeit.
Über den Anbieter RENSCH-HAUS
Zum Anbieterprofil
Bewertungen
4,2
(238)

Bewertungen
4,2
238 BewertungenHervorragend
RENSCH-HAUS in Zahlen
Gründungsjahr
1876
Häuser im Angebot
60
Häuser pro Jahr
ca. 300
Häuser gesamt
ca. 10.500
Mitarbeiter
250
Bewertungen von RENSCH-HAUS
Aufdringlich und unfreundlich
Sehr aufdringliches Gespräch, auch auf die Rückmeldung, dass man ein anderes Unternehme bevorzugt, wurde darauf hingewiesen, dass man die falsche Entscheidung getroffen habe. Sehr unsympathisch
31 Jan. 2026Tom S.
Sehr schöner, informativer Katalog, tolle Häu...
Sehr schöner, informativer Katalog, tolle Häuser.
07 Jan. 2026Markus Z.
netter Kontakt, sehr informatives Gespräch. T...
netter Kontakt, sehr informatives Gespräch. Termin für April angedacht.
07 Jan. 2026Norbert S.
Leistungsspektrum
Preisgarantie
Bauzeit Garantie
Individuelle Planung
Blower Door Test
Persönliche Beratung für Ihre individuellen Wünsche
Finden Sie jetzt Ihren Ansprechpartner
RENSCH-HAUS
Auszeichnungen, Zertifikate & Mitgliedschaften
Ähnliche Häuser Für CLOU 166











