




Vitalhaus Bad Reichenhall von Regnauer Hausbau
Ab 481.000 €
Bewertungen von Regnauer Hausbau
5,0
(1)
Wohnfläche
130 m²
Zimmer
4
Ausbaustufe
Schlüsselfertig
Bauweise
Fertighaus
Energiestandard
Effizienzhaus 40 Plus
Dachform
Satteldach
Hausart
Einfamilienhaus
Beschreibung
Ein Traumgrundstück in Ortsrandlage setzt natürlich Maßstäbe beim Bauen. Zum einen soll sich das Haus in die Landschaft einfügen. Gleichzeitig sollte das Haus die Landschaft einbeziehen und sich in diese integrieren.
Natürlich bauen mit Holz
Natürlich bauen: Darin besitzt das Familienunternehmen Regnauer eine jahrzehntelange Erfahrung. Der Baustoff Holz ist ein nachwachsendes Produkt aus der Natur. Ihm ordnet sich auch die Architektur der Vitalhäuser unter. Sie werden durch eine klassische Eleganz geprägt, die auch das Holzständerhaus der Bauherren kennzeichnet. Der Baukörper besitzt eine klare, symmetrische Aufteilung mit einem vorgestellten Quergiebel in der Mitte. Das Satteldach behütet ein Dachgeschoss, wo durch eine 24-Grad-Neigung hohe Räume mit Sichtdachstuhl entstanden sind. Die Fassade ist durch eine waagerechte Holzschalung im Erdgeschoss gegliedert. Holz und die Farbe Weiß auch bei der Wahl der wartungsfreien, serienmäßig eingebauten Holz-Alu-Fenster und bei den Türen geben den Ton an.
Zur Straßenseite schirmen schmale Fenster das Wohnhaus ab, nach Süden öffnet sich das Gebäude mit großen Glasflächen in die Landschaft. Von der Terrasse und vom Balkon des Quergiebels genießen die Hausherren einen traumhaften Blick auf das Alpenpanorama und eine Bergwiese. Ihre Garage schließt sich an einen offenen Carport am Haus an, sodass die doppelten Stellmöglichkeiten nicht massiv wirken. Filigran erscheint auch die Überdachung eines Teils der Terrasse mit einem weißen Sonnensegel. Diese Transparenz wird im Innern des Neubaus im Erdgeschoss durch einen offenen Wohn- und Essbereich mit Küche unterstrichen. Die Außenanlagen sind bewusst nicht gegliedert worden. Das weite Grün beruhigt das Auge, hier gibt es außerdem viel Platz zum Toben für den jüngsten Bewohner des Hauses. Als wohltuend empfinden die Bauherren auch das gesunde Raumklima, das durch den Baustoff Holz entsteht. Er garantiert in Kombination mit dem spezifischen Regnauer-Wandaufbau hohe Energieeffizenz und einen hervorragenden sommerlichen Hitzeschutz.
Ausführung gemäß aktueller Regnauer Bauleistungs- und Ausstattungsbeschreibung. Weitere Informationen auf www.regnauer.de. Abbildungen können Sonderausstattung zeigen. Wir legen großen Wert darauf, Ihr Vitalhaus ganz nach Ihren persönlichen Wünschen zu gestalten. Gemäß Ihren Wünschen und Ihrer Grundstückssituation ergibt sich dann ein exakter Festpreis für Ihr Traumhaus. Daher beziehen sich die Preise auf eine Vitalausstattung ohne spezifische Sonderausstattung.
Voraussetzung zur Erlangung der Bundesförderung für Effiziente Gebäude ist die Einhaltung der diesbezüglichen Förderrichtlinien. So wird hierfür unter anderem die Ausführung einer förderfähigen Haustechnik sowie die entsprechende Ausführung der bauherrenseitigen Leistungen (z.B. Keller und -ausbau) vorausgesetzt. Die Förderrichtlinien sind auch Änderungen unterworfen, sodass die Förderfähigkeit jeweils im Einzelfall geprüft und objektspezifisch durch das Förderinstitut bestätigt werden muss. Auch können einzelne Programme ausgesetzt oder verändert werden. Die Regnauer Hausbau GmbH & Co KG kann keine Finanzierungs- oder Förderberatung durchführen.
Merkmale
- Einliegerwohnung
Sie haben Interesse?
Laden Sie sich jetzt Ihr kostenloses Exposé zu diesem Haus herunter:
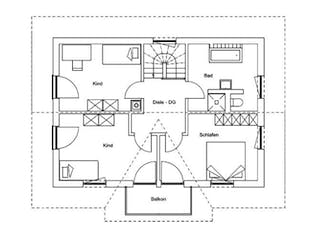
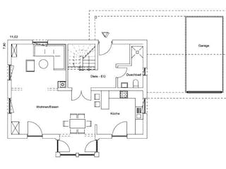
Grundrissfür Vitalhaus Bad Reichenhall
Grundrisse
Der Grundriss entspricht nicht Ihren Vorstellungen?
Passen Sie den Grundriss an Ihre persönlichen Bedürfnisse an und besprechen Sie Ihren individuellen Plan mit einem Bauberater des Anbieters.
Merkmale
Energiestandard und Förderung
Energiestandard
Effizienzhaus 40
Effizienzhaus 40 Plus
Dach
Dachform
Satteldach
Preisdetails für Vitalhaus Bad Reichenhall
Schlüsselfertig ab
481.000 €
ab 1.448,01 €
Dieser Preis ist ein Beispiel für den Anfang, ein Berater kann Ihnen ein detailliertes Angebot erstellen, das Ihren Bedürfnissen entspricht.
Möchten Sie bei Ihrem Projekt Geld sparen?
Durch einen Angebotsvergleich mit Fertighaus.de können Sie bis zu 20 % Ihrer Baukosten sparen.
Vitalhaus Bad Reichenhall - Hilfreiche Fragen & Antworten
Mit einem Quadratmeterpreis von rund 3.700 Euro ordnet sich dieses schlüsselfertige Objekt im gehobenen Segment ein. Dieser Preis umfasst die hochwertige Vitalausstattung und die nachhaltige Holzständerbauweise. Da individuelle Anpassungen den finalen Preis beeinflussen, können Sie über uns ein detailliertes Angebot anfordern, das genau auf Ihre persönlichen Wünsche und die Gegebenheiten Ihres Grundstücks zugeschnitten ist.
Das Haus besticht durch ein klassisches Satteldach mit 24 Grad Neigung und einem markanten Quergiebel. Die Fassade ist im Erdgeschoss durch eine waagerechte Holzschalung gegliedert, während hochwertige Holz-Alu-Fenster den eleganten Look abrunden. Im Inneren sorgt ein Sichtdachstuhl im Dachgeschoss für ein besonderes Raumgefühl. Große Glasflächen nach Süden hin integrieren die umliegende Landschaft ideal in das Wohnkonzept.
Für dieses Einfamilienhaus mit 130 m² Wohnfläche ist ein Grundstück von circa 400 m² empfehlenswert. Diese Schätzung beinhaltet die Grundfläche des Hauses, etwa 50 m² für PKW-Stellplätze sowie eine großzügige Gartenfläche von rund 260 m². So stellen wir sicher, dass alle Abstandsflächen eingehalten werden und Ihnen genügend privater Freiraum für Erholung und Aktivitäten im Grünen bleibt.
Regnauer nutzt die über 90-jährige Erfahrung im Holzbau für ein besonders gesundes Raumklima. Die innovative Vitalwand mit Holzfaserdämmung garantiert nicht nur ökologische Nachhaltigkeit, sondern auch hervorragenden sommerlichen Hitzeschutz. Durch den Einsatz des nachwachsenden Rohstoffs Holz und die Erfüllung hoher Energiestandards wie Effizienzhaus 40 bauen Sie mit diesem Partner besonders zukunftssicher und investieren in ein langlebiges, wertstabiles Eigenheim.
Über den Anbieter Regnauer Hausbau
Zum Anbieterprofil
Bewertungen
5,0
(1)

Bewertungen
5,0
1 BewertungHervorragend
Regnauer Hausbau in Zahlen
Gründungsjahr
1929
Häuser im Angebot
26
Häuser pro Jahr
ca. 100
Häuser gesamt
über 3.000
Mitarbeiter
250
Bewertungen von Regnauer Hausbau
Wir waren den Sommer über im Allgäu und haben...
Wir waren den Sommer über im Allgäu und haben dort diese wunderschönen Häuser bestaunen können! In unserer Phantasie wünschen wir uns auch schon länger solch ein tolles Haus.
07 Dez. 2025Elphi W.
Leistungsspektrum
Finanzierungsberatung
Preisgarantie
Bauzeit Garantie
Individuelle Planung
Blower Door Test
Persönliche Beratung für Ihre individuellen Wünsche
Finden Sie jetzt Ihren Ansprechpartner
Regnauer Hausbau
Auszeichnungen, Zertifikate & Mitgliedschaften






Ähnliche Häuser Für Vitalhaus Bad Reichenhall