




Familyhaus 140 von Lechner Massivhaus
Preis auf Anfrage
Bewertungen von Lechner Massivhaus
0
(0)
Wohnfläche
140 m²
Zimmer
5
Ausbaustufe
Schlüsselfertig
Bauweise
Massivhaus
Etagen
1,5
Energiestandard
Effizienzhaus 40 NH
Dachform
Satteldach
Hausart
Einfamilienhaus
Beschreibung
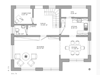
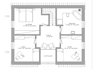
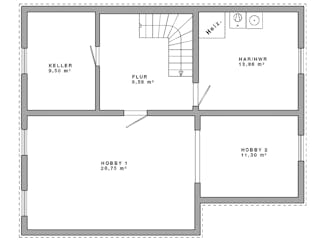
Das klassische Familienhaus: Großzügig der Eingangsbereich, funktional und durchdacht der Hausarbeitsbereich mit einer geräumigen Vorratskammer und einem kleinen Arbeitszimmer. Wer auf den Keller verzichtet, findet hier für die Wärmepumpe Platz. Der Wohn- und Essbereich lässt sich offen oder räumlich getrennt gestalten. Der Luftraum zur Galerie im Obergeschoss unterstreicht das großzügige Wohngefühl, kann aber auch zugunsten eines der beiden Kinderzimmer geschlossen werden.
Angaben zum Preis: ab OK Kellerdecke/Bodenplatte
Sie haben Interesse?
Laden Sie sich jetzt Ihr kostenloses Exposé zu diesem Haus herunter:
Grundrissfür Familyhaus 140
Außenmaße
Länge: 8,73 m
Breite: 10,71 m
Grundrisse
Der Grundriss entspricht nicht Ihren Vorstellungen?
Passen Sie den Grundriss an Ihre persönlichen Bedürfnisse an und besprechen Sie Ihren individuellen Plan mit einem Bauberater des Anbieters.
Merkmale
Energiestandard und Förderung
Energiestandard
Effizienzhaus 40
Effizienzhaus 40 EE
Effizienzhaus 40 NH
Effizienzhaus 55
Effizienzhaus 55 EE
Effizienzhaus 55 NH
Dach
Dachform
Satteldach
Dachneigung
40°
Kniestockhöhe
80 cm
Preisdetails für Familyhaus 140
Schlüsselfertig ab
Preis auf Anfrage
Dieser Preis ist ein Beispiel für den Anfang, ein Berater kann Ihnen ein detailliertes Angebot erstellen, das Ihren Bedürfnissen entspricht.
Möchten Sie bei Ihrem Projekt Geld sparen?
Durch einen Angebotsvergleich mit Fertighaus.de können Sie bis zu 20 % Ihrer Baukosten sparen.
Familyhaus 140 - Hilfreiche Fragen & Antworten
Da der Preis für das Familyhaus 140 individuell auf Anfrage berechnet wird, hängt die Einordnung stark von Ihren Ausstattungswünschen ab. In der Regel bewegen sich schlüsselfertige Massivhäuser dieser Größe im mittleren bis gehobenen Preissegment. Gerne können Sie über uns detaillierte Preisinformationen anfordern, die genau auf Ihre geplanten Anpassungen zugeschnitten sind.
Dieses Modell besticht durch ein klassisches Satteldach mit 40 Grad Neigung. Ein Highlight ist der optionale Luftraum zur Galerie, der für ein besonders offenes Wohngefühl sorgt. Falls Sie jedoch mehr Raum für die Kinder benötigen, lässt sich dieser Bereich auch schließen. Wir schätzen diese Flexibilität sehr, da sie das Haus perfekt an verschiedene Lebensphasen anpasst.
Für das Familyhaus 140 mit einer Grundfläche von etwa 94 m² empfehlen wir ein Grundstück von mindestens 450 m². Darin sind 50 m² für Stellplätze und eine großzügige Gartenfläche von rund 290 m² bereits eingerechnet. So bleibt genügend Freiraum für Ihre Erholung und die Einhaltung aller baurechtlichen Abstandsflächen auf Ihrem neuen Baugrundstück.
Lechner setzt auf eine innovative Massivbauweise mit witterungsunabhängig vorgefertigten Wänden. Diese sogenannten Wohlfühlwände werden im Werk präzise produziert, wodurch der Rohbau in nur wenigen Tagen steht. Das spart Zeit und schont Ihr Budget. Zudem wird großer Wert auf langlebige, natürliche Materialien gelegt, was die Häuser besonders wertbeständig und nachhaltig für zukünftige Generationen macht.
Über den Anbieter Lechner Massivhaus
Zum Anbieterprofil
Bewertungen
0
(0)

Bewertungen
0
0 BewertungenKeine
Lechner Massivhaus in Zahlen
Häuser im Angebot
10
Persönliche Beratung für Ihre individuellen Wünsche
Finden Sie jetzt Ihren Ansprechpartner
Lechner Massivhaus
Ähnliche Häuser Für Familyhaus 140